深圳绿景白石洲(绿景白石洲营销中心)首页网站-绿景白石洲销售中心(售楼处)绿景白石洲售楼处电话-电话地址-价格-户型-小区环境-楼盘详情-交房时间-周边配套

搜狐焦点贺州站

2025-10-06 22:54:03

购房群

买房如何避坑,加入购房群,看看他们怎么说

立即进群

绿景白石洲- 启幕城芯繁华 ��主力建面约110-187㎡3-4房,北靠塘朗山,风水天成,价值洼地!

��绿景白石洲售楼处电话: 400-065-2898☎开发商已认证��️��️

��绿景白石洲营销中心电话: 400-065-2898☎营销中心已认证��️��️

��绿景白石洲售楼中心电话: 400-065-2898☎24小时预约热线��️��️

开发商售楼处24小时电话:400-065-2898(预约咨询热线)现场详细解答丨项目介绍丨户型图丨在售房源丨特价房丨学校丨交通位置丨样板房丨小区图片丨交房时间丨周边配套

主推产品

110平三房两卫:折后约1000-1100万(西北向、东南向) 剩于:41~54层

125平三房两卫:折后约1100-1300万(西北向、东南向) 剩于:38~57层

188平四房三卫:折后约2600万左右(西南向看海、仅剩最后两套 64楼)

【发展商】绿景天盛集团

【项目总名称】 绿景白石洲

【项目总建面】约500万平

【本次推售】绿景璟庭(一期)

【一期占地】约3万

【一期建面】约46万平

【产权年限】70年

【本次推售】住宅

【推售户数】1257套

【推售面积】110-125-187平

【总楼层】74层

【层高】3米

【梯户比】高区3梯6户、低区4梯7户

【产品面积】110-125-187平米

【使用率】71%

【单价】约9万

【车位数】1983个

【交楼标准】精装

【交付时间】2025年年底

【物业费】8.8元

【物业公司】绿景物业

建面约110m²三房两厅两卫

瞰景三房,卧室标配飘窗,观景阳台展开风景画卷

|餐客一体化,连通阳台,畅享全家欢聚时刻

|动静分区舒适化营造,休慎与家庭活动互不干扰

|主卧私享化,独立卫浴、衣帽间,自在天地一隅

建面约118㎡三房两厅两卫

横向四开间设计,南向约13.4m奢华采光面,和光同悦南向观景C位,客厅、卧室随心眺望窗外城市风景

奢享主卧,生活阳台、衣帽间、私人卫浴,独享非凡领地

餐客一体贯通阳台,打造舒适、宽敞的家庭欢聚天地本户型所在位置示意

A户型 建面约125㎡三房两厅两卫

瞰景三房,飘窗、阳台拉开居住视野,主卧私享功能产备 LDK一体化设计,打造无边界、社交化的餐客厨系统

I动静分区舒适化营造,休慎与家庭活动互不干扰

双阳台设计,厨房连通生活阳台,延展更多空间,随心收纳

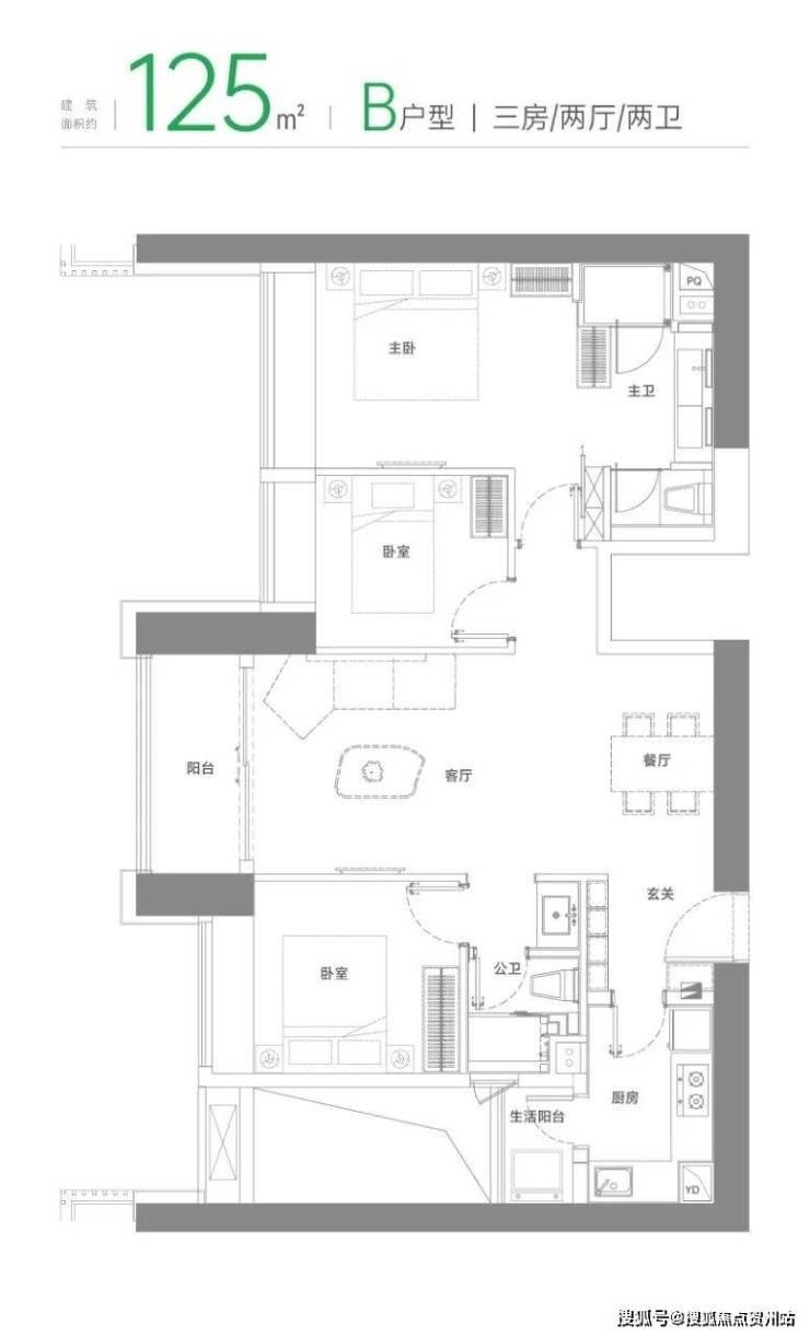
B户型 建面约125㎡三房两厅两卫

|横向四开间设计,南向约14.1m奢华采光面,和光同悦

|南向观景 C 位,客厅、卧室随处纵览非凡城市景观

|奢享主卧,步入式衣帽间,私人卫浴,独享自我领地

|双阳台设计,厨房连通生活阳台,延展更多空间,随心收纳

C户型 建面约125 m² 三房两厅两卫

卧室标配飘窗,引入丰沛阳光,全家尽情舒展餐客一体贯通阳台,打造舒适、宽敞的欢聚天地奢享主卧,独享衣帽间、私人卫浴,自我非凡领地

双阳台设计,厨房连通生活阳台,延展更多空间,随心收纳本

建面约187m² 四房两厅两卫

横向创新户型,超宽向阳尺度,吸纳阳光新风

主卧私享化,独立卫浴、衣帽间,自在天地一隅四开间朝南,卧室大飘窗,在阳光中享受美好栖居

南北双阳台,一面晾晒收纳,一面休闲享受,精彩不止

如需了解更多内部折扣详情,

欢迎咨询开发商售楼处咨询/预约电话☎:400-065-2898(中介请勿扰)

温馨提示:看房请务必电话提前预约,避免临时无人接待,感谢您的配合!

开发商承诺:一对一专属开发商销售服务,尊享开发商内部优惠服务!

全部

相关资讯

报名成功
稍后会有专业的置业顾问联系您
返回楼盘

频道导航

返回首页

看房小程序

APP下载

电话拨通后,请您手动拨打分机号

确定拨打电话

电话号码:

分机号:(可能需要拨分机号)