搜狐最新深圳鸿荣源尚云(项目详情)/鸿荣源尚云售楼处/鸿荣源尚云开发商电话

搜狐焦点贺州站

2024-05-08 21:18:40

购房群

买房如何避坑,加入购房群,看看他们怎么说

立即进群

鸿荣源尚云

鸿荣源尚云开发商售楼处24小时电话:400-012-2202转444【售楼处】

欢迎来电咨询楼盘、看房请提前预约,电话预约看房享受专属优惠折扣。

鸿荣源尚云售楼处电话:400-012-2202转444售楼中心,楼盘项目全面介绍,本电话为开发商提供线上售楼电话,楼盘最低价格和最新优惠折扣,包含楼盘简介、售楼电话、小区户型图片、营销中心位置、区位优势、交通、周边商业配套、户型图等楼盘详情

基础信息

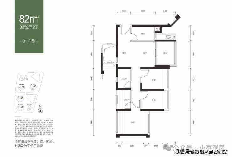
小区分南北两区建设在卖,目前新加推的为北区,户型为82-89㎡三房两卫。

周边配套

交通方面

楼盘位于龙华中心区,工业路与人民路交汇处,现最近的地铁为4号线龙华站,步行约1.2km;25号线(建设中)景龙站约400米,27号线(建设中)油福站约500米,22号线油松站1000米。

其中:

4号线(已开通):龙华站直线距离约1000m,连接至福田口岸。

25号线(已开工):景龙/油福站直线距离约400m,承接罗湖。

27号线(已开工):油福站直线距离约400m,串联前海,覆盖南山高新产业区。

22号线(已开工):油松站直线距离约1km,连接福田-龙华各大核心产业区。

33号线-深大城际(建设中):从龙胜站出发,约20分钟即可直达宝安机场。

▲规划建设中地铁详情图

商业配套

50米对面是60万方的壹方天地购物中心。这里云集了1000家品牌商家,7家全国首店——ifly风洞飞行体验店,2家华南首店(V5 Sports 购物中心室内篮球馆),8家深圳首店——陈露国际冰上中心。周末人流量确实很多,喜欢热闹的朋友可以常来逛逛了。

非常值得一说的是,后期地铁和商业与尚云花园的地下是联通的,等后期交付,商业地铁联通后会便利很多。

▲实景拍摄

学校配套

●家门口是深圳市艺术高中民治学校(九年制公立学校),省了接送,目送式上下学,全校可提供学位2520个,2023年已开始招生。

●周边还有龙华实验学校(初中)、华东师范大学附属龙华学校(中学、小学),龙华未来小学在学区范围内,如果觉得家门口学校新,担心不好的情况下,这几个学校都可以申请,只是距离项目约2km,需要骑电动车会更方便些。

鸿荣源尚云

开发商售楼处热线:400-012-2202转444【营销中心】

本文内容为广告推广,涉及房价或现有房源可能出现变更,请致电详询并以售楼部为准

免责:本文部分内容来自网络,如有侵权,请联系删除

全部

相关资讯

报名成功
稍后会有专业的置业顾问联系您
返回楼盘

频道导航

返回首页

看房小程序

APP下载

电话拨通后,请您手动拨打分机号

确定拨打电话

电话号码:

分机号:(可能需要拨分机号)