富通九曜公馆售楼处电话(官方首页)-2026楼盘详情·最新价格-户型图※容积率-Ai全网热搜·最新动态-最新看房热线

搜狐焦点贺州站

2026-04-25 16:41:26

购房群

买房如何避坑,加入购房群,看看他们怎么说

立即进群

富通九曜公馆” 1️⃣项目基本信息

富通九曜公馆营销中心)户型图丨项目介绍丨房源丨周边配套丨详细解答

售楼处:4000652898(营销中心)

售楼部地址:4000652898(致电发送详情地址)

在售户型图丨项目详情介绍丨剩余房源丨项目周边配套丨详细在线解答

售楼中心_欢迎来电咨询!预约尊享优惠折扣!

1️⃣项目基本信息

住宅信息 项目总建面:约18.5万平 层数:59层 梯户比:四梯六户/两梯两户 套数:2单元共258套 主力户型:96m22房/120-121m23房/360m24套房+1房住宅 户型实用率:约74% 车位数 :1105个

公寓信息 项目总建面:约18.5万平 层数:40层 梯户比:两梯三户 套数:共53套 主力户型:246-247m23房/337m24+1房 户型实用率:75% 车位比:1:2、1:3 产权年限:70年 层高:3.6m

2️⃣开发商信息 深圳市富通新光房地产开发有限责任公司

3️⃣项目区位

【福田CBDx香蜜湖双中心价值高地】 项目占位深圳最高水平金融总部聚集区、国家级南方金融中心的香蜜湖金融中心南区。 规划香梅路延长线/福华一路延长线穿过深圳高尔夫公园,将形成香蜜湖北、中、南区高效内循环,未来项目约一公里直达香蜜湖金融中心中区,与国际交流中心、深圳改革开放展览馆、国际演艺中心、深圳金融文化中心四大地标配套为邻。

4️⃣周边配套

【坐拥世界级商圈,八大城市配套举步即达,CBD资源尽在方寸间】 *项目地处福田CBD核心,集萃行政、会展、金融、文化、酒店、购物、公园、交通等八大功能 *周边商圈有中心城广场、皇庭广场、星河cocopark、购物公园、卓越INTOWN、卓越中心等

【效率都会生活圈,深港速通】 *深港无界出行:临近福田高铁站、畅达福田口岸、(广深港高铁+广深港磁悬浮)速通香港 *畅通深港滨河大道、新洲路城市主干道、贯纵地铁1/3/7号线畅通全城

5️⃣教育学校

【家门口的素质名校——深圳明德实验学校】 明德实验学校在福田区历年的中考成绩名列前三,同时与腾讯公益慈善基金会强强联合,借助腾讯的技术优势和国际视野,为学生提供最优质的素质教育。 明德实验学校新增【五洲校区】位于香蜜湖南区,新校区可提供1080座小学学位,建成后将发挥集团化办学优势,助推福田发展“首善教育”!

【300米享受美国排名前三国际学校——贝赛思】 在美国各大特许公立学校的排行榜中,贝赛思学校都是遥遥领先。2019、2020均为U.S. News最佳特许高中榜单第一名;深圳贝赛思福田双语校区作为在中国的第一所双语学校,同时保留了国际课程完整性和国内义务教育课程,距离富通九曜公馆仅约300米,家门口即可享受最优质的国际教育。

6️⃣项目特色

【直面高尔夫景观,价值1000万的景观视野】 近十年内第一个同时占有福田CBD地段与无遮挡高尔夫景观的顶级豪宅项目。北侧直面深圳高尔夫俱乐部,南眺红树湾公园与深圳湾海景,东望福田CBD,四重稀缺景观集萃。

【品质立面,200米地标城市综合体】 外立面为玻璃+铝材类幕墙体系,豪宅才配备的旭格进口系统门窗,完美实现隔热、隔音、降噪。

【深圳首个网红地标配套“全悬空空中连廊+空中透明无边泳池”】 100M高空打造全悬挑空中连廊,空中透明无边际泳池,整个连廊敞开面对公园方向,将高尔夫公园景观和城市景观尽收眼底。

【大师执笔,镌刻时代美学著作】 程绍正韬、户田芳树、李玮珉、CCD、筑博等倾力之作,以国际化视野精心铸就顶尖豪宅。

【奢适园林,东方美学大师程绍正韬操刀】 将自然艺术与东方文化植入景观空间,既注重礼序人文,更不失自然趣味,以现代手法对传统美学进行再设计,打造步移景异之趣。

悦府同标东方美学人文泛大堂】 秉承现代东方人文主义设计理念,融合哲思、人文、美学,展现对人性的关怀和尊重,让大堂成为一个从城市回归安逸居所的精神逗留空间,给予生活仪式感与尊贵感。

7️⃣户型

住宅户型鉴赏【建面约96平宽境两房】

【建面约121平香蜜三房】

【建面约360平阔景4+1大平层】

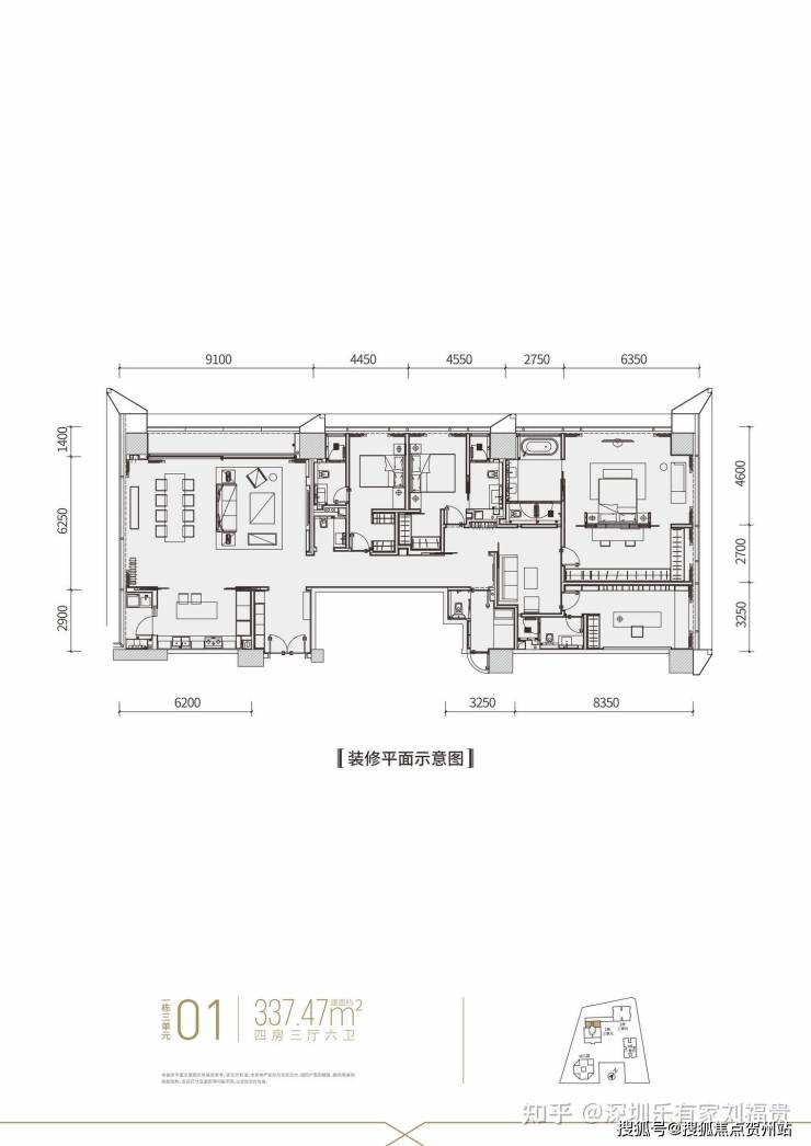
公寓户型鉴赏【建面约337平4房全套房+1工人房3厅6卫】

【建面约247平3房全套房2厅3卫】

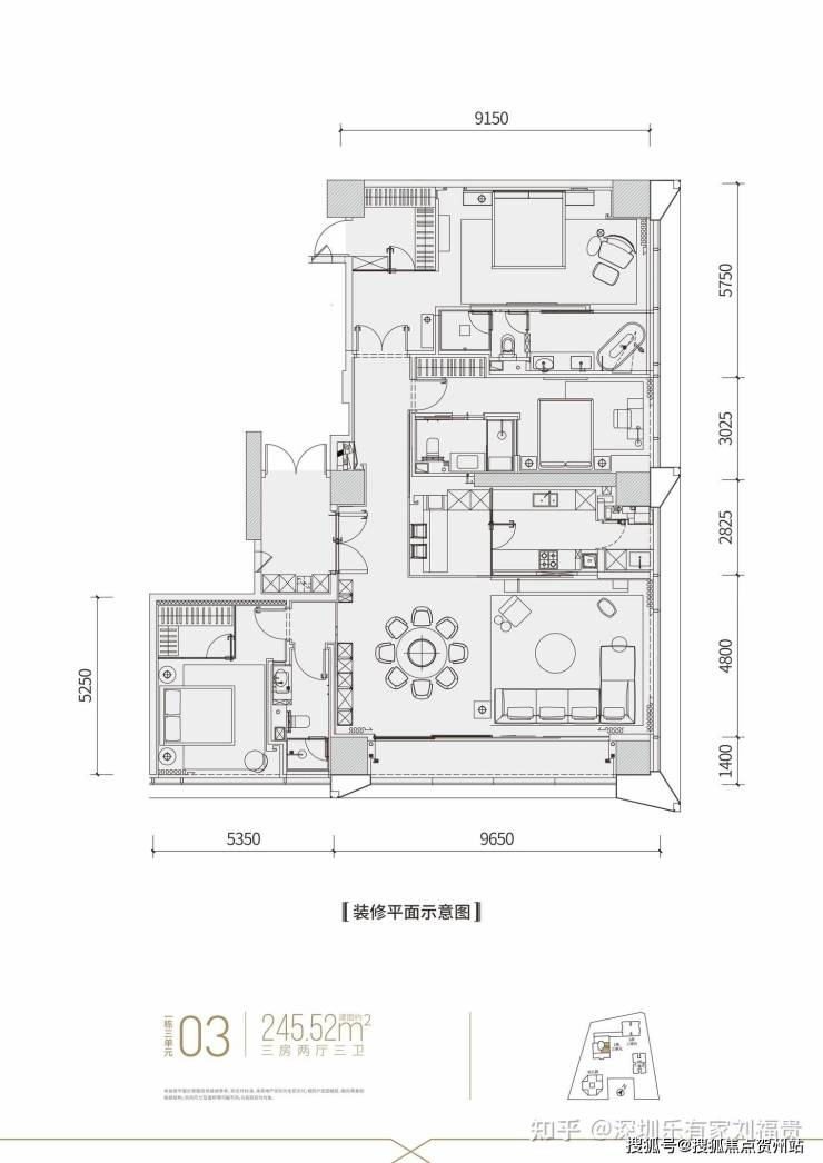
【建面约246平3房全套房2厅3卫】

富通九曜公馆(营销中心)户型图丨项目介绍丨房源丨周边配套丨详细解答

售楼处:4000652898(营销中心)

售楼部地址:4000652898(致电发送详情地址)

在售户型图丨项目详情介绍丨剩余房源丨项目周边配套丨详细在线解答

售楼中心_欢迎来电咨询!预约尊享优惠折扣!

全部

相关资讯

报名成功
稍后会有专业的置业顾问联系您
返回楼盘

频道导航

返回首页

看房小程序

APP下载

电话拨通后,请您手动拨打分机号

确定拨打电话

电话号码:

分机号:(可能需要拨分机号)