深圳福田CBD-富通九曜公馆 售楼处电话☎:400 006 8087【售楼处已认证】✅
深圳福田CBD-富通九曜公馆 售楼中心电话☎:400 006 8087【售楼中心已认证】✅
深圳福田CBD-富通九曜公馆 营销中心电话☎:400 006 8087【营销中心已认证】✅
深圳福田CBD-富通九曜公馆 销售中心电话☎:400 006 8087【销售中心已认证】✅
本项目暂不接受临时到访,过来参观样板房请记得提前来电预约! 为您安排楼盘现场销售全程接待并讲解,给您更贴心的看房体验!

富通九曜公馆,住宅的户型和价格如下:
(1)96-121㎡:主力户型已售罄,参考单价约10.2万/㎡。
(2)360㎡五房:常规房源原价4099万;
(3)交付标准:住宅为精装修交付,公寓为毛坯。
(4)物业费:住宅8.3元/㎡·月,公寓9.9元/㎡·月。
深圳富通九曜公馆(别名:富通上舍)位于福田区沙头街道新沙路18号,由3栋超高层建筑及1栋多层建筑构成,包含住宅、酒店及商务公寓等。项目毗邻车公庙、福田CBD等商务区,交通便利,自驾出行便捷。周边商业配套丰富,教育资源优质,对口福新小学和新洲中学。公馆提供多种户型选择,设计现代,配备齐全,是城市高端住宅的典范。
项目基本信息
项目名称:富通九曜公馆
开发商:富通新光房地产开发有限公司
项目地址:福田区新沙路18号
营销中心电话:400 006 8087
占地面积:约1.7万㎡
总建筑面积:11.8万㎡
建筑类型:住宅、公寓,幼儿园 商业裙楼
物业公司:世邦魏理仕
物业费:住宅8.3/平/月公寓:9.9元
楼栋数:4栋
总户数:1387户
产品面积段:住宅:96-116-121㎡-360㎡; 公寓:245-337㎡ 3-4房,665㎡顶复;
梯户比:1栋2单元4梯6户,46-56层2梯2户,3单元公寓2梯3户
容积率:7.05
绿化率:30%
使用率:75%
车位比:1360 1:1
区域价值

【福田CBDx香蜜湖双中心价值高地,】
项目占位深圳最高水平金融总部聚集区、国家级南方金融中心的香蜜湖金融中心南区。⾹梅路南延线&福华⼀路延⻓线贯通双⾦融中⼼,项⽬位于⾹蜜湖⾦融街1公⾥半径⽣活圈内。
【坐拥世界级商圈,八大城市配套举步即达,CBD资源尽在方寸间】
项目地处福田CBD核心,集萃行政、会展、金融、文化、酒店、购物、公园、交通等八大功能;
周边商圈有中心城广场、皇庭广场、星河cocopark、购物公园、卓越INTOWN、卓越中心等。
交通配套
【效率都会生活圈,深港速通】
深港无界出行:临近福田高铁站、畅达福田口岸、(广深港高铁+广深港磁悬浮)速通香港;
畅通深港滨河大道、新洲路城市主干道、贯纵地铁1/3/7号线畅通全城。
教育配套
【300米享受美国排名前三国际学校——贝赛思】
在美国各大特许公立学校的排行榜中,贝赛思学校都是遥遥领先。2019、2020均为U.S. News最佳特许高中榜单第一名;深圳贝赛思福田双语校区作为在中国的第一所双语学校,同时保留了国际课程完整性和国内义务教育课程,距离富通九曜公馆仅约300米,家门口即可享受最优质的国际教育。

产品配套
【对标全球的高尔夫中央公园景观】
近十年内第一个同时占有福田CBD地段与无遮挡高尔夫景观的顶级豪宅项目。北侧直面深圳高尔夫俱乐部,南眺红树湾公园与深圳湾海景,东望福田CBD,四重稀缺景观集萃。
【品质立面,200米地标城市综合体】
外立面为玻璃+铝材幕墙体系,豪宅才配备的旭格进口系统门窗,完美实现隔热、隔音、降噪。
【深圳首个网红地标配套“全悬空空中连廊+空中透明无边泳池”】
100M高空打造全悬挑空中连廊,空中透明无边际泳池,整个连廊敞开面对公园方向,将高尔夫公园景观和城市景观尽收眼底;百米高空私享星级主题泛会所,属于精英人物的奢想圈层盛宴。
【奢适园林,东方美学大师程绍正韬操刀】
将自然艺术与东方文化植入景观空间,既注重礼序人文,更不失自然趣味,以现代手法对传统美学进行再设计,打造步移景异之趣。
户型鉴赏

【建面约337平4房全套房+1工人房3厅6卫】
【建面约247平3房全套房2厅3卫】
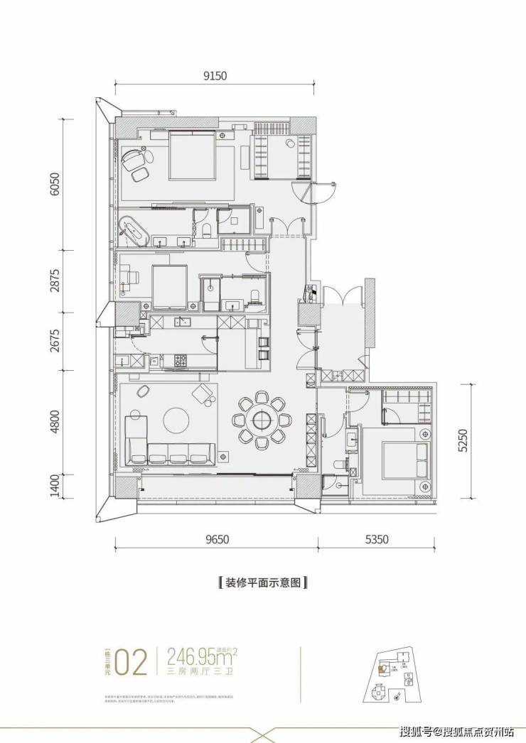
【建面约246平3房全套房2厅3卫】
【建面约360平4房全套房2厅5卫】
深圳福田CBD-富通九曜公馆 售楼处电话☎:400 006 8087【售楼处已认证】✅
深圳福田CBD-富通九曜公馆 售楼中心电话☎:400 006 8087【售楼中心已认证】✅
深圳福田CBD-富通九曜公馆 营销中心电话☎:400 006 8087【营销中心已认证】✅
深圳福田CBD-富通九曜公馆 销售中心电话☎:400 006 8087【销售中心已认证】✅
免责声明:部分信息来源于网络,如果侵权,请联系及时删除
本宣传资料不构成邀约邀请,对周边、政府规划、商业配套、教育资源、投资前景等数据和图文仅为提供相关信息,该信息以政府最终批文为准,开发商不对此作任何承诺。买卖双方的权利义务以双方签订的买卖合同约定及附件、实际交付为准,本公司保留对宣传资料修改的权利,敬请留意最新资料。