华侨城新展示中心华侨城新(营销中心)-华侨城新玺欢迎您-最新价格-户型图-容积率-楼盘详情-周边配套

搜狐焦点贺州站

2025-08-27 10:14:01

购房群

买房如何避坑,加入购房群,看看他们怎么说

立即进群

华侨城新玺 售楼处Vip Tel:400-031-6012售楼处【售楼处已认证☎☎】⭐

华侨城新玺 营销中心24小时电话:400-031-6012【营销中心☎☎已认证】⭐

华侨城新玺 营销中心24小时电话:400-031-6012【售楼中心☎☎已认证】⭐

华侨城新玺 售楼中心24小时电话:400-031-6012【售楼处限时特价】⭐

华侨城新玺 售楼中心24小时电话:400-031-6012【营销中心☎☎已认证】⭐

华侨城新玺 营销中心24小时电话:400-031-6012【售楼处☎☎已认证】⭐

⭐◆ 开发商营销中心诚挚邀请,为您安全和隐私保驾护航,一键预约,尊享内部折扣!匠心独运的精品项目,恭候您的品鉴与选择。⭐ 过来参观样板房烦请记得提前来电预约!安排楼盘现场销售全程接待并讲解,给您更贴心的看房体验!

项目基础数据

开发商:华侨城新玺发展有限公司

物业公司:华侨城物业

梯户比:商办10梯5户,10梯6户;公寓3梯2户,3梯1户

产品类型:(商务公寓/办公/酒店)

占地面积:25147.13平方米

建筑面积:288268.36平方米

产权年限:40年(2018-2058)

容积率:9.13

绿化率:30%

总房源:226户

层高:3.6-4米

车位:660个

物业费:14.8元/㎡/月

在售户型:

⭕️商办:320-500平

⭕️公寓:230-280-350-468-500-700平米

在深圳湾这片豪宅聚集地,深圳湾一号、恒裕深圳湾与华侨城新玺并列为三大顶级豪宅。而在这其中,华侨城新玺以其独特的魅力脱颖而出,成为唯一提供200平米以上纯大户型的豪宅项目,堪称性价比之王!

华侨城新玺项目位于深圳市南山区蛇口街道南端,南临深圳湾,与香港元朗隔海相望。该项目由深圳市华侨城新玺发展有限公司开发,分为两期开发,主要由三栋高层建筑组成。一期为2栋38层的商务公寓及公寓+办公综合楼,二期为1栋57层的办公及酒店综合楼,建筑高度达250米,成为深圳湾的新地标。

<项目基本信息>

占地面积:约2.5万㎡

建筑面积:约28.9万㎡

面积:230-260-350-399-480-630-700㎡

梯户比:3梯2户、3梯1户

物业费:14.8元/㎡

交房:现楼(即买即住)已入伙

开发商:深圳市华侨城新玺发展有限公司

项目地址:深圳市南山区湾厦路1号

寰海标杆之作,定鼎海岸传奇

【品牌】36载华侨城,实力央企的品牌创想

【区域】蛇口联动前海、深圳湾,三大千亿级经济中心叠加发展

【地段】三面环海半岛,深圳湾线绝版地段,成就世界海岸的坐标

【景观】纵览270°海景,15公里滨海长廊上盖,物尽珍藏,与自然无间

【配套】集结湾区首屈一指的文化艺术坐标,高端商业配套环伺,奢享国际都市生活场

【产品】250米地标级超高层,定鼎深湾之作,4m舒阔层高,只此再无

【酒店&商业】一线酒店品牌酒店入驻,立体开放式悦享天地,奢享全优配套

【奢享配套——私密半岛,环海花园】

①首层城市花园,无缝连接15公里滨海长廊

②自带约2.5万㎡峡谷中庭式商业,滨海购物新体验

③高端私密会所、深圳首个悬空无边际海景泳池

休闲与景观

华侨城新玺三面环海,拥有得天独厚的海景资源。项目内部规划有屋顶花园、健身房和SPA等配套设施,为居民提供高品质的休闲体验。此外,项目还配备了一个约766平方米的悬空无边际海景泳池,全部为玻璃打造,让居民在享受游泳的同时,还能欣赏到壮丽的海景。

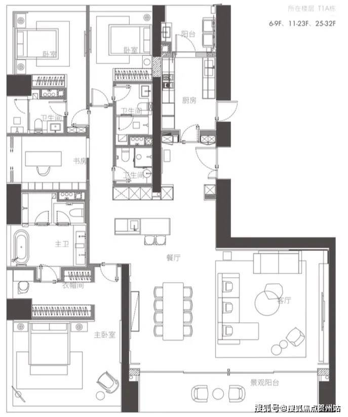
户型鉴赏

【一栋 一、二单元】(6-32层)三梯两户

华侨城新玺提供多种户型选择,满足不同购房者的需求。户型面积范围广泛,从232㎡到700㎡不等。具体户型包括1室1厅1卫、2室2厅2卫、3室2厅3卫、4室3厅5卫、5室3厅6卫以及6室3厅7卫等多种配置。户型设计合理,空间宽敞明亮,注重人性化需求。部分户型还配备了超大阳台和全景落地窗,让居民能够尽享海景和城市美景。

【一栋 一、二单元】

(6-32层)

三梯两户

01户型 西端户 约350㎡ 四房两厅四卫

(01、04镜像对称)

南、西、北,三面景观视野

看深圳湾海景、内海景、城市景观

04户型 东端户 约350㎡ 四房两厅四卫

(01、04镜像对称)

南、东、北,三面景观视野

看深圳湾海景、内海景、城市景观

【一栋 一、二单元】

(6-32层)

三梯两户

01户型 西端户 约350㎡ 四房两厅四卫

(01、04镜像对称)

南、西、北,三面景观视野

看深圳湾海景、内海景、城市景观

04户型 东端户 约350㎡ 四房两厅四卫

(01、04镜像对称)

南、东、北,三面景观视野

看深圳湾海景、内海景、城市景观

蛇口渔港整体规划将被打造成集市民休闲、海洋主题教育、文化艺术交流、高端住宅、旅游娱乐、商业办公等功能于一体,也将成为深圳一张靓丽的城市名片。

【景观—三面环海,收放世界想象】

国际湾区唯一三面环海的海幕豪宅,天赋臻稀,独具匠心的建筑排布与户型设计,最大程度上保留了270°的海景视野。

纵观整个深圳,新玺无疑担当着承载这座城市成为国际滨海门户与世界客厅的使命,城市的精英人物在此汇聚,就等你了!

新玺展示中心 实拍图

西侧太子湾景观&海景

东北侧城市景观

北侧内湾&城市景观

南侧景观

新玺展示中心造景 实拍图

新玺展示中心 实拍图

华侨城新玺 售楼处Vip Tel:400-031-6012售楼处【售楼处已认证☎☎】⭐

华侨城新玺 营销中心24小时电话:400-031-6012【营销中心☎☎已认证】⭐

华侨城新玺 营销中心24小时电话:400-031-6012【售楼中心☎☎已认证】⭐

华侨城新玺 售楼中心24小时电话:400-031-6012【售楼处限时特价】⭐

华侨城新玺 售楼中心24小时电话:400-031-6012【营销中心☎☎已认证】⭐

华侨城新玺 营销中心24小时电话:400-031-6012【售楼处☎☎已认证】⭐

⭐◆ 开发商营销中心诚挚邀请,为您安全和隐私保驾护航,一键预约,尊享内部折扣!匠心独运的精品项目,恭候您的品鉴与选择。⭐ 过来参观样板房烦请记得提前来电预约!安排楼盘现场销售全程接待并讲解,给您更贴心的看房体验!

全部

相关资讯

报名成功
稍后会有专业的置业顾问联系您
返回楼盘

频道导航

返回首页

看房小程序

APP下载

电话拨通后,请您手动拨打分机号

确定拨打电话

电话号码:

分机号:(可能需要拨分机号)