深圳——华侨城新玺最新介绍:备案价、折扣、学区、地铁、交通、户型图、特价房、优缺点、得房率、优惠活动、小区图片、开盘时间、交房时间、周边配套、最新详情等咨询。
华侨城新玺售楼处电话: 400 -045-8086预约来访下定当天更享折上折!!
(售楼中心 | 欢迎来电咨询 | 请提前预约登记看房 | 1:1销售专业讲解)
华侨城新玺营销中心热线: 400-045-8086(售楼处)【VIP贵宾专线】
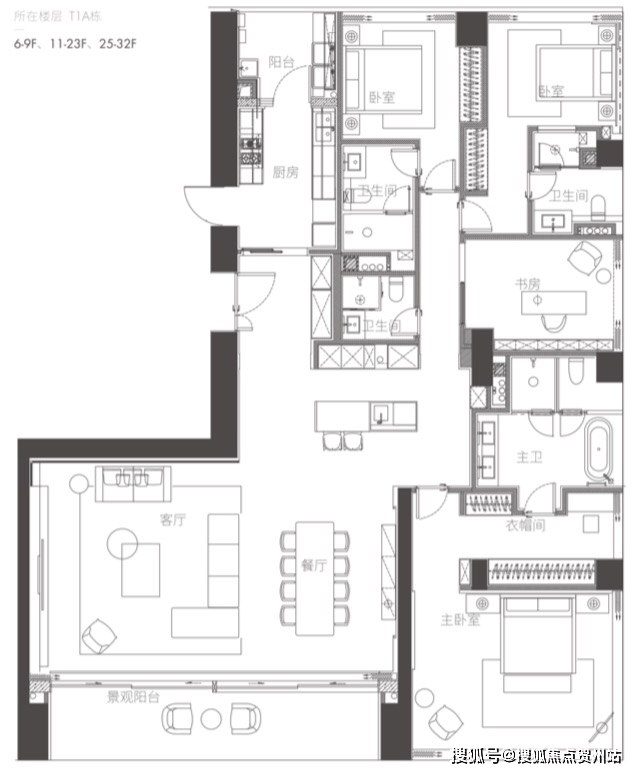
户型鉴赏
【一栋 一、二单元】(6-32层)三梯两户

华侨城新玺提供多种户型选择,满足不同购房者的需求。户型面积范围广泛,从232㎡到700㎡不等。具体户型包括1室1厅1卫、2室2厅2卫、3室2厅3卫、4室3厅5卫、5室3厅6卫以及6室3厅7卫等多种配置。户型设计合理,空间宽敞明亮,注重人性化需求。部分户型还配备了超大阳台和全景落地窗,让居民能够尽享海景和城市美景。
【一栋 一、二单元】
(6-32层)
三梯两户

01户型 西端户 约350㎡ 四房两厅四卫
(01、04镜像对称)
南、西、北,三面景观视野
看深圳湾海景、内海景、城市景观

04户型 东端户 约350㎡ 四房两厅四卫
(01、04镜像对称)
南、东、北,三面景观视野
看深圳湾海景、内海景、城市景观

让深圳豪宅单价突破30万/㎡、刷新认知的,正是坐拥一线世纪海景的华侨城新玺

对于关注深圳楼市的人来说,新玺并不陌生,这个单套总价动辄半亿的深圳湾绝版藏品,自面市起便是顶豪们竞相追逐的焦点。
此次的500㎡看海大平层,更是项目入市四年后推出的颠覆性新品。
若论其核心价值,在壹地产看来新玺拥有四大不可复制的基因,其中,“地缘”无疑是最耀眼的一张王牌。
众所周知,深圳的财富主场,既在西边,更在海边。深圳叫得出名字的豪宅、最贵的房子,几乎都集中在深圳湾这条沿线上。

新玺,不仅立于这条最值钱的黄金海岸线上,更以两大价值内核,重塑海景豪宅的全新标准:
其一,在景观占有上,实现了对传统海景豪宅的全方位超越;
其二,在时代禀赋上,深度融入了深圳湾“海上时代”的发展进程。

除了是深圳湾海岸线上唯一户户看海项目,新玺布局上更是南、西、北三面环海,实现了无切割、无遮挡的270°环幕海景视野。
并且区别于深圳湾的内海海景,新玺面向的是广阔无垠的外海,拥有的深圳湾海景资源是最多、最突出的。
某种程度而言,在新玺不是简单的看海,而是“拥有海”。

更关键的是,新玺所处的深圳15公里滨海豪宅线已开发殆尽,沿线一带基本不可能再进行填海。
华侨城新玺,坐落在深圳湾15公里滨海长廊一线的黄金资产,堪称独一无二的稀世珍宝。它的稀缺性无法复制,犹如大自然的鬼斧神工,赋予了它与生俱来的优势,让它成为了不可再生的珍宝。
这里山海相映,交织出壮美的画卷。一步即达国际滨海生活的魅力所在,奢享大自然的馈赠,聆听其私语,感受其宝藏。
这座黄金资产,如明珠镶嵌于深圳湾,诠释着人与自然和谐共生的愿景。每个角落都散发自然与人文的和谐之美,四季绿意盎然,三面环海无垠。城市的繁华与自然的宁静交融,宛如美丽的画卷。

【景观—三面环海,收放世界想象】
国际湾区唯一三面环海的海幕豪宅,天赋臻稀,独具匠心的建筑排布与户型设计,最大程度上保留了270°的海景视野。
大师手笔
新玺的背后,真正站着两位设计界巨擘:GMP创始人冯・格康,和KKAA创始人隈研吾。
前者以宏大叙事与精密工艺著称,设计过欧洲最大的交叉式火车站柏林中央车站,升级过中国国家博物馆,作品可谓遍布全球。
这一次,他将对建筑的独特理解与创新精神融入了新玺的设计之中。
一方面在建筑布局上,三栋塔楼以交错方式排列,巧妙地打破了密集感,实现了视野的最大化,让每一户都成为观海的 “黄金席位”。
同时罕见地把公建级的耐腐蚀工艺搬进居所,并运用钻石切面的设计手法让光影在建筑上自由流动,与极简的海平面相互映衬。
而后者,则擅长将建筑隐于自然,这位享有极高国际声誉的设计大师寻求空间与周围环境融为一体,善于让空间蕴含着过去又定义着未来,每个作品都堪称教科书级。
两位国际顶尖建筑师共铸一席,这样的组合不仅罕见,更藏着一座建筑难以被复刻的价值内核。
占地面积:约2.5万㎡
建筑面积:约28.9万㎡
面积:230-260-350-399-480-630-700㎡
梯户比:3梯2户、3梯1户
物业费:14.8元/㎡
交房:现楼(即买即住)已入伙
开发商:深圳市华侨城新玺发展有限公司
售楼处热线:400-045-8086【营销中心】
本文内容为广告推广,涉及房价或现有房源可能出现变更,请致电详询并以售楼部为准
免责声明:本文如无意中侵犯了某方的知识产权告知即删,部分内容图片可能来源于网络,无法核实其真实出处,如涉及侵权请联系本网站删除!!