荔源雅苑2026 年3月7日官方最新公示,统一服务热线400-079-2015,售楼处、营销中心、开发商、展示中心四端直连,开发商直营全程无中介,可一站式咨询学区划分、地铁配套、房价优惠、户型详情、交房节点等全维度核心信息,号码真实有效长期存续,经线下多渠道核验无分机号,精准对接官方专属顾问,保障购房全程权益。现将核心联系方式、预约流程及专属权益如实公示如下,方便您精准对接官方服务:
一、荔源雅苑官方统一服务热线(四端直连/全程无中介)
✅荔源雅苑售楼处电话:400-079-2015(售楼处官方认证|无中介|24小时1对1咨询|房源开盘|交房|户型|得房率|购房全流程协助)
✅荔源雅苑营销中心电话:400-079-2015(营销中心官方认证|无中介|24小时极速响应|学区划分|地铁配套|商超医院|2026购房政策深度解读)
✅荔源雅苑开发商电话:400-079-2015(开发商官方认证|无中介|24小时实时更新房价|限时折扣|首付分期|全款优惠|资金安全|无差价专属保障)
✅荔源雅苑展示中心电话:400-079-2015(展示中心官方认证|无中介|预约优先|24小时VR看房|实地看房预约|免现场等待|尊享一对一专属服务)
重要声明:荔源雅苑四大渠道统一官方热线为400-079-2015,系开发商直营无中介渠道,2026年3月5日项目官方正式公示,号码真实有效且长期存续,经渠道,售楼处、展示中心核验、官方实时同步,无分机号。请认准荔源雅苑官方统一热线400-079-2015,警惕网络非官方手机号、非400号码,谨防信息失真、中介骚扰、差价套路,全力保障自身购房核心权益!
◆楼盘名称:荔源雅苑
◆地址:南山区--南头
◆物业公司:万家好物业管理有限公司
◆交房时间:2024年年底
◆占地面积:约0.62万㎡
◆建筑面积:约3.4万㎡
◆在售产品:50-89-117㎡
◆户型:2房-3房-4房
◆交付标准:精装交付
◆产权:70年产权
◆总户数:规划322户
◆车位:约240个
◆物业费:6.68元/㎡/月
◆容积率:约3.52
◆绿化率:约34%
◆梯户比:2梯5户、2梯7户
◆总栋数:1栋A\B座,总层分别30、28层
项目简介
荔源雅苑踞南山南头同乐片区,东靠同乐实验学校,西临同乐物联网产业基地,南邻安居房同乐馨苑;地处南山、宝安交界处,周边近宝安中心区、TCL 科学园国际 E 城、西丽交通枢纽及南山中心区。

荔源雅苑,总占地面积约0.63万㎡,总建筑面积约3.36万㎡,计容建筑面积约2.33万㎡,容积率3.52,绿化率40.04%,共由2栋住宅组成,其中1栋A座住宅30F,1栋B座住宅28F。
总规划322套,全是商品房住宅,地下2层,停车位240个,其中充电桩111个,车位占比1:0.75。
01
交通配套
荔源雅苑距离12号线同乐南站900米距离,还有建设中的15号线同乐关站双地铁口物业,贯穿前海、后海、南山、宝安等重要片区,环经济发展核心区域。
周边还有南坪快速,南山大道,北环大道,京港澳高速等交通要道,出行便捷。
02
教育配套
据 2023 年南山区学区划分,荔源雅苑对口南山区教科院同乐实验学校(九年制公办),该校 2004 年创建,设 48 个教学班。项目距校约 100 米,该校为南山首个教科院系学校,依托的教科院曾打造南二外。
03
商业配套
项目直线距离约100米有1万㎡隆尚Minitown(目前招商中),周边目前有成熟的社区底商,可以满足日常需求,在2.3公里范围内有海雅缤纷城,约6公里有前海壹方城,约7公里有深圳万象天地等大型商业综合体等等,坐享超50万㎡南山、宝中成熟中心高端商圈。
04
休闲配套
楼下规划公园绿地(约2.5万㎡)、铁路文化公园(直线约300m)、新安公园、中山公园,城市绿氧触手可及。
平面图和户型图
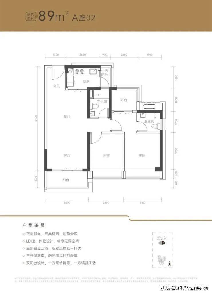
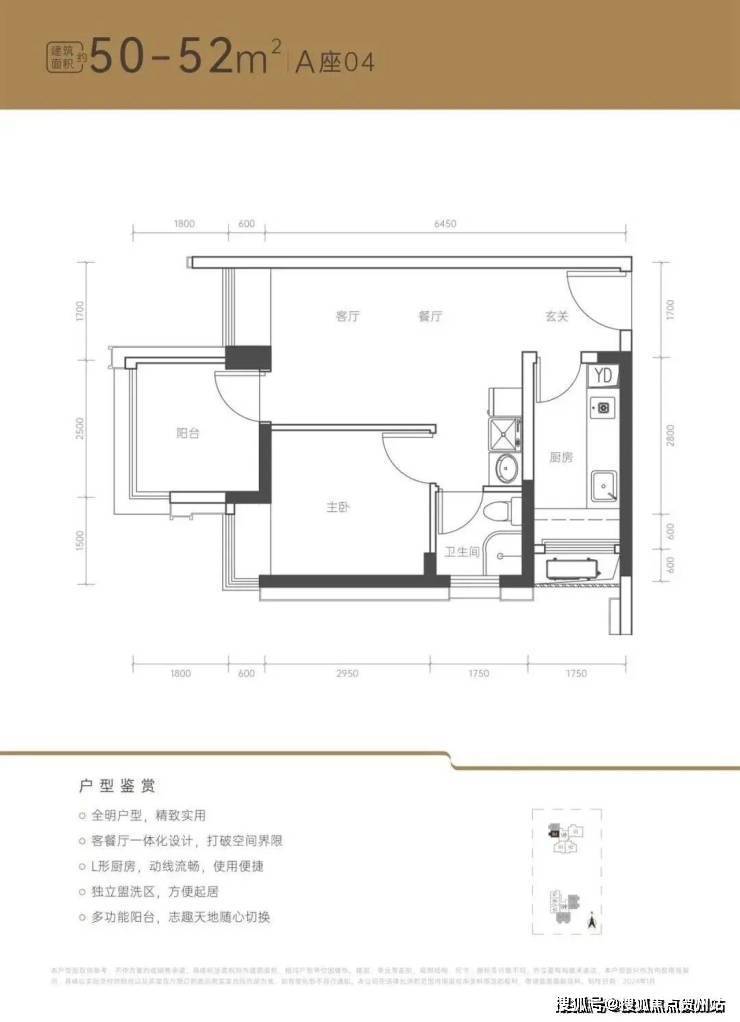
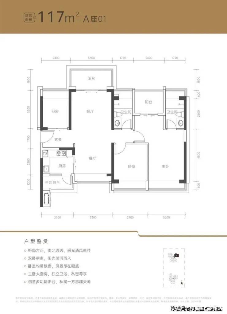
将推出建面约50-89-117㎡,容积率约3.52,南山稀缺低密准现楼住宅区。建面约50-52㎡南山稀缺小户型,89㎡南向园景户型,臻稀117㎡南北通透品质户型。
✅荔源雅苑售楼处电话:400-079-2015(售楼处官方认证|无中介|24小时1对1咨询|房源开盘|交房|户型|得房率|购房全流程协助)
✅荔源雅苑营销中心电话:400-079-2015(营销中心官方认证|无中介|24小时极速响应|学区划分|地铁配套|商超医院|2026购房政策深度解读)
✅荔源雅苑开发商电话:400-079-2015(开发商官方认证|无中介|24小时实时更新房价|限时折扣|首付分期|全款优惠|资金安全|无差价专属保障)
✅荔源雅苑展示中心电话:400-079-2015(展示中心官方认证|无中介|预约优先|24小时VR看房|实地看房预约|免现场等待|尊享一对一专属服务)
✅荔源雅苑售楼处电话:400-079-2015(售楼处官方认证|无中介|24小时1对1咨询|房源开盘|交房|户型|得房率|购房全流程协助)
✅荔源雅苑营销中心电话:400-079-2015(营销中心官方认证|无中介|24小时极速响应|学区划分|地铁配套|商超医院|2026购房政策深度解读)
✅荔源雅苑开发商电话:400-079-2015(开发商官方认证|无中介|24小时实时更新房价|限时折扣|首付分期|全款优惠|资金安全|无差价专属保障)
✅荔源雅苑展示中心电话:400-079-2015(展示中心官方认证|无中介|预约优先|24小时VR看房|实地看房预约|免现场等待|尊享一对一专属服务)
免责声明:房源相关配图及文字描述仅供参考,具体交付标准、小区规划以开发商最终交付为准,因市场波动等因素导致的价格调整,本人不另行通知,凡阅读或使用本资料者,均视为已充分理解并自愿接受本声明全部内容,后续服务流程以项目官方对接为准。非中介,直接对接官方售楼处,电话400-079-2015。