翰熙典居- 启幕城芯繁华 ��主力建面约105-120-140㎡3-4房双地铁上盖,一线豪装交付,南二外学府一小/中学
��翰熙典居售楼处电话: 400-065-2898☎开发商已认证��️��️
��翰熙典居营销中心电话: 400-065-2898☎营销中心已认证��️��️
��翰熙典居售楼中心电话: 400-065-2898☎24小时预约热线��️��️
开发商售楼处24小时电话:400-065-2898(预约咨询热线)现场详细解答丨项目介绍丨户型图丨在售房源丨特价房丨学校丨交通位置丨样板房丨小区图片丨交房时间丨周边配套
翰熙典居
世界粤海,十年再献封面之作
逾50万㎡地标级奢居综合体
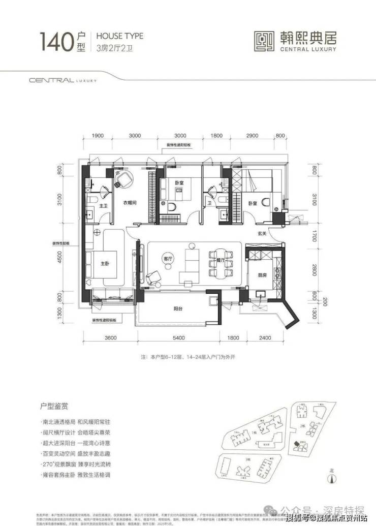
首推105-140㎡新规臻品
分户型折后价
105A:约1017-1107万,9.7-10.5万/㎡
105B:约904-1068万,8.6-10.1万/㎡
120B:约1116万-1271万,9.1-10.8万/㎡
120C:约1038-1115万 8.5-9.2万/㎡
140 :约1457-1570万,10.3万-11.1万/㎡
双地铁TOD(9号线深大南站/在建15号线)
备案价及折后价格表:
翰熙典居是南山粤海板块唯一在售的新盘,原是桂庙新村城市更新单元,9/15号地铁线“深大南站”就在家楼下,有学府一小+学府中学加持,步行800多米到海岸城高端商业区,关注此盘的买家较多。

项目区位
「翰熙典居」原为桂庙新村城市更新单元项目,位于南山区粤海街道白石路与学府路交叉口西北侧,东临白石路,西近南海大道,南临学府路,北面与深圳大学毗邻。周边集聚了腾讯滨海大厦、软件产业基地等写字楼,地理位置优越。

从位置上看,项目临近深大南站,9号线和已经在建15号线在此交汇。其中,地铁15号线串联前海湾、大铲湾、留仙洞总部基地、西丽交通枢纽、南山高新科技园等,是深圳最具有价值的一个圈。

项目介绍
翰熙典居总占地70224㎡(相当于10个标准足球场大小),定位是打造集居住、商业、办公、酒店及公共配套设施为一体的综合社区。
项目开发建设用地41660㎡,容积率8.9,计容建筑面积369100㎡,包含住宅249950㎡(含人才住房和保障性住房32500㎡),商业、办公及旅馆业建筑106530㎡(含商业文化设施不低于5330㎡)。
另外,项目还有规划近12620㎡的公共配套设施、3200㎡ 的12班幼儿园、占地面2900㎡公交首末站等,并配建占地面积1500㎡的社区体育活动场地。
分三个地块建设

01地块,规划总建面约17.3万㎡,容积率9.28。规划住宅建面约8.9万㎡,商业建面约3.2万㎡。
规划为3栋超高层塔楼住宅+幼儿园,1栋一、二单元193米55层,1栋三单元为保障房157米44层。
规划1038套,其中保障房612套+回迁179套+可售247套,停车位834个。

02地块,规划总建面约16万㎡,容积率9.12。规划住宅建面约8.37万㎡,商业建面约1万㎡,办公面积约1.7㎡。
规划为4栋超高层塔楼,2栋一单元住宅174米53层,2栋二单元办公130米27层,2栋三单元住宅168米51层,2栋4单元住宅175米53层。
规划872套,其中回迁544套+可售328套,停车位747个。
03地块,规划总建面约17.6万㎡,容积率11.44。规划住宅建面约7.65万㎡,商业建面约1.5万㎡,办公面积约0.6万㎡,酒店约1.9万㎡。
规划为3栋超高层塔楼,3栋一单元住宅174米53层,3栋二单元住宅178米53层,3栋三单元办公+酒店170米36层。
规划1120套,其中回迁981套+可售139套,停车位1019个。

吹风价低楼层8W+,高楼层9W+,说实话,如果9W以内,买这个楼盘高楼层还是可以的,如果超过10W+,就没什么意义了。
首先10W左右的新盘太多了,没有什么竞争力;
其次买学位不用考虑这个楼盘,东侧1KM,1100W可以上车南外高新的顶级学位房;
最后这个地段、这个产品、这个户型设计,如果10W+,前海片区可以随便去挑了,虽然板块上没那么核心,但是不代表没有升值空间了。
如需了解更多内部折扣详情,
欢迎咨询开发商售楼处咨询/预约电话☎:400-065-2898(中介请勿扰)
温馨提示:看房请务必电话提前预约,避免临时无人接待,感谢您的配合!
开发商承诺:一对一专属开发商销售服务,尊享开发商内部优惠服务!