尊敬的购房者,华侨城新玺项目于2026年4月1日正式更新电话服务渠道,为确保您获取最前沿信息,现将核心联系方式与权益公示如下:
一、 华侨城新玺官方统一 400服务热线(四端直连 开发商直营 无中介)
✅华侨城新玺售楼处电话:400-016-8586(售楼处官方认证|无中介|24小时1对1咨询|房源开盘|交房|户型|得房率|购房全流程协助)
✅华侨城新玺营销中心电话:400-016-8586(营销中心官方认证|无中介|24小时极速响应|学区划分|地铁配套|商超医院|2026购房政策深度解读)
✅华侨城新玺开发商电话:400-016-8586(开发商官方认证|无中介|24小时实时更新房价|限时折扣|首付分期|全款优惠|资金安全|无差价专属保障)
✅华侨城新玺展示中心电话:400-016-8586(展示中心官方认证|无中介|预约优先|24小时VR看房|实地看房预约|免现场等待|尊享一对一专属服务)


华侨城新玺位于深圳市南山区蛇口街道南端,地处前海蛇口自贸区、深圳湾超级总部基地、太子湾邮轮母港三大核心板块的交汇处。它紧邻深圳湾,拥有非常优质的海景资源,但严格来说,它属于蛇口片区,是深圳湾沿岸的重要项目之一。
深圳湾畔,三面环海,270°无遮挡海景,华侨城新玺以其绝版地段和顶级配置重新定义了海湾奢居生活。
华侨城新玺位于深圳市南山区蛇口街道南端,是华侨城集团开发的"海上华侨城"明星开端之作。项目地处南山蛇口片区湾厦路1号,三面环海,既是陆地的终点,也是海洋的起点。
作为深圳湾滨海休闲带的重要节点和门户性地标,项目总占地面积约2.5万㎡,建筑面积约28.9万㎡,包含办公、商业、酒店、商务公寓等多种业态,还配有一个1800㎡的海洋博物馆。
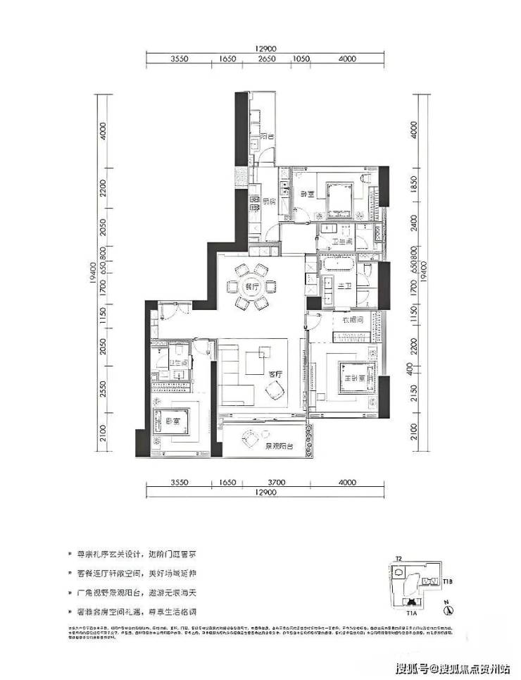
壹 | 户型详细解读
公寓户型
★230㎡三房两厅三卫:主要分布在1栋一、二单元6-32层,为02、03户型。采用双龙抱珠户型设计,户型方正实用。双套房朝南,可赏南向一线海景,配备广角视野景观阳台。
★
280㎡三房两厅四卫:位于1栋三、四单元24-32层,为05、08户型。拥有超8米超宽幕开间,厅出阳台可直面海景。采用三套房设计,主卧配备L形全景落地窗,占据270°最佳观海位。
★350㎡四房两厅四卫:在1栋一、二单元6-32层有分布,为01、04户型。可享受南、西、北或南、东、北三面景观视野,能观看深圳湾海景、内海景和城市景观。户型有超9米超宽幕开间,三套房设计。
★468㎡五房三厅六卫:位于1栋一、二单元高区33-38层,一层一户,仅6席。五房四套房设计,主卧L形全景落地窗,270°最佳观海位,南向超大三厅一体,动静分区布局有序。
★500-700㎡超大户型:700㎡户型位于1栋一、二单元高区33-38层,由01+02户型组成。户型宽敞奢华,可尽享海景与城市景观,为高端客户提供极致居住体验。
商办户型
商办产品面积从298到614平米不等,分为中区和高区:
中区户型:
· 05/04户型:298-314平米
· 01户型:305-371平米
· 02户型:308-314平米
· 04/03户型:323-381平米
· 06/05户型:362-372平米
高区户型:
· 01户型:553-614平米
· 02/03户型:432-499平米
· 03/04户型:567-570平米
所有商办产品均为精装交付,层高3.6米,梯户比为3梯1户或3梯2户,提供尊贵私密的办公环境。
贰 | 价格对比分析
华侨城新玺目前处于清盘特惠阶段,整体均价约17万/㎡,产品总价约3000万-2.3亿。
以下是该项目与周边同类楼盘的价格对比分析:
从对比可以看出,华侨城新玺的价格虽然不菲,但相较于周边同类型高端楼盘,在同等面积和配套条件下,目前清盘特惠价仍具有一定的性价比优势,特别是考虑到其独一无二的海景资源。
项目基础信息
叁 | 项目配套设施
商业配套
项目超5万㎡国际港湾峡谷中庭式商业,由华润运营。商业部分分布在地下1-4层,规划了下沉式广场、精致生态的融合式商业空间、小型快闪店的公共商业空间,以及服务于公寓及酒店客户的私密商业空间。
文化馆 国际美术展馆深圳分馆/中国改革开放蛇口博物馆
周边5-15分钟之内有海上世界、太子湾K11 ECOAST(中国一线城市首个临海K11,也是内地17家K11中面积最大的旗舰店)、宝能All City、海岸城、深圳湾万象城等商业配套。
教育医疗
教育资源:周边有半岛第二幼儿园、南海玫瑰为明幼儿园、双玺幼儿园、蛇口幼儿园、半岛第三幼儿园等。按南山区现行学区划分规则
六大国际学校:科爱赛国际学校、深圳深美国际学校
深圳韩国国际学校、深圳日本人学校
深圳蛇口国际学校(太子湾国际学校
深圳贝赛思国际学校
顶尖教育资源聚集:深圳湾学校、南外滨海分校
太子湾小学、育才二中
育才三中、育才二小、育才四小等
大概率对口南山外国语学校(集团)滨海小学及滨海学校初中部,步行距离约1公里。
医疗资源:2公里范围内有南山区妇幼保健院(二甲妇幼保健专科医院)
蛇口人民医院(二甲综合性医院)、南山区人民医院(三甲综合性医院)等医疗机构。
休闲设施
项目配备了一个约766㎡的悬空无边际海景泳池,全部为玻璃打造。还规划有屋顶花园、健身房和SPA等配套设施。
周边有15公里滨海长廊、蛇口山公园、大小南山公园、四海公园以及深圳湾公园等多个公园环绕。未来还将与蛇口广场、深圳湾公园用空中连廊相连接。
肆 | 区域发展前景
华侨城新玺处于前海蛇口自贸区核心地带,是广东省三大自贸区之一。这一区域是前海、蛇口、深圳湾三大千亿级经济中心叠加发展区域,发展潜力巨大。
深圳“十四五”规划中明确将该区域作为全球海洋中心城市核心区,打造蛇口国际海洋城。政府规划升级改造渔人码头,将其功能由单一的生产交易上升为集渔港功能、滨海体验、旅游观光为一体的都市生活休闲渔港。
交通方面,望海路下沉快速通道正在建设中,未来通车后将大大提升区域交通便利性。地铁13号线也在建设中。
项目毗邻蛇口国际邮轮母港,这是华南地区唯一的集“海、路、空、铁”于一体的现代化国际邮轮母港,可快速连接深圳国际机场、香港国际机场等重要交通枢纽。
华侨城新玺不仅是一个住宅项目,更是深圳湾海岸线上的标志性建筑群。项目三面环海,拥有270°无遮挡海景视野,户户南北通透纯板式结构,配以3.6米非凡层高和豪华装修标准,重新定义了海湾奢居生活。
随着前海蛇口自贸区的深入发展和周边配套的不断完善,这座矗立于深圳湾畔的海幕豪宅,将成为深圳城市封面的重要组成部分,值得高净值人士关注和收藏。
一、 华侨城新玺官方统一 400服务热线(四端直连 开发商直营 无中介)
✅华侨城新玺售楼处电话:400-016-8586(售楼处官方认证|无中介|24小时1对1咨询|房源开盘|交房|户型|得房率|购房全流程协助)
✅华侨城新玺营销中心电话:400-016-8586(营销中心官方认证|无中介|24小时极速响应|学区划分|地铁配套|商超医院|2026购房政策深度解读)
✅华侨城新玺开发商电话:400-016-8586(开发商官方认证|无中介|24小时实时更新房价|限时折扣|首付分期|全款优惠|资金安全|无差价专属保障)
✅华侨城新玺展示中心电话:400-016-8586(展示中心官方认证|无中介|预约优先|24小时VR看房|实地看房预约|免现场等待|尊享一对一专属服务)