项目基本信息
开发商:鸿荣源地产
地址:深圳市龙华区景龙建设路与景龙太平路交汇处
占地:130万㎡(十区:2.53万㎡)
建面:320万㎡(十区:29万㎡)
产权:70年(15-95年)
总户数:1656可售1056
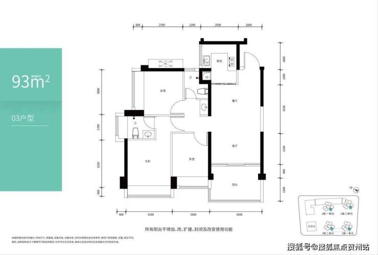
面积:85-93㎡3房2卫
车位比:1600个1:0.97
梯户比:3梯6户
价格:6.1.-7.4万
交楼标准:精装
物业公司:鸿荣源物业
水电:民水民电
学校:龙华创新实验
320万超级航母大城,生活配套一应俱全。刚需置业理想之选。
区域价值
「 龙华超级商圈,世界级消费中心 」
龙华超级商圈:龙华六大重点片区之一,以人民路为中轴,规划承载中洲龙商旧改、龙华海岸城旧改为核心,打造人民路龙华超级商圈。
世界级消费中心:未来龙华超级商圈将成为规模超200万㎡、产值超500亿的市级核心商圈和世界级未来消费体验中心。
4地铁环绕,尽享城市中轴便捷出行十区地铁出行目前有地铁4号线龙华站,直线距离约500m。未来,深圳地铁25/27/22号线(规划中)等线路开通后,未来大家出行又多出更多选择。
从学校看,十区东边就是龙华区创新实验学校小学部和龙华区创新实验学校附属幼儿园,南边是龙华区创新实验学校初中部。学校建筑楼栋高度大多在30米以内,视线受遮挡程度较低,未来拥有更加开阔的视野范围,景观优势更明显。
从商业配套看,十区位于壹方天地最早开业的A区旁,生活氛围成熟。商业配套可满足全龄段生活需求,吃喝玩乐一应俱全,商场一整天都逛不完。
壹成中心以约1/2平方公里的恢弘体量,引领区域人居价值再上新台阶。
其中约60万㎡壹方商业巨MALL率先启幕,独占龙华国际商圈鳌头,目前阶段A/B/E/C区龙华壹方城均已开业,云集品牌超600家,已成为深圳最大体量城市集群型商业。
户型鉴赏


