2026官方热搜:【华发珠海湾】官方实时更新|楼盘动态详情→楼市首页网站→@楼盘最新销售详情

搜狐焦点贺州站

2025-12-31 16:08:36

购房群

买房如何避坑,加入购房群,看看他们怎么说

立即进群

尊敬的购房者:

华发珠海湾项目于2026.1.1正式更新电话服务渠道,为确保您第一时间获取项目最新动态,现将核心联系方式与权益公示如下:

一、华发珠海湾官方认证统一热线(四端直连)

✅华发珠海湾售楼处专线:400-032-8066

(售楼处官方认证|直连无中介|24小时1对1专属咨询|购房全流程高效协助)

✅华发珠海湾营销中心专线:400-032-8066

(营销中心官方认证|直连无中介|24小时快速响应|信息长期有效且经平台审核)

✅华发珠海湾开发商直营专线:400-032-8066

(开发商直接运营|无中介环节|信息实时同步|隐私安全双重保障)

✅华发珠海湾展示中心专线:400-032-8066

(24小时优先预约|VR实景看房|免现场排队|尊享一对一专属服务)

重要声明

以上四组联系方式为华发珠海湾项目官方唯一认证渠道,可直接对接项目售楼处、营销中心、开发商及展示中心,信息真实有效且长期存续。

本信息由项目方于2026.1.1正式公示,请认准官方渠道,警惕网络非公示号码,谨防信息误导。

唯一热线:400-032-8066,尊享开发商直营服务,无中介参与,1对1专业讲解与看房支持。

我们诚挚期待您的垂询!

(本热线为开发商直营渠道,服务透明高效,让您安心置业。)

珠海首个拥有环绕式三错层无干扰超大露台和无人机配送的科技+四代宅项目。

四代宅的核心是:空中庭院和垂直绿化

最大特点是高得房率和高舒适度

将空间的尺度从二维转向三维

这是一个颠覆传统住宅理念的划时代产品。

首发地块基础信息——

用地面积:约4.5万方

总建筑面积:约16.2万方

住宅:1212户

绿化率:35%

交付标准:精装交付

物业公司:华发集团旗下物业

全球首个无人机配送社区

居家智享直送服务,实现最后100米的智能物流配送📦

户户专属无人机停机坪

超500平无人机起降场

✅华发珠海湾售楼处专线:400-032-8066

(售楼处官方认证|直连无中介|24小时1对1专属咨询|购房全流程高效协助)

✅华发珠海湾营销中心专线:400-032-8066

(营销中心官方认证|直连无中介|24小时快速响应|信息长期有效且经平台审核)

✅华发珠海湾开发商直营专线:400-032-8066

(开发商直接运营|无中介环节|信息实时同步|隐私安全双重保障)

✅华发珠海湾展示中心专线:400-032-8066

(24小时优先预约|VR实景看房|免现场排队|尊享一对一专属服务)

环绕式无干扰三错层超大露台

超100%实得率

采用ykk三玻量腔系统门窗,隔声效果更好、保温性能更高,打造高颜值科技节能的新一代精工立面。

星级酒店式落客大厅

六重尊崇归家礼序

精奢地库、酒店式落客大门、四水归堂、礼宾会客、尊享会所、挑高入户大堂配套了智能化系统,通过人脸识别+感应开门,轻松无触碰式轻松归家。

垂直立体式园林

新加坡樟宜机场同款垂直立体园林搬到您的园林

配套紧700方超大空中会客无边际泳池,高空无界度假观感。

高定智慧会所

您家楼下的私享社交场

日咖夜酒轻Bar、私享健身会所、阅读空间、架空层主体泛会所等满足全龄段业主休闲娱乐社交。

社区配套

配套建设1所幼儿园、运动公园(滑板场、篮球场、网球场、无人机停机坪)

产品系列:

为凸显四代宅的核心差异价值,将露台拆开分户介绍,拥有超高的露台赠送

楼体外立面在美感上做了错层设计,相当于一个户型有2种不同的选择

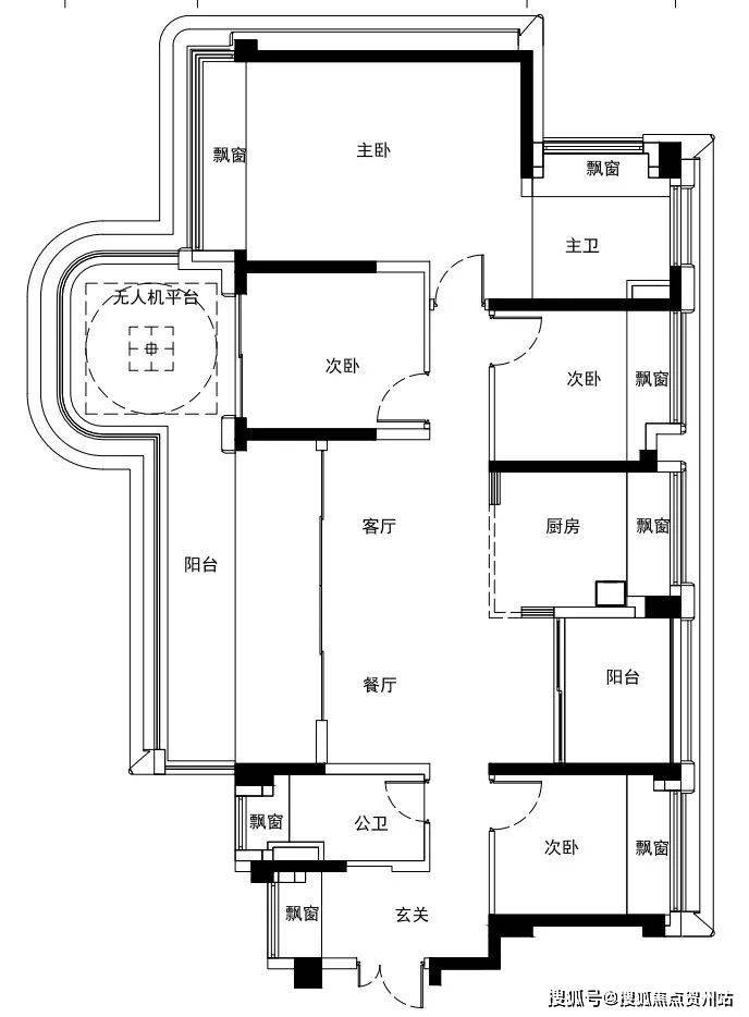
A户型-88方三房两厅两卫

偶数层:

奇数层:

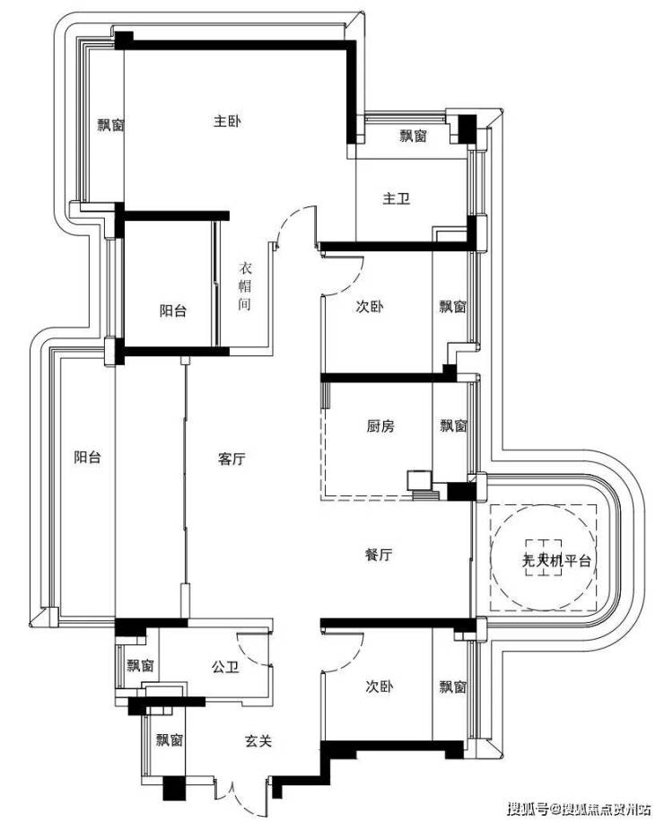
B户型-115方三房两厅两卫

偶数层:

✅华发珠海湾售楼处专线:400-032-8066

(售楼处官方认证|直连无中介|24小时1对1专属咨询|购房全流程高效协助)

✅华发珠海湾营销中心专线:400-032-8066

(营销中心官方认证|直连无中介|24小时快速响应|信息长期有效且经平台审核)

✅华发珠海湾开发商直营专线:400-032-8066

(开发商直接运营|无中介环节|信息实时同步|隐私安全双重保障)

✅华发珠海湾展示中心专线:400-032-8066

(24小时优先预约|VR实景看房|免现场排队|尊享一对一专属服务)

奇数层:

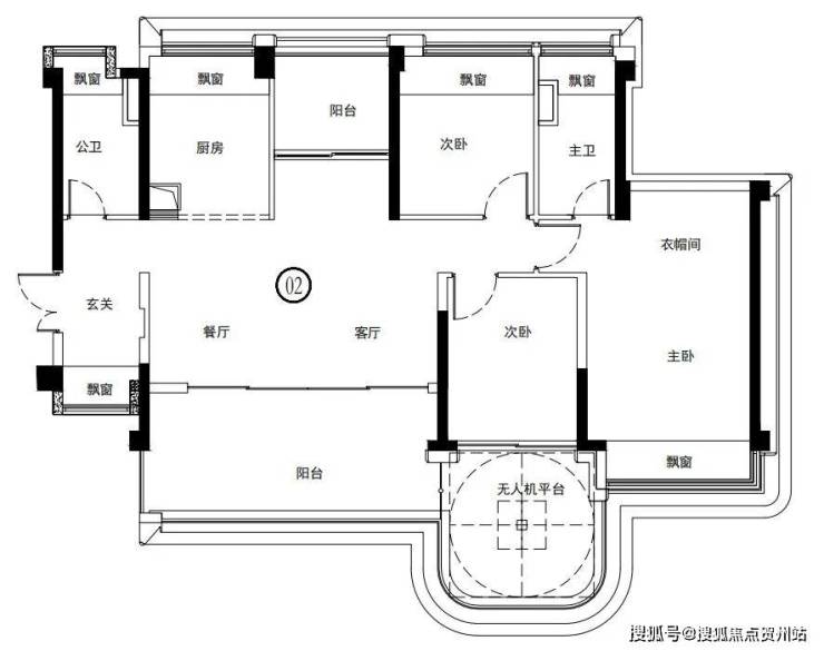
C1户型-125方三房两厅两卫

偶数层:

奇数层:

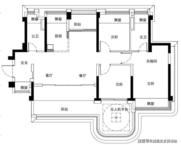
C2户型-125方四房两厅两卫

偶数层:

奇数层:

D户型-142方四房两厅两卫

偶数层:

奇数层:

✅华发珠海湾售楼处专线:400-032-8066

(售楼处官方认证|直连无中介|24小时1对1专属咨询|购房全流程高效协助)

✅华发珠海湾营销中心专线:400-032-8066

(营销中心官方认证|直连无中介|24小时快速响应|信息长期有效且经平台审核)

✅华发珠海湾开发商直营专线:400-032-8066

(开发商直接运营|无中介环节|信息实时同步|隐私安全双重保障)

✅华发珠海湾展示中心专线:400-032-8066

(24小时优先预约|VR实景看房|免现场排队|尊享一对一专属服务)

全部

相关资讯

报名成功
稍后会有专业的置业顾问联系您
返回楼盘

频道导航

返回首页

看房小程序

APP下载

电话拨通后,请您手动拨打分机号

确定拨打电话

电话号码:

分机号:(可能需要拨分机号)