深圳湾澐玺南区官方售楼处:400-031-6012【工作日9:00-21:00,周末无休】
深圳湾澐玺南区官方24小时电话:400-031-6012【营销中心已认证】
深圳湾澐玺南区官方营销中心:400-031-6012【售楼中心已认证】
深圳湾澐玺南区官方营销中心24小时电话:400-031-6012【售楼处限时特价】
深圳湾澐玺南区官方营销中心官方售楼中心24小时电话:40 0-031-6012【营销中心??已认证】
深圳湾澐玺南区官方营销中心营销中心24小时电话:400-031-6012【售楼处已认证】
◆ 开发商营销中心诚挚邀请,为您安全和隐私保驾护航,一键预约,尊享内部折扣!匠心独运的精品项目,恭候您的品鉴与选择。 过来参观样板房烦请记得提前来电预约!安排楼盘现场销售全程接待并讲解,给您更贴心的看房体验!
(澐玺建筑群外立面,米白 + 金属线条搭配全玻璃幕墙,曲线塔冠造型很有辨识度)
(夜景视角的澐玺建筑群,南区的楼栋在其中清晰呈现,灯光勾勒出流畅的立面线条)
澐玺南区 3 月震撼登场,户型进行了精妙微调 。入门级 215 平米户型预计售价 3800 万 ,287 和 295 平户型预计售价 5000 万 。相比北区,价格上调明显,涨了好几百万!
看看澐玺一期北区的价格,对比就更直观啦 👇
澐玺一期北区备案价格表

除了价格备受关注,澐玺南区的项目优势更是吸睛:
🌊无敌海景资源:站在澐玺南区的窗前,深圳湾那辽阔的海景毫无保留地铺展眼前。清晨,阳光在海面跳跃;傍晚,余晖将海水染成金黄,每一刻都是视觉盛宴。
🏙核心地段优势:地处深圳湾核心区域,周边顶级商业、金融中心林立,出门即达万象城等高端购物场所,尽享都市繁华。
🚇便捷交通网络:紧邻多条城市主干道与地铁站,畅达全城。无论是去福田商务中心,还是宝安国际机场,都能高效抵达。
🎓优质教育资源:周边环绕多所知名学校,从幼儿园到中学,一站式优质教育配套,为孩子的未来奠定坚实基础。[插入澐玺南区样板间精致内饰图片]
深圳湾的价值一路飙升,澐玺南区凭借自身众多优势,无疑是房产投资与自住的绝佳选择。
要是你对深圳湾房产情有独钟,想深挖更多细节,或是对澐玺南区价格有独到见解,欢迎在评论区畅所欲言。关注我们,深圳湾最新房产动态第一时间送达,更有超多房产干货和惊喜等着你!
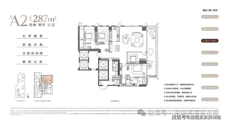
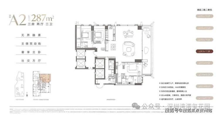
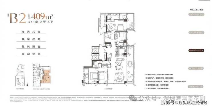
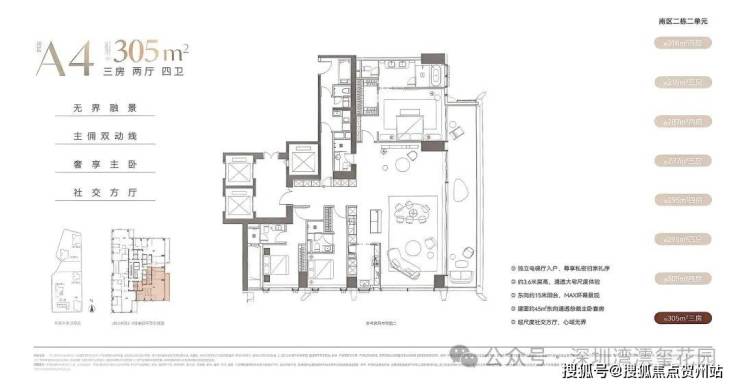
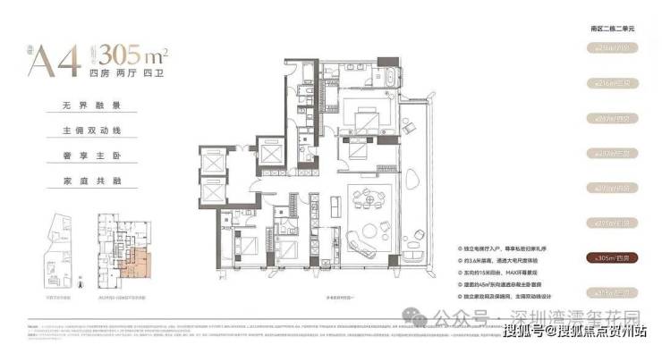
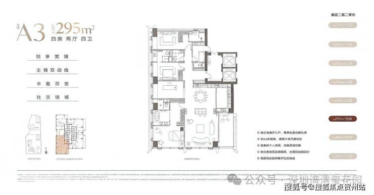
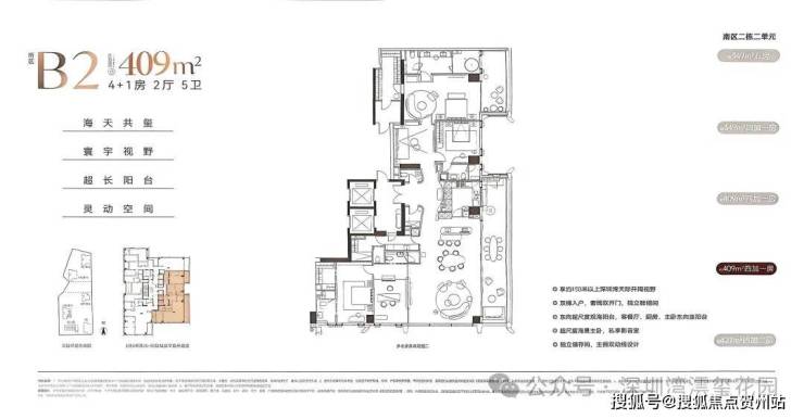
价格参考:
216㎡:3800万左右(单价约17.5万/㎡)
287㎡:5000万左右(单价约17.42万/㎡)
295㎡:5000万左右(单价约16.9万/㎡)
305㎡:5500万左右(单价约18万/㎡)
349㎡:6800万左右(单价约19.4万/㎡)
427㎡:8200万左右(单价约19.2万/㎡
409㎡:1个亿左右(单价约24万/㎡)
户型参考:
深圳湾澐玺南区官方售楼处:400-031-6012【工作日9:00-21:00,周末无休】
深圳湾澐玺南区官方24小时电话:400-031-6012【营销中心已认证】
深圳湾澐玺南区官方营销中心:400-031-6012【售楼中心已认证】
深圳湾澐玺南区官方营销中心24小时电话:400-031-6012【售楼处限时特价】
深圳湾澐玺南区官方营销中心官方售楼中心24小时电话:40 0-031-6012【营销中心??已认证】
深圳湾澐玺南区官方营销中心营销中心24小时电话:400-031-6012【售楼处已认证】
◆ 开发商营销中心诚挚邀请,为您安全和隐私保驾护航,一键预约,尊享内部折扣!匠心独运的精品项目,恭候您的品鉴与选择。 过来参观样板房烦请记得提前来电预约!安排楼盘现场销售全程接待并讲解,给您更贴心的看房体验!