深圳中洲迎玺三期售楼处电话_「中洲迎玺三期」售楼中心欢迎您_24小时电话详情

搜狐焦点贺州站

2025-05-29 10:53:38

购房群

买房如何避坑,加入购房群,看看他们怎么说

立即进群

深圳——中洲迎玺三期【2025最新楼盘详情】

官方详情咨询/预约看房热线:400-102-8162【已认证】(营销中心)

深圳【中洲迎玺三期】售楼中心电话:400-102-8162【售楼处24小时电话】【已认证】

▼▼Vip贵宾置业====欢迎来电预约尊享内部折扣====匠心钜制恭迎品鉴!

中洲迎玺三期开发商售楼处售楼处电话:400-102-8162(营销中心)【VIP贵宾专线】

中洲迎玺三期楼盘最新介绍:备案价、折扣、学区、地铁、交通、户型图、特价房、优缺点、得房率、优惠活动、小区图片、开盘时间、交房时间、周边配套、最新详情等咨询。

中洲迎玺折后价格:

96平折后价格:628-652万

115平折后价格:780-803万

143平折后价格:963-1023万

149平折后价格:755-981万

173平折后价格:1133-1163万

211-225平三套顶复折后价格:1492-1795万

——项目概况——

【占地面积】约3.7万㎡

【建筑面积】约21.9万㎡

【容积率】约4.24

【梯户比】3T3/3T4 (此次推售5栋一/二/三单元)

【车位】约1405个

【楼栋及户数】8个单元住宅楼+1栋幼儿园,规划约1272户(此次5栋一/二/三单元推出约491套)

【产品面积】约94-173㎡3-5房(可售)

【交付时间】2027年

【地铁】4/5/6/22(建设中)/27(建设中)/深惠城轨(规划中)

【幼儿园】小区配建18班幼儿园

【学校】深圳外国语学校龙华校区(初中大学区,具体以当年教育局公布为准);格致中学民治校区(已于2024年4月正式动工)

中洲迎玺三期作为北站超核唯一纯居新盘,一直备受市场瞩目,2024年不仅是龙华的三冠王(销售面积/套数/金额),更在全年销售面积方面,排名进入全市TOP3,并在2025年1-3月,再获龙华三冠王。

买房首选地段,是很多购房者的共识,中洲迎玺三期从一开始就备受关注,与所处的地段密不可分。

一、地处深圳7大总部基地之一

立于城市封面群

中洲迎玺三期所在的深圳北站片区,处深圳中轴地段。根据《深圳市国土空间总体规划(2021-2035年)》,深圳北站总部基地是深圳7大总部基地之一,计划投入2000亿巨资,以高标准缔造深圳中芯,形成多元复合的国际会客厅,在北站总部基地升级后,将以城市超核为中心,打造全新体验的城市新封面,成就湾区未来枢纽超级地标。

二、毗邻北站枢纽中心,多维交通全面通达

中洲迎玺三期毗邻全国重要交通枢纽-深圳北站,有着全城仅有的“1超级枢纽+5地铁+8快速路”多维交通路网,高效连接深圳全城,快速通达全市各核心片区。

1超级枢纽——深圳北站:深圳北站是深圳规模最大、设备技术最先进的客运枢纽,可快速抵达湾区各大核心城区,一地两检,通达香港及全国。

5条地铁——联通全城:地铁4/5/6号线交汇于深圳北站,地铁22号线/27号线正在建设中,此外还有规划的深惠城轨,未来将是深圳地铁线路最密的片区之一。

8条快速路——四横四纵公路网:福龙路、南坪快速、北环大道等“四横四纵”深圳主干道环绕周边,驾车轻松即达深圳的各核心片区。

三、【学校配套】小区配建18班幼儿园,深圳外国语学校龙华校区(初中大学区,具体以当年教育局公布为准);格致中学民治校区(已于2024年4月正式动工)

四、【商业配套】超百万醇熟商圈环绕,都市生活触手可及

项目周边汇聚了龙华首家华润万象商业(建设中)、红山6979、华南首家Costco旗舰店等品质商业,近100万㎡ 的商圈环伺,国际一线品牌荟萃,演绎未来潮流新主场。

五、【文体配套】五馆一体文体配套,尽享活力多彩生活

深圳展览馆、深圳市文化新馆 (建设中)、深圳演艺馆、深圳市图书馆北馆,深圳市美术馆新馆、简上体育综合体汇聚在项目周边,享受活力多彩的品质生活。

六、【医疗配套】智享全维优质医疗

拥有全市体量最大的三甲医院——深圳新华医院(24年12月6日正式启用),华南地区规模最大的儿童医院——深圳市第二儿童医院(24年10月31日正式启用),享受未来全龄段优质医疗服务。

七、【公园配套】八大生态公园相伴,邂逅自然光景

项目周边正在建设超核“未来之眸”——绿芯公园,绿芯公园总用地面积约11.33万㎡,它不仅仅是一个公园,还是这座城市客厅的文化载体,规划有数字探索馆、艺术巡展创意区、国际演绎交互区、时尚活动运动区、青少年科创体验区等创新型场所。

另有民治体育公园、白石龙音乐主题公园、深圳北站中心公园、南园公园、逸秀公园、玉龙公园、德逸公园等7个生态公园环绕在周边,居住都市核心,与自然相伴。

三期收官 超核王炸——巅峰迎玺超作

一、【奢阔楼间宽距】近160米超宽楼间距,最大化楼间距保证了视野的开阔度和充分的通风采光,高私密性,高舒适性。

二、约4.24容积率,极具片区竞争力

中洲迎玺三期约4.24的容积率,是目前区域内容积率相对很低的新盘,低容积率保证了业主视野的开阔度和充分的通风采光,片区稀缺2梯4户/2梯5户/3梯4户/3梯3户,让居住有了更高的私密性与舒适性。

三、约1.3万㎡超大园林,享城市微度假生活

作为片区内最大的社区园林,中洲迎玺三期配有精制“四大隐奢空间”、“三大能量场域”,再搭配森系儿童乐园、四季隐形轻氧跑道等,以顶奢酒店园林设计为理念,为当代年轻人打造出城市微度假生活。

中洲迎玺三期设计了极具昭示性和仪式感的府邸级归家入口,营造出静谧庄重的氛围,项目用品质材料和名师设计为业主打造出整体尊贵感与奢华感。

四、新规全周期户型,满足刚需及改善需求

中洲迎玺三期此次推出的是建面约96-173㎡3-5房户型,多样化的产品既能够满足年轻群体首套房的置业需求,又为追求更高生活品质的换房群体提供更好选择。

作为北站超核中心目前唯一新规户型新盘,此次加推的楼王单位大户型有着阔绰尺度3T3梯户比,满足全周期家庭户型需求,未来生活一步到位。

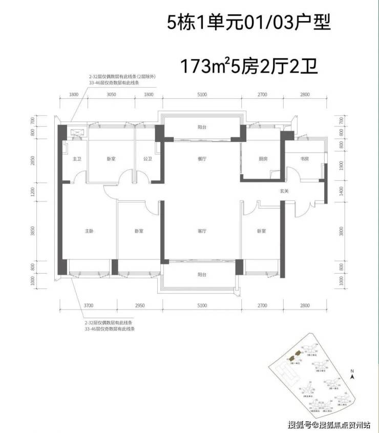
<三期5栋平面图鉴赏>

【五栋一单元-平面图】3梯3户,3条腿,分别是01、03号房户型约173㎡的5房2厅2卫、02号房户型约149㎡的5房2厅2卫

约173㎡的户型做到了南北对流,户型尺度宽敞

约149㎡的户型做到了双龙抱珠,聚气藏风使用

【五栋二单元-平面图】3梯4户,4条腿,01号房户型约144㎡的5房2厅2卫,02、03号房户型约96㎡的3房2厅2卫,04号房户型约115㎡的4房2厅2卫。

约96㎡的户型标准竖厅格局,最低上车门槛

约115㎡的户型阔绰阳台直连次卧,明亮实用

约144㎡的户型双龙抱珠,聚气藏风使用

【五栋三单元-平面图】3梯4户,4条腿,跟二单元的户型产品一模一样,01号房户型约144㎡的5房2厅2卫,02、03号房户型约96㎡的3房2厅2卫,04号房户型约115㎡的4房2厅2卫。

——— 【中洲迎玺三期】————

售楼中心热线: 400-102-8162(售楼处)【VIP贵宾专线】

本文内容为广告推广,涉及房价或现有房源可能出现变更,请致电详询并以售楼部为准。

为了您更好的看房体验,可致电预约!(置业顾问一对一对接、项目定位预留停车位)

免责:本文部分内容来自网络,如有侵权,请联系删除。

全部

相关资讯

报名成功
稍后会有专业的置业顾问联系您
返回楼盘

频道导航

返回首页

看房小程序

APP下载

电话拨通后,请您手动拨打分机号

确定拨打电话

电话号码:

分机号:(可能需要拨分机号)