港珠澳未来城首页网站最新介绍:房价、折扣、户型图、特价房源、得房率、优惠活动、开盘时间、交房时间、周边配套、最新详情等咨询。
港珠澳未来城售楼处电话☎:400 065 2898【开发商已认证】✨✨
港珠澳未来城售楼中心24小时电话☎:400 065 2898【开发商已认证】✨✨
温馨提示:过来看房请记得提前来电预约,尊享售楼处1v1销售专业讲解,感谢您的来电!
��本项目暂不接受临时到访,过来参观样板房请记得提前来电预约!✨✨
��为您安排楼盘现场销售全程接待并讲解,给您更贴心的看房体验!✨✨
【项目详情】
项目一期占地面积:约4.26万㎡
项目一期建筑面积: 约28.17万㎡
绿化率:32.54%
容积率:5.52
一期产品总栋数:7栋
在售产品:约40-216㎡口岸烫金资产
装修标准:带装修
层高:大户型3.6米,小户型3.3米
项目位置: 中国·港珠澳大桥·珠澳口岸岛

【项目总平图】
【一期户型落位图】
户型分布
F户型 :建面约40㎡
F1户型:建面约41㎡
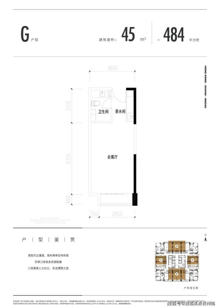
G户型:建面约45㎡
H户型:建面约78㎡
E户型:建面约109㎡
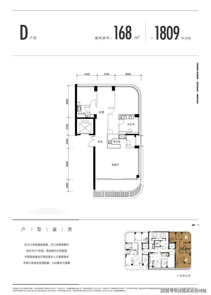
D户型:建面约168㎡
C户型:建面约216㎡
✨✨港珠澳未来城营销中心电话☎:400 065 2898【开发商已认证】✨✨
✨✨港珠澳未来城开发商电话☎:400 065 2898【开发商已认证】✨✨
免责声明:部分信息来源于网络,如果侵权,请联系及时删除
本宣传资料不构成邀约邀请,对周边、政府规划、商业配套、教育资源、投资前景等数据和图文仅为提供相关信息,该信息以政府最终批文为准,开发商不对此作任何承诺。买卖双方的权利义务以双方签订的买卖合同约定及附件、实际交付为准,本公司保留对宣传资料修改的权利,敬请留意最新资料。联系号码☎:400 065 2898【开发商已认证】