桑泰缙樾府售楼部中心→桑泰缙樾府售楼中心电话→桑泰缙樾府楼盘百科详情→首页网站→售楼处电话→营销中心电话→24小时热线电话→售楼处@定位 2025.6

搜狐焦点贺州站

2025-06-07 14:50:27

购房群

买房如何避坑,加入购房群,看看他们怎么说

立即进群

🌈桑泰缙樾府🌈

🌈桑泰缙樾府售楼处电话:400-033-1856【已认证】🌈

🌈Vip贵宾置业===欢迎来电预约尊享内部折扣===匠心钜制恭迎品鉴🌈

【桑泰缙樾府】丨楼盘详情丨价格丨更多优惠丨欢迎致电丨诚邀品鉴

✅桑泰缙樾府售楼处:400-033-1856【24小时预约热线】

✅桑泰缙樾府售楼处电话:400-033-1856【来电可享受优惠】

✅桑泰缙樾府营销中心电话400-033-1856【一对一热情服务】

✅本项目暂不接受临时到访,过来参观样板房请记得提前来电预约!

◆开发商营销中心诚挚邀请,一键预约,尊享内部独家折扣!匠心独运的精品项目,恭候您的品鉴与选择。

温馨提示:看房请提前来电预约,谢谢您的配合!(中介勿扰)

2024年12月6日,位于南山南头的桑泰缙樾府正式取证入市,推出1栋和2栋共147套高品质房源。户型包括114-118㎡的4房2厅2卫和133㎡的5房2厅2卫,备案均价7.29万/㎡,总价792-1003万/套。

项目预计2026年6月30日前带精装交付。开盘推出9.31折优惠,折后均价降至6.79万/㎡,总价区间737-943万/套。户户南北通透,低容积率,豪宅配置,桑泰缙樾府成为市场焦点。

桑泰缙樾府地处南山南头街道核心区域,教育资源与产业基地环绕。

项目概述:

桑泰缙樾府,由桑泰集团精心打造,位于深圳市南山区南头街道中山园路与铁二路交汇处。项目东侧毗邻同乐实验学校,西侧接壤同乐物联网产业综合基地,南侧则是新近入市的安居房同乐馨苑。地理位置优越,处于宝安与南山交界,周边配套设施齐全。

户型介绍

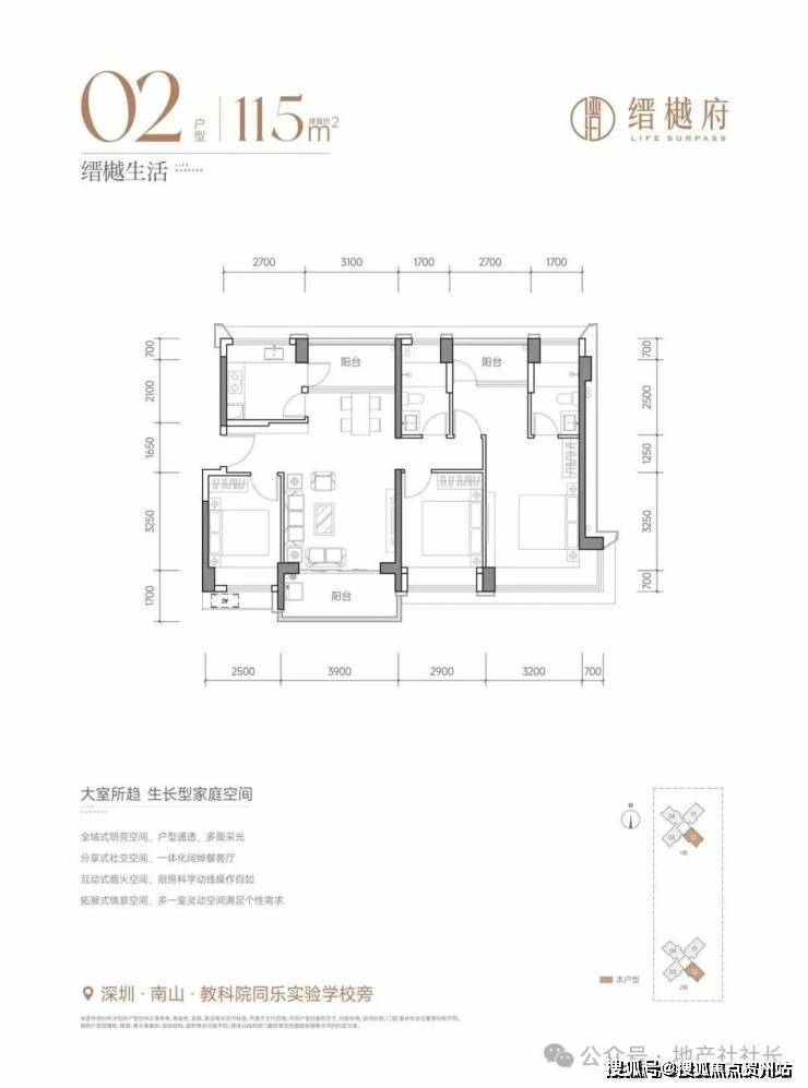
"桑泰缙樾府推出多款户型,均采用竖厅南北通透设计,主卧大套间,L型厨房,卫生间干湿分离,得房率75.64%"

详细户型介绍:

114㎡户型:4房2厅2卫,竖厅设计,3.9米宽客厅,主卧17.48㎡,次卧11.14㎡、10㎡、8.64㎡,L型厨房,干湿分离卫生间,西北向阳台。

115㎡户型:4房2厅2卫,竖厅设计,3.9米宽客厅,主卧17.48㎡,次卧11.14㎡、9.87㎡、8.64㎡,L型厨房,干湿分离卫生间,西南向阳台。

118㎡户型:4房2厅2卫,竖厅设计,3.9米宽客厅,主卧16.64㎡,次卧11.14㎡、9.87㎡、8.64㎡,L型厨房,干湿分离卫生间,东南向阳台。

133㎡户型:5房2厅2卫,竖厅设计,4.3米宽客厅,主卧17.75㎡,次卧11.6㎡、10.4㎡、8.99㎡、7.75㎡,L型厨房,干湿分离卫生间,东南向阳台。所有户型均不含赠送面积。

项目详细信息——桑泰缙樾府:

开发商:深圳市塘泰投资发展有限公司(桑泰集团)

物业公司:深圳市厚德物业服务有限公司

物业管理费:6.68元/㎡·月

占地面积:约0.9万㎡

建筑面积:约4.77万㎡

容积率:3.62

绿化率:30%

产权年限:2020年4月3日 - 2090年4月2日(70年)

总户数:220户

楼栋及层数:2栋,分别为30层和31层

梯户比:3梯4户

车位数:300个

车位配比:1:1.36

交楼时间:2026年6月30日

交楼标准:精装修

教育配套:

依据2024年南山区教育局公布的最新学区划分,桑泰缙樾府对应的中小学校区为南山区教育科学研究院同乐实验学校。该校成立于2004年,是一所集小学与初中于一体的公办九年一贯制学校,目前设有48个班级。

交通设施:

项目位于12号地铁线“同乐南站”南侧,距离站点大约1.3公里,步行大约需时20分钟。该地铁线路便捷连接宝安中心区、南山高新技术园区、深圳超级总部基地以及前海自贸区。此外,项目周边环绕南坪快速、南山大道、北环大道、京港澳高速等主要交通干道,确保出行便利。

商业环境:

项目附近已有成熟的社区商业,满足居民日常购物需求。在2.3公里范围内,有海雅缤纷城购物中心;约6公里处有前海壹方城;而深圳万象天地大型商业综合体则位于大约7公里远的地方。

🔘桑泰缙樾府售楼处电话☎:400-033-1856【售楼处已认证】

🚦在售户型图丨项目介绍丨最新房源丨周边配套丨详细解答〢

🔘桑泰缙樾府营销中心电话:400-033-1856【售楼处已认证】

⭐◆开发商营销中心诚挚邀请,一键预约,尊享内部折扣!匠心独运的精品项目,恭候您的品鉴与选择。

⭐项目最新介绍:备案价、折扣、学区、地铁、交通、户型图、特价房、优缺点、得房率、优惠活动、小区图片、开盘时间、交房时间、周边配套、售楼处位置、最新详情等咨询。

免责声明:

1、本文、图片等信息部分来源于网络,如有相关内容侵权,烦请联系删除。

2、本文所提及一切图文资料以政府最后审批之法律文件及买卖双方签订的买卖合同为准。

3、我们重在分享,本文所述内容和意见仅供参考,不构成市场交易依据和投资建议。

全部

相关资讯

报名成功
稍后会有专业的置业顾问联系您
返回楼盘

频道导航

返回首页

看房小程序

APP下载

电话拨通后,请您手动拨打分机号

确定拨打电话

电话号码:

分机号:(可能需要拨分机号)