京基·御景峯(营销中心)2025首页网站-京基·御景峯欢迎您@京基·御景峯最新楼盘详情-售楼中心-在售户型-备案价@24小时(服务热线)

搜狐焦点贺州站

2025-06-01 17:04:11

购房群

买房如何避坑,加入购房群,看看他们怎么说

立即进群

✨✨✨✨欢迎进入【京基·御景峯】首页网站✨✨✨✨

✅《京基·御景峯》售楼处电话:☎400-112-1828【售楼处已认证☎】

✅ 过来参观样板房请记得提前来电预约!✨✨

✅《京基·御景峯》开发商电话:☎400-112-1828【售楼处已认证☎】

✅为您安排楼盘现场销售全程接待并讲解,给您更贴心的看房体验!

☞☞Vip贵宾置业==欢迎来电预约尊享内部折扣===匠心钜制恭迎品鉴☜☜

✅ 售楼部热线, 项目介绍,包括楼盘简介、售楼处电话、营销中心位置、房价、价格、折扣学校、地铁、交通、户型图、备案价、特价房、优缺点、得房率、优惠活动、小区环境、开盘时间`交房时间、售价、容积率 ,单价

优越地理位置

西丽区位于深圳市的科创高地,汇聚众多总部基地,是深圳六大总部基地之一。南山大学城、留仙洞总部基地和深圳北站总部基地均位于此区域,形成了深圳“中国硅谷”的三大核心引擎。未来西丽将成为深圳科技创新和人文发展的双高地。

西丽湖国际科教城

西丽湖国际科教城占地69.8平方公里,聚集了包括清华大学、北京大学在内的18所顶尖高校,拥有2家省级实验室。该区域共有78位两院院士,其中28位为全职院士,还有223位“千人专家”、1.4万名科研人员和4.54万名在校生。这里产学研深度融合,成为城市智慧高地。

项目基本信息

开发商:京基地产

地址:位于南山区西丽留仙大道与长源二街交汇处

占地面积:64,000㎡

总建筑面积:640,000㎡

产权期限:70年(17-87年)

总套数:584套

户型面积:68-228㎡,涵盖2至4房

车位数量:3,247个

梯户比:5梯6户/6梯4户

留仙洞总部基地是深圳的六大总部基地之一,汇聚了众多全球知名企业的总部。目前,大疆创新、航天科工、传音和万科等代表性企业已入驻该基地。预计未来将形成超过3000亿元的产业集群,并吸引至少60万高技术和高消费的财智人群。

深圳北站总部基地享有2000亿政策红利,规划商业服务业规模约550万平方米,计划引进20至30家大型总部企业和上市公司,目标是打造成为具有全球影响力的国际会客厅。目前美团科技、深圳高铁总部、深圳通以及深圳计算科学研究院等巨头已进驻。

交通配套

轨道交通方面,项目距离现有5号线地铁口长岭陂站约100米左右,算的上是真正的地铁口物业;

商业配套

项目自身规划有建面3.8万平商业,可满足日常生活所需。距离项目约2公里范围内有宝能城和塘朗城的商业;

教育配套

项目旁边规划有九年制公立学校;项目附近还有玉龙学校距离约1.8公里;深圳外国语学校龙华学校约2公里;另外南方科技大学;距离项目约1.3公里,深圳大学约1.3公里等。

交通配套

轨道交通方面,项目距离现有5号线地铁口长岭陂站约100米左右,算的上是真正的地铁口物业;

商业配套

项目自身规划有建面3.8万平商业,可满足日常生活所需。距离项目约2公里范围内有宝能城和塘朗城的商业;

教育配套

项目旁边规划有九年制公立学校;项目附近还有玉龙学校距离约1.8公里;深圳外国语学校龙华学校约2公里;另外南方科技大学;距离项目约1.3公里,深圳大学约1.3公里等。

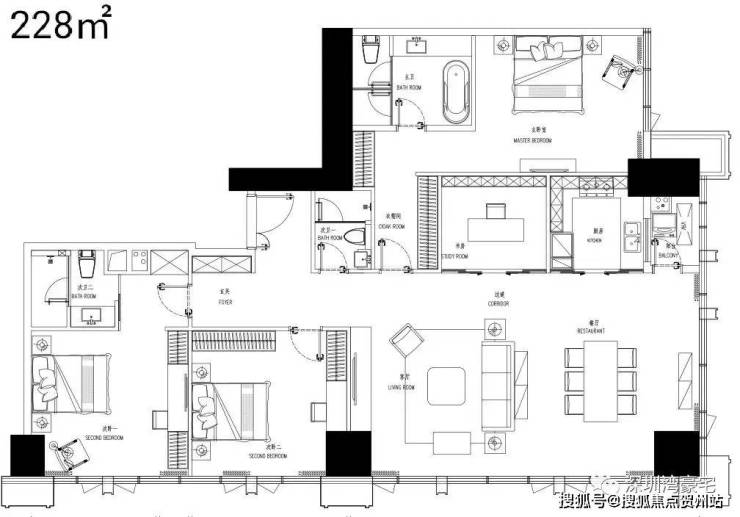
户型图:御景峯大厦 157-228㎡

商铺户型图

产品面积:约157-228㎡

总楼层:1座47层,2座41层(在售楼层为6-23F)

单层高:3.7m

梯户比:6梯6户

✅《京基·御景峯》售楼处电话:☎400-112-1828【售楼处已认证☎】

✅温馨提示:看房请提前来电预约,谢谢配合!✨✨

✅《京基·御景峯》开发商电话:☎400-112-1828【售楼处已认证☎】

☞☞Vip贵宾置业==欢迎来电预约尊享内部折扣===匠心钜制恭迎品鉴☜☜

✅楼盘最新介绍:备案价、折扣、学区、地铁、交通、户型图、特价房、优缺点、得房率、优惠活动、小区图片、开盘时间、交房时间、周边配套、最新详情等咨询

✅免责:本文部分内容来自网络,如有侵权,请联系删除!!!

全部

相关资讯

报名成功
稍后会有专业的置业顾问联系您
返回楼盘

频道导航

返回首页

看房小程序

APP下载

电话拨通后,请您手动拨打分机号

确定拨打电话

电话号码:

分机号:(可能需要拨分机号)