户型:主推105-140㎡3-4房,实用率超90%
交付时间:预计2027年精装交付
配套:双地铁(9号线/15号线深大南站)、南二外学府学校、商业街区等
如需最新价格或具体看房安排,建议直接拨打400 065 2898电话咨询

翰熙典居丨逾50万㎡地标级奢居综合体
集住宅、商业、办公、酒店等业态于一体。项目自带约1.9万㎡精奢时尚酒店、约5.7万㎡未来潮流街区(以后期实际运营为准)、约1.26万㎡公共配套,多维配套迭新粤海人居想象。
质匠高定丨集聚一流大师 匠造雅质奢宅
翰熙典居联袂华汇设计、迈丘设计、CCD(香港郑中设计事务所)等国际国内大师,匠制三重归家礼序,打造美学园林及品质公区,成就卓尔不凡的超感生活。
流线之幕 | 幕墙集成系统
静雅奢华风格延续奢宅风貌,历久弥新的品质凝练
盛世翰韵 | 新东方都市风格园林
度假式无边际泳池,樱花大道、无界人文街区
逐光之旅 | 大师高定艺术公区
以超脱酒店的艺术手法,构筑雅静空间,大堂墙面高端用材,精心雕琢尊崇归家仪式感
奢阔空间丨中心极境 礼献粤海
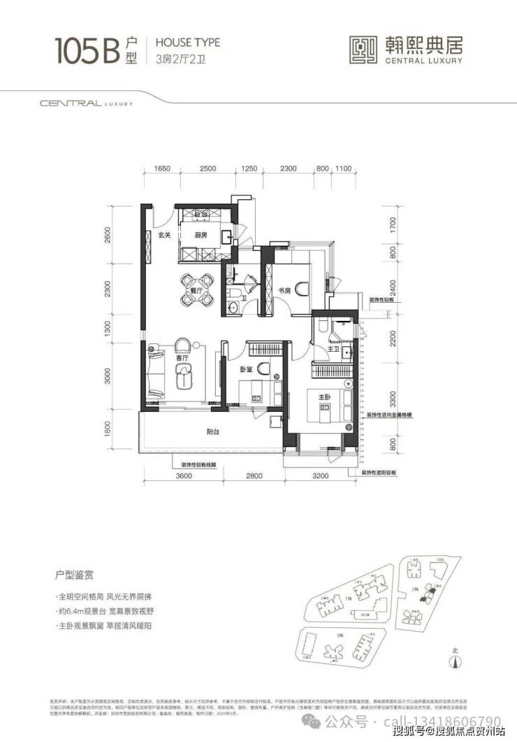
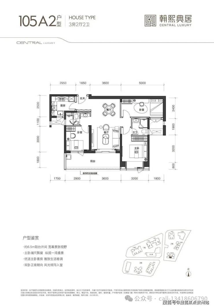
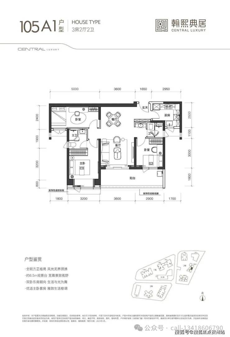
翰熙典居,粤海十年之后再上新,全新奢居综合体礼献峯层。可售主力户型新规后建面约105-140㎡奢雅空间,全明方正户型将空间奢阔感与生活舒适度完美契合。明星户型超6米阳台开间,全维度巨幕景观视野,尽揽湾心万千风景。
(免责说明:本项目户型使用率为基于包括阳台和飘窗在内的总面积计算得出。所提供的使用率仅供参考,实际使用面积可能会因测量方法、建筑规范等因素而有所不同。最终解释权归开发商所有。)
枫叶集团丨深耕核心区 专注城市更新与运营
枫叶集团,聚焦地产开发、资产运营、物业服务三大核心业务。秉承“以心筑新,至臻至善”发展理念,以深圳南山、宝安等核心区为原点,致力于深圳核心的城市更新与运营。已开发地产物业逾百万方,待开发土地储备逾百万方。
翰熙典居,逾50万㎡地标级奢居综合体,2025年深圳市重大建设项目之一。项目三个地块一次性整体开发,彰显枫叶集团雄厚实力,及打造中心人文奢宅、城市地标之作的恢弘之志。
