☯☯中建鹏宸云筑☯☯
☯☯中建鹏宸云筑开发商电话:400-032-8066 【☎☎已认证】☯☯
☯☯中建鹏宸云筑售楼处电话:400-032-8066【☎☎已认证】☯☯
☯☯中建鹏宸云筑售楼中心电话:400-032-8066【☎☎已认证】☯☯
☯☯☞☞Vip贵宾置业==欢迎来电预约尊享内部折扣===匠心钜制恭迎品鉴☜☜☯☯

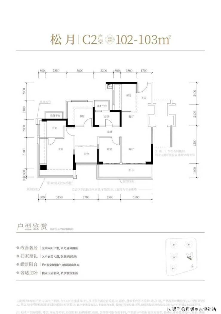
作为龙华首个按照建筑新规设计的住宅新盘,中建鹏宸云筑从出生以来一直都是流量密码,拥有市面上少有的岭南风园林,加上100%的得房率,以及湖景景观备受市场欢迎!项目主推户型 81-148m²
去年12月份中建鹏宸云筑首推3栋和5栋,1587人选368套,面积约81-91-105-124㎡3-4房。备案均价6.02万/㎡,单价5.5-6.8万/㎡,开盘88折,开盘3.5个小时全部售罄。
今年在的3月30日加推开盘,523人登记冻资选153套房,仅1个小时卖了145套,仅剩余8套,后面开盘再顺卖了几套,最终去化98%
今年4月1号楼开盘,556人选250套,由于涨价了2300一平米,本次去化没有前面几次好,最终开盘去化85%,后面顺卖了一波最终去化92%,不过81的还是一样抢手,一下没了,虽然对于市场来说他去化不达之前预期,但是对于开发商来讲他涨价了去化了92%已经是非常理想
今年5月2号楼再次拿证!相比1号楼也再次涨价!之前1号楼相比之前就涨价了很多也卖了92%,而本次涨价也同样多人买,461位选244套房,入围比例1:1.88,虽然涨价但是这次去化最终还是有220套,去化90%左右
根据公开信息,该地块为龙华A808-0025号地块,位于深圳龙华区民治街道,为二类居住用地+道路用地。占地面积46763.51㎡,建筑面积216570㎡,容积率5.0,建筑高度限高150米,层高32-47层,土地使用年限70年。
项目分为两期开发,从设计图可以看出,项目共分为东西两个地块建设,中间规划一条市政路,采用点阵式布局,10栋超高层塔楼围合组成,部分户型南向可看民治水库景观。
项目建面约31万方深圳城央美好生活领地,无公租房、无保障房、无人才房。采用围合式布局,以岭南建筑美学理念,打造岭南东方诗意园林。项目分32层高的2梯5户以及3梯6户,47层高是3梯6户,共10栋高层住宅组成2100户
项目分为东、西两个地块开发。
东区:占地约2.1万㎡,容积率5.28,包含住宅、商业、文化活动室、老年人日间照料中心和其他基础配套设施。1栋、2栋总高47F,3T6户;3栋、5栋总高32F,2T6户;6栋总高32F,2T5户;4栋属于商业,总高2层。
西区:占地2.2万㎡,容积率5.16,包含住宅、商业、幼儿园学校和其它基础配套设施。7栋栋总高47F,3T6户;8栋、9栋、10栋总高32F,2T5户;11栋总高46F,3T6户,2T5户;1栋是幼儿园。
西区首推户型: