锦绣时代广场(售楼处)首页网站-锦绣时代广场(营销中心)网站欢迎您-锦绣时代广场楼盘详情@锦绣时代广场售楼处

搜狐焦点贺州站

2025-06-11 14:12:00

购房群

买房如何避坑,加入购房群,看看他们怎么说

立即进群

锦绣时代广场首页网站最新介绍:房价、折扣、户型图、特价房源、得房率、优惠活动、开盘时间、交房时间、周边配套、最新详情等咨询。

深圳龙华——锦绣时代广场售楼处电话☎:400 065 2898✨✨

锦绣时代广场售楼中心24小时电话☎:400 065 2898【营销中心】

温馨提示:过来看房请记得提前来电预约,尊享售楼处1v1销售专业讲解,感谢您的来电!

🔥本项目暂不接受临时到访,过来参观样板房请记得提前来电预约!✨✨

🔥为您安排楼盘现场销售全程接待并讲解,给您更贴心的看房体验!✨✨

锦绣时代广场

地址:龙华区油松路与工业路交汇处

租赁面积:90-1980㎡

建筑类别:办公、商业、公寓、酒店综合体

写字楼总楼层:地上32层,地下3层

外立面:采用LOW-E中空玻璃幕墙,双层有效隔音

租金:65-80元/平米/月,物业管理费:12元/平米/月

装修状况:毛坯、简装、精装修

层高:首层9.4米挑空大堂,标准层:4.5m,商务形象彰显

电梯:5+1台日立品牌电梯,4m/s梯速,助力高效商务

车位数量:地下750个车位,停车无忧

空调及计费:美的中央空调计电费

商业配套:已引进万澳酒店及其他餐饮、娱乐、便利店等商业配套

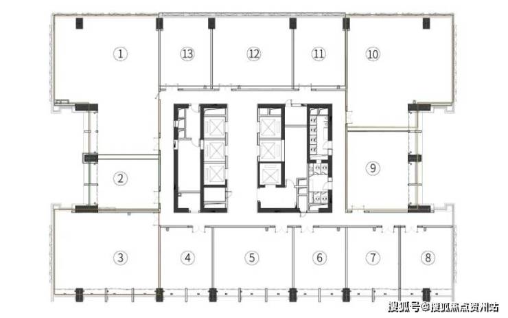
约90-1980㎡全能空间、灵活百变

面积段:90-104-138-162-230-304-350㎡

一站式服务 进驻无忧

道路交通:楼下工业路速达龙华中心区,油松路接布龙路速达全城各区,项目车行约19分钟快速接驳深圳北站、约25分钟直通福田,便捷交通速达全城

公共交通:楼下即为松和新村公交站,便捷接驳地铁,速达全域

地铁交通:毗邻地铁22号线、25号线油松站(在建中,距离项目约500米),27号线油福站(规划中,距离项目约1.1公里),距离5号线直线距离约2公里

商业配套:距离项目1公里左右约60万方壹方天地超大型商业集群+龙华首家山姆会员店、天虹商场、岁宝shirble plaza、绿景佐阾香颂购物中心、万众城、万盛百货等;2-4公里范围内有八号仓奥特莱斯、红山6979商业中心、九方天虹等

✨✨锦绣时代广场营销中心电话☎:400 065 2898✨✨

✨✨锦绣时代广场开发商电话☎:400 065 2898✨✨

免责声明:部分信息来源于网络,如果侵权,请联系及时删除

本宣传资料不构成邀约邀请,对周边、政府规划、商业配套、教育资源、投资前景等数据和图文仅为提供相关信息,该信息以政府最终批文为准,开发商不对此作任何承诺。买卖双方的权利义务以双方签订的买卖合同约定及附件、实际交付为准,本公司保留对宣传资料修改的权利,敬请留意最新资料。联系号码☎:400 065 2898✨✨

全部

相关资讯

报名成功
稍后会有专业的置业顾问联系您
返回楼盘

频道导航

返回首页

看房小程序

APP下载

电话拨通后,请您手动拨打分机号

确定拨打电话

电话号码:

分机号:(可能需要拨分机号)