鸿荣源尚云/2025售楼处电话-首页网站-深圳龙华鸿荣源尚云售楼处欢迎您|楼盘详情丨样板间/价格/户型|停车位-容积率-小区环境丨售楼处地址|营销中心电话

搜狐焦点贺州站

2025-06-11 10:56:31

购房群

买房如何避坑,加入购房群,看看他们怎么说

立即进群

鸿荣源尚云首页网站最新介绍:房价、折扣、户型图、特价房源、得房率、优惠活动、开盘时间、交房时间、周边配套、最新详情等咨询。

深圳龙华——鸿荣源尚云售楼处电话☎:400 065 2898✨✨

鸿荣源尚云售楼中心24小时电话☎:400 065 2898【营销中心】

温馨提示:过来看房请记得提前来电预约,尊享售楼处1v1销售专业讲解,感谢您的来电!

🔥本项目暂不接受临时到访,过来参观样板房请记得提前来电预约!✨✨

🔥为您安排楼盘现场销售全程接待并讲解,给您更贴心的看房体验!✨✨

项目基本信息

【占地】:约3万㎡

【建面】:约27万㎡

【产权年限】:70年(2022-2092)

【总栋楼】:共8栋

【总户数】:1278户

【本次推售】:612户

【面积】:约82-89㎡3房2卫

【总楼层】:54-57层

【均价】:约5.7万/㎡

【使用率】:85%

【梯户比】:3梯6户

【停车位】:1732个

【交房标准】:简装

【交房时间】:2025年12月前

【管理费】:5.9元

【物业管理】:鸿荣源物业

【开发商】:鸿荣源集团开发

「龙华超级商圈,世界级消费中心」

⭐龙华超级商圈:龙华六大重点片区之一,以人民路为中轴,规划承载中洲龙商旧改、龙华海岸城旧改为核心,打造人民路龙华超级商圈。

⭐世界级消费中心:未来龙华超级商圈将成为规模超200万㎡、产值超500亿的市级核心商圈和世界级未来消费体验中心。

项目配套

交通配套

4号线(已开通):龙华站直线距离约1000m,深圳纵向城市交通中轴。

6号线(已开通):上芬站距离约1200m,链接光明、龙华、福田。

25号线(预计2024年2月开工):景龙/油福站直线距离约400m,打通城市东西走向核心动脉

27号线(启动施工招标):油福站直线距离约400m,拥抱前海,覆盖各大高新人才聚集地

22号线(已开工):油松站直线距离约1km,连接福田-龙华各大核心产业区。

商业配套

世界级消费中心:未来龙华超级商圈将成为规模超200万㎡、产值超500亿的市级核心商圈和世界级未来消费体验中心。

教育配套

小学学区划分在龙华区第二实验学校小学部,人民路学校小学部,华育小学,作为小学共享学区;中学学区划分在人民路学校初中部,龙华区第二实验学校初中部,作为初中共享学区;

另外值得一提的是家门口的深圳艺术高中民治学校(在建),该校是一所54班学校,小学36班,初中18班,将提供2520个学位,小学1620个,初中900个,未来也将划入尚云花园学区范围内。

医疗配套

深圳龙华区人民医院、龙华区中心医院、广州医科大学附属第一医院、深圳市第二儿童医院(在建)、新华医院(在建)

休闲配套

深圳书城龙华城、龙华文体中心、简上体育综合体、展览馆、演艺馆、深圳市图书馆北馆、美术馆新馆、深圳市文化馆新馆。

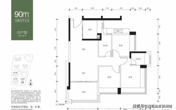
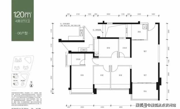
户型鉴赏

建面约82平户型图

✨✨鸿荣源尚云营销中心电话☎:400 065 2898✨✨

✨✨鸿荣源尚云开发商电话☎:400 065 2898✨✨

免责声明:部分信息来源于网络,如果侵权,请联系及时删除

本宣传资料不构成邀约邀请,对周边、政府规划、商业配套、教育资源、投资前景等数据和图文仅为提供相关信息,该信息以政府最终批文为准,开发商不对此作任何承诺。买卖双方的权利义务以双方签订的买卖合同约定及附件、实际交付为准,本公司保留对宣传资料修改的权利,敬请留意最新资料。联系号码☎:400 065 2898✨✨

全部

相关资讯

报名成功
稍后会有专业的置业顾问联系您
返回楼盘

频道导航

返回首页

看房小程序

APP下载

电话拨通后,请您手动拨打分机号

确定拨打电话

电话号码:

分机号:(可能需要拨分机号)