翰熙典居官方售楼处首页-翰熙典居售楼处电话-开盘时间-房价-户型-楼盘详情-周边环境-项目价值-最新价格-地址位置

搜狐焦点贺州站

2026-03-28 19:09:02

购房群

买房如何避坑,加入购房群,看看他们怎么说

立即进群

深圳【翰熙典居】

翰熙典居【售楼中心】400 055 9697

翰熙典居售楼处电话:400-055-9697【24小时热线】

在售户型图丨项目介绍丨最新房源丨周边配套丨详细解答〢

◆开发商营销中心诚挚邀请,一键预约,尊享内部折扣!匠心独运的精品项目,恭候您的品鉴与选择。

项目最新介绍:房价、折扣、户型图、特价房源、得房率、优惠活动、开盘时间、交房时间、周边配套、最新详情咨询

翰熙典居位于粤港澳大湾区科创核心——粤海街道,紧邻深圳大学,背靠腾讯总部,逾50万㎡地标级奢宅综合体,代言湾区时代奢居典范,焕新塔尖生活向往,引领人居品质进阶。

总建设用地面积:约41659㎡

总建筑面积:约516339㎡

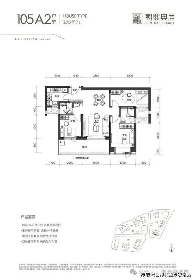
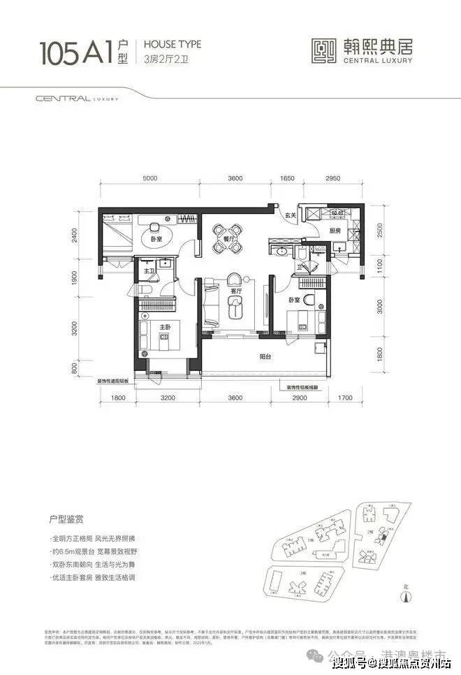
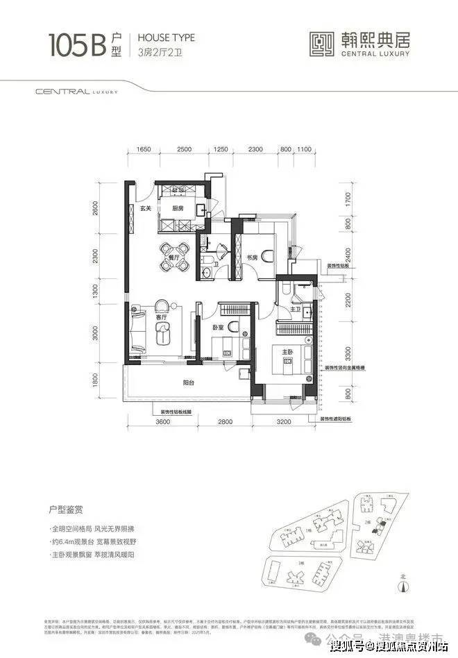
首推主力户型:新规后建面约105-140㎡奢雅空间

项目地址:南山区·粤海·白石路3888号

开发商:深圳市贯凯投资有限公司

核心板块往往拥有全维配套,这些也将直接提升翰熙典居的生活体验,赋予其「树立人居标杆」的底气。

粤海之上 逾50万㎡地标级奢居综合体总建设用地面积:约41659㎡ 总建筑面积:约516339㎡ 首推主力户型:新规后建面约105-140㎡奢雅空间开发商:深圳市贯凯投资有限公司

科创中心丨擎领世界的粤海雄心世界四大湾区唯有粤港澳大湾区和旧金山湾有全球科创中心的发展定位。粤海作为粤港澳大湾区核心引擎,依托于重点院校、科创孵化、世界领军企业,成为对标阿瑟顿镇的深圳至臻人居价值版图。

粤海集萃腾讯、大疆等世界五百强企业,汇聚1600余家国家高新技术企业、百余家上市公司,驱动逾千亿年产值,2024年GDP约4500亿元。矜贵恒产丨问鼎全球的人居高地粤港澳大湾区——粤海街道,以科技南及后海、深圳湾片区为代表,代言湾区时代地标封面,问鼎深圳至臻人居价值版图:

深圳湾1号(二手房价约20-32万/㎡);华润深圳湾悦府(约19-20万/㎡);华润城润玺二期(约16-18万/㎡);

深湾CBD丨时代粤海的蝶变新章深湾CBD立足南山区“双核”战略核心,串联科技园、后海、深超总、深圳中央公园,聚合金融、科技、人文生态超级闭环,以多维战略产业叠加,重塑粤海价值天际线。翰熙典居,是继华润城之后深湾CBD又一人居地标之作,以时代中心之上的奢居基因,铸就跨越周期的矜贵人居恒产。

贵脉源点丨全维中心的奢居地标翰熙典居占位深圳经济命脉滨海大道与南北科创主轴南海大道交汇处十字轴心。集萃城市区位、科创、人文、TOD四大中心源点。依托两大科技园、四大总部基地,集总部经济+全球科创中心价值,坐享区域发展利好。

人文中心丨百年人文印记 桂脉传承不息桂庙新村,传承百年城市人文底蕴,是粤海科创产业的时代摇篮、深大学子的后花园,也是深圳奇迹的源点。从桂庙新村到翰熙典居,一脉城市向上的繁心,为於此奋进的各界时代精英,谨献伫立于中心之上的人文奢宅,为粤海匠造一座屹立于时代之巅的地标之作。

枢纽中心丨双地铁上盖TOD无缝接驳地铁9号线、15号线(在建中)交汇深大南站。核心区罕有TOD项目。四横:滨海大道、深南大道、北环大道、学府路三纵:南海大道、后海大道、白石路 (以上所有交通规划最终通车时间以政府最新工程进度落实为准)

5重生态丨山/湖/园/海/湾 聚揽城市一湾风华1山1湖:深圳大学杜鹃山、文山湖4公园:荔香公园、文心公园、科技公园、深圳人才公园1深大后花园1海湾:约15公里深圳湾滨海长廊 (项目规划连廊直通深大,中国十大最美校园之一。该天桥为方便深大师生进出而设置,后期具体人员进出管理以深圳大学有关规定为准)

百万商业丨湾区繁华潮向 臻藏生活万象咫尺海岸城商圈,近距离可达深圳湾万象城、万象天地、鹏润达广场、后海汇、来福士广场

9大文体丨城市峯层配套 擘画都心生活闲情逸趣保利剧院、南山书城、南头古城、南山图书馆、南山文体中心、南山博物馆、深圳湾体育中心、深圳湾文化广场(在建中)、粤海文体中心(在建中)

优教护航丨全龄教育环伺 赋写下一代美好未来幼儿园:项目自带1所12班制幼儿园小学:西侧规划有1所30班小学(地块红线外)、南二外学府一小中学:南二外学府中学、深圳南山中加学校大学:深圳大学,全国十大最美校园(周边教育设施如有变动,以南山区教育局最新颁布政策为准)

翰熙典居丨逾50万㎡地标级奢居综合体集住宅、商业、办公、酒店等业态于一体。项目自带约1.9万㎡精奢时尚酒店、约5.7万㎡未来潮流街区(以后期实际运营为准)、约1.26万㎡公共配套,多维配套迭新粤海人居想象。

质匠高定丨集聚一流大师 匠造雅质奢宅翰熙典居联袂华汇设计、迈丘设计、CCD(香港郑中设计事务所)等国际国内大师,匠制三重归家礼序,打造美学园林及品质公区,成就卓尔不凡的超感生活。

流线之幕 | 幕墙集成系统静雅奢华风格延续奢宅风貌,历久弥新的品质凝练

盛世翰韵 | 新东方都市风格园林度假式无边际泳池,樱花大道、无界人文街区

逐光之旅 | 大师高定艺术公区以超脱酒店的艺术手法,构筑雅静空间,大堂墙面高端用材,精心雕琢尊崇归家仪式感

奢阔空间丨中心极境 礼献粤海翰熙典居,粤海十年之后再上新,全新奢居综合体礼献峯层。可售主力户型新规后建面约105-140㎡奢雅空间,全明方正户型将空间奢阔感与生活舒适度完美契合。明星户型超6米阳台开间,全维度巨幕景观视野,尽揽湾心万千风景。

枫叶集团丨深耕核心区 专注城市更新与运营枫叶集团,聚焦地产开发、资产运营、物业服务三大核心业务。秉承“以心筑新,至臻至善”发展理念,以深圳南山、宝安等核心区为原点,致力于深圳核心的城市更新与运营。已开发地产物业逾百万方,待开发土地储备逾百万方。

翰熙典居,逾50万㎡地标级奢居综合体,2025年深圳市重大建设项目之一。项目三个地块一次性整体开发,彰显枫叶集团雄厚实力,及打造中心人文奢宅、城市地标之作的恢弘之志。

开发商售楼处热线:400 055 9697 【营销中心】

本文内容为广告推广,涉及房价或现有房源可能出现变更,请致电详询并以售楼部为准

免责声明:本文如无意中侵犯了某方的知识产权告知即删,部分内容图片可能来源于网络,无法核实其真实出处,如涉及侵权请联系本网站删除!!!

全部

相关资讯

报名成功
稍后会有专业的置业顾问联系您
返回楼盘

频道导航

返回首页

看房小程序

APP下载

电话拨通后,请您手动拨打分机号

确定拨打电话

电话号码:

分机号:(可能需要拨分机号)