鸿荣源珈誉府售楼处电话-深圳鸿荣源珈誉府最新动态-/地址→配套-学区-户型-最新价格-楼盘网站丨楼盘详情 24小时客服热线为您服务

搜狐焦点贺州站

2025-06-24 11:40:43

购房群

买房如何避坑,加入购房群,看看他们怎么说

立即进群

鸿荣源珈誉府首页网站最新介绍:房价、折扣、户型图、特价房源、得房率、优惠活动、开盘时间、交房时间、周边配套、最新详情等咨询。

深圳宝安——鸿荣源珈誉府售楼处电话☎:400 065 2898✨✨

鸿荣源珈誉府售楼中心24小时电话☎:400 065 2898【营销中心】

温馨提示:过来看房请记得提前来电预约,尊享售楼处1v1销售专业讲解,感谢您的来电!

🔥本项目暂不接受临时到访,过来参观样板房请记得提前来电预约!✨✨

🔥为您安排楼盘现场销售全程接待并讲解,给您更贴心的看房体验!✨✨

鸿荣源珈誉府,总建面约248万㎡,将打造近8000套住宅,其中住宅面积70万㎡,商业面积50万㎡,共分4期开发,是鸿荣源集团全新开发的地标级综合体大盘,涵盖高端住宅、商业办公、星级酒店、优质教育、大型购物中心等业态。

而本次壹方奥莱商业中心,也是鸿荣源”奥特莱斯“产品线的首个项目,商业中心通过空中绿道与塘尾地铁站相连,现代感十足,也是鸿荣源继前海壹方城,龙华壹方天地之后开发的第3个超大商住综合体项目。

项目位于沙井塘尾地铁站旁,航母级综合体含「湾区壹方」商业、总部办公、高端酒店、商品房住宅、保障房,各方面配套都非常丰富。

不仅刚需三宝齐全,还可以说是“六边形全能楼盘”:优点如下:

①地铁,11号线塘尾站,在售的2区是距离地铁最近,步行约200米左右;

②学校,家门口就是深圳外国语宝安南校区,九年一贯制学校;

③商业,项目楼下就是50万㎡商业包括湾区壹方和奥特莱斯,这个奥特莱斯是重奢版的奥特莱斯,不是卖尾货的奥特拉斯;

④大花园社区,准现楼,得房率高!项目自带2.8万㎡的实景大花园,刚需盘里面有2.8万㎡大花园的凤毛麟角;项目目前是准现房状态,预计明年年底精装交付,今年买明年住;项目户型得房率均在90%左右,最高达97%,超越新规产品户型!

⑤鸿荣源的品质和物管,鸿荣源虽然是民企,但是在深圳是第一梯队的,但凡鸿荣源的物业将来二手市场上也比旁边的非鸿荣源的物业都要卖得更贵一点,因为他保养的更好,服务物业更好;

⑥地段区位好,项目位于西部热点片区,西部城市新中心,粤港澳大湾区的核心内环,靠近国际会展中心、海洋新城和前海扩容区。

项目周边配套

商业配套:鸿荣源珈誉府,自带50万㎡壹方奥特莱斯商业,汇集了壹方+奥莱的商业模式,在项目北侧还有万丰海岸城近18万㎡的购物中心,另外还有山姆会员商店在建,这个片区以后也将会是整个沙井最高端最集中的商业购物中心。

学校配套:鸿荣源珈誉府旁边,所规划的2个教育用地,已经正式出了红头文件,为深圳外国语宝安学校(集团)南校区,分别为1所63班九年一贯制学校,1所为27班九年一贯制学校(珈誉玖玺旁边),另外根据宝安区2024年最新的学区划分

小学学区划分在桥头学校小学部、塘尾万里学校小学部、滨海小学(集团)福桥小学、立新湖学校小学部、凤凰学校小学部、滨海小学(集团)文昌小学;

初中学区划分在桥头学校初中部、塘尾万里学校初中部、立新湖学校初中部、福永中学、新安中学(集团)第二外国语学校(初中部)、航星学校初中部、凤凰学校初中部。

虽然同为宝安鸿荣源珈誉府项目,但是因为社区不同,学区划分是有明显区别的,旁边规划的深圳外国语宝安学校南校区仅27个班,后期录取积分应该会非常紧张,另外距离约900米的立新湖学校,在2024年小一的录取积分是86.8分,初一的录取积分是81分塘尾万里学校在2024年的小一录取积分是100.5分,初一录取积分是94.2分

按照宝安区教育局公布的积分政策,只要是深圳户籍(其它区)+学区内商品房,基础分100分深圳宝安户籍+学区内商品房,基础分105分

地铁配套:鸿荣源珈誉玖玺家门口就是宝安大道及凤塘大道等交通主干道,11号地铁线“塘尾站”,距离约300米,4站到宝安机场,6站到宝中,7站到前海湾,8站到南山,11站到车公庙。鸿荣源珈誉玖玺家门口就是宝安大道及凤塘大道等交通主干道,

75㎡的3房2厅1卫

,设计的是竖厅格局,客厅3.1米开间,LDKB一体化,S墙设计预留冰箱卡槽位,3个卧室分别做到了主卧10.2㎡/次卧8.55㎡/次卧7.95㎡(包含墙体飘窗),U型厨房,卫生间三段式分离,得房率约77%(不含赠送),西南朝向。

84㎡的3房2厅2卫

,设计的是经典竖厅格局,客厅3.2米开间,LDKB一体化,S墙设计预留冰箱卡槽位,三开间朝南,3个卧室分别做到了主卧12.37㎡/次卧9.18㎡/次卧6.76㎡(包含墙体飘窗),U型厨房,卫生间三段式分离,得房率约77%(不含赠送),西南或东南朝向。

94㎡的3房2厅2卫

,设计的是横厅南北通透格局,客餐厅6.3米开间,LDKB一体化,四开间朝南,卧室全南向,3个卧室分别做到了主卧15.3㎡/次卧8.5㎡/次卧8.16㎡(包含墙体飘窗),L型厨房,公卫三段式分离,得房率约77%(不含赠送),阳台主朝东北向。

97㎡的3房2厅2卫

,设计的是横厅南北通透格局,客餐厅6.2米开间,LDKB一体化,四开间朝南,3个卧室分别做到了主卧13.87㎡/次卧8.58㎡/次卧7.92㎡(包含墙体飘窗),L型厨房,卫生间干湿分离,得房率约77%(不含赠送),阳台主朝东北向。

建面约124㎡的4房2厅2卫

124㎡的4房2厅2卫,此户型为东南朝向,设计的是经典竖厅格局,客餐厅位都设计了飘窗,就是为了争取更多的赠送,动静分区,四开间朝南,主卧270°观景飘窗,L型厨房,公卫三段式分离,得房率约88%(包含赠送)。

建面约137㎡的4房2厅2卫

137㎡的4房2厅2卫,设计的是横厅南北通透格局,超宽展面,动静分区,五开间朝南,主卧三面观景飘窗,L型厨房,公卫三段式分离,得房率约90%(包含赠送)。

建面约169㎡的4房2厅3卫

169㎡的4房2厅3卫,设计的是竖厅格局,2梯2户,专梯入户,独立入户玄关,LDKB一体化设计,四开间朝南,双主卧套间,客厅连接次卧出大阳台看花园全貌景观,二字型厨房带1个生活阳台,公卫三段式分离,得房率约95%(包含赠送),正南朝向。

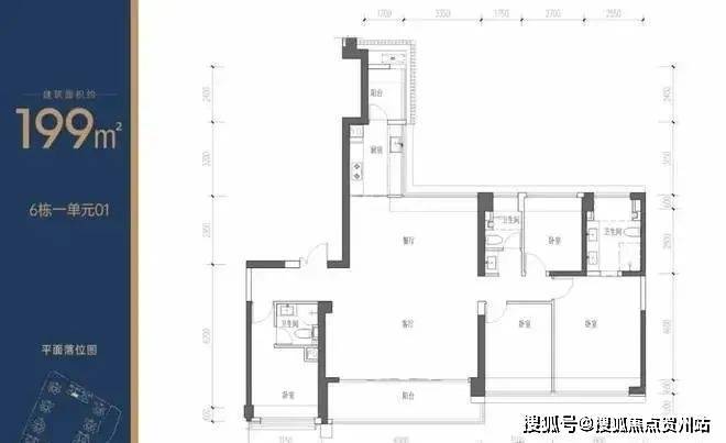
建面约199㎡的4房2厅3卫

199㎡的4房2厅3卫,设计的是竖厅格局,2梯2户,专梯入户,独立入户玄关,LDKB一体化设计,客厅超大开间,四开间朝南,双主卧套间,客厅超大阳台看花园全貌景观,二字型厨房带1个生活阳台,公卫三段式分离,得房率约95%(包含赠送),正南朝向。

【玖遇·围合式艺术大园林】

约2.9万㎡舒居艺术大园林

围合式布局,最大楼间距约161米

【玖奢·品质生活—6栋】

纯板楼设计,二梯二户,外立面部分采用铝板,尽显品质;

入户大堂采用大理石地面及花纹石材墙面;

奢阔3.15m层高,体验归家礼序,尽享圈层人生

【玖享·全龄双泳池 礼遇归家礼仪轴线】

配备全龄子母双泳池、亲子乐园、交流花园,构建全龄活动功能配套,主出入口列阵式礼仪轴线,体现归家仪式感,品质尊崇感

✨✨鸿荣源珈誉府营销中心电话☎:400 065 2898✨✨

✨✨鸿荣源珈誉府开发商电话☎:400 065 2898✨✨

免责声明:部分信息来源于网络,如果侵权,请联系及时删除

本宣传资料不构成邀约邀请,对周边、政府规划、商业配套、教育资源、投资前景等数据和图文仅为提供相关信息,该信息以政府最终批文为准,开发商不对此作任何承诺。买卖双方的权利义务以双方签订的买卖合同约定及附件、实际交付为准,本公司保留对宣传资料修改的权利,敬请留意最新资料。联系号码☎:400 065 2898✨✨

全部

相关资讯

报名成功
稍后会有专业的置业顾问联系您
返回楼盘

频道导航

返回首页

看房小程序

APP下载

电话拨通后,请您手动拨打分机号

确定拨打电话

电话号码:

分机号:(可能需要拨分机号)