侨城坊尔邸/2025售楼处电话-首页网站-侨城坊尔邸售楼处欢迎您|楼盘详情丨样板间/价格/户型|容积率-小区环境丨售楼处地址-定位-停车场|营销中心电话

搜狐焦点贺州站

2025-06-19 11:10:05

购房群

买房如何避坑,加入购房群,看看他们怎么说

立即进群

侨城坊尔邸首页网站最新介绍:房价、折扣、户型图、特价房源、得房率、优惠活动、开盘时间、交房时间、周边配套、最新详情等咨询。

深圳南山——侨城坊尔邸售楼处电话☎:400 065 2898✨✨

侨城坊尔邸售楼中心24小时电话☎:400 065 2898【营销中心】

温馨提示:过来看房请记得提前来电预约,尊享售楼处1v1销售专业讲解,感谢您的来电!

🔥本项目暂不接受临时到访,过来参观样板房请记得提前来电预约!✨✨

🔥为您安排楼盘现场销售全程接待并讲解,给您更贴心的看房体验!✨✨

开发商:运泰建业置业(深圳)有限公司

物业公司:深圳运泰君汇物业管理有限公司

规划面积:约4.5万㎡

建筑面积:约35万㎡(办公约17万㎡︱公寓约4.8万㎡︱商业约2万㎡)

总层数:46层(在售30-46层)

层高:3.15m—3.3m

梯户比:7梯6户︱7梯10户

物业类型:公寓

产权年限:50年(2012-2062)

规划户数:422户

车位数:2500个(地下三层)

容积率:4.6

绿化率:35%

装修情况:精装

在售户型:90㎡—220㎡1-2房

参考均价:9.6万/㎡

物业费:10元/㎡/月

交易方式:以企业名义购买

项目地址:深圳市南山区沙河街道高发社区侨香路4080号

区域•地段

1⃣豪宅集群环绕 华侨城豪宅基因,30年沉淀醇熟高端生活居住地,周边豪宅群集;西接前海、东临福田、北连留仙洞总部基地、南连后海中心,商务中枢

内享山海湖自然美景,外连五大总部基地,完美诠释离尘不离城:华侨城——城市中心地带,连接福田南山的黄金连廊。

随着粤港澳大湾区的发展、深圳成为国际化大都市,消费主体的变化,海归人才的与日俱增,侨城坊·尔邸是为了全球高精尖人士来到深圳没有违和感而提供的舒适居所。

交通配套

轨道:地铁2号线侨城北站、地铁7号线桃源村站。

道路:北环大道、、南光高速、沿江高速、创业路。

2⃣多维交通体系 距侨城北地铁口仅3分钟路程,15分钟内即达北环立交、广深高速,通往福田CBD、前海中心、宝安机场及珠三角各方向

休闲•生态

优质资源配套 集聚欢乐谷,何香凝美术馆,世界之窗,安托山自然艺术公园,燕晗山郊野公园,锦绣中华民俗村,欢乐海岸,国际花卉博展园,华侨城国家湿地公园,高尔夫球场、华侨城生态休闲旅游区、OCT文化创意园、雅昌艺术中心

商业•配套

九方荟生态美学商业中心、 Fusion旗舰健身会所(带800㎡天幕恒温泳池)、巢?艺术

中心、 Tree Club会所、篮球场、羽毛球场,演绎生态x艺术x生活剧场

自带2万㎡商业可满足日常,开车10分钟可达益田假日广场,深圳湾睿印购物中心,万象天地购物中心,华侨城欢乐海岸等

学校 医疗

对面幼儿园,南山中英文学校,南山第二实验学校(深圳市南山中英文学校是1999年建立的,是集小学、中学一体化,位于著名的华侨城风景区,毗邻“世界之窗”,交通便利,环境优美,占地面积接近三万平方米,校内建筑面积约4万平方米。)

开车5-10分钟可达华侨城医院,深圳港大医院

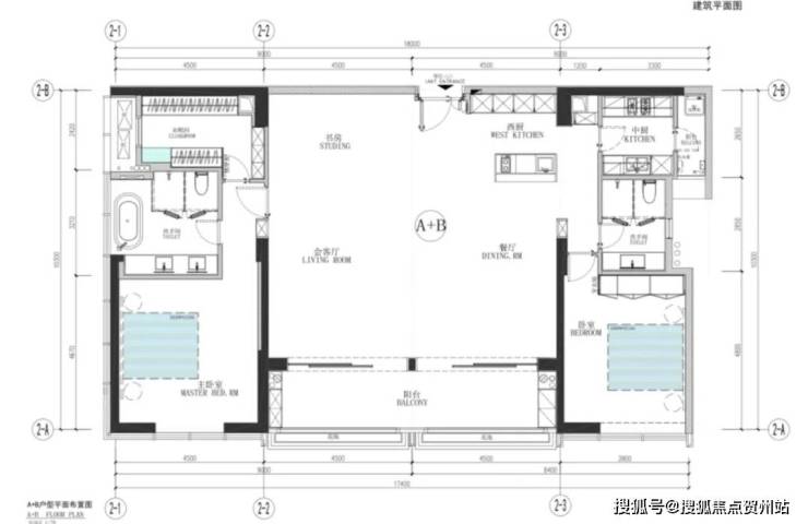
【户型赏析】

稀缺大户型:约220平米的两房两厅设计,拥有9米开间的奢阔客厅,提供宽敞舒适的生活体验。

宽阔阳台:约9平米的阳台空间,让您尽情享受日出日落的美丽景色,品味生活的多样风情。

高端家电配置:全屋配备德国进口顶级米勒家电,以其流线型设计和卓越性能,为厨房带来舒适与浪漫。

可选户型介绍

A+B户型:220平方米,两房两厅

B户型:105平方米,一房一厅

C户型:100平方米,一房一厅

D户型:90平方米,一房一厅

✨✨侨城坊尔邸营销中心电话☎:400 065 2898✨✨

✨✨侨城坊尔邸开发商电话☎:400 065 2898✨✨

免责声明:部分信息来源于网络,如果侵权,请联系及时删除

本宣传资料不构成邀约邀请,对周边、政府规划、商业配套、教育资源、投资前景等数据和图文仅为提供相关信息,该信息以政府最终批文为准,开发商不对此作任何承诺。买卖双方的权利义务以双方签订的买卖合同约定及附件、实际交付为准,本公司保留对宣传资料修改的权利,敬请留意最新资料。联系号码☎:400 065 2898✨✨

全部

相关资讯

报名成功
稍后会有专业的置业顾问联系您
返回楼盘

频道导航

返回首页

看房小程序

APP下载

电话拨通后,请您手动拨打分机号

确定拨打电话

电话号码:

分机号:(可能需要拨分机号)