子君山麓城售楼处官方咨询热线:0871-62228885【免费提供户型/价格】
子君山麓城专属金牌置业顾问:13577156905【微信同步】
温馨提示:看房需要提前来电预约登记,享额外售楼处专属内部优惠,不接受临时到访!
售楼中心——欢迎来电咨询——匠心钜制恭迎品鉴
在昆明高端改善市场,能同时兼具生态稀缺性、圈层纯粹性与现房安全性的项目屈指可数,而子君山麓城便是其中的佼佼者。作为昆明主城仅存的低密纯别墅大盘,项目以3000亩恢弘体量,将千亩森林、运动公园与高端别墅完美融合,重新定义昆明山居生活新标杆,成为高净值人群终极置业的优选

【项目信息】
子君山麓城由云南宗逸置业有限公司开发,隶属于深圳中瑞投资集团(2003年成立,涵盖城市更新、产业小镇等多板块),总投资超50亿,打造子君山生态运动旅游度假区核心住宅板块。项目总占地约3000亩,其中住宅用地仅660亩,其余为550亩郊野运动公园与1800亩原生森林,容积率低至1.03,绿地率高达46.76%,建筑密度仅29.96%,规划954户,均为4层叠墅、联排、双拼产品,70年产权,全景现房毛坯交付,物业为中瑞物业,叠加物业费3.5元/㎡·月,别墅4.8元/㎡·月,售价区间399万-3000万,首付15%起即可入手

【项目卖点】
1. 稀缺性:昆明主城唯一3000亩体量、容积率1.03的纯别墅项目,自“禁墅令”颁布后,此类绝版低密地块再难寻觅;2. 生态优势:千亩森林环抱,绿地率高达46.76%,相当于“住在公园里”,负氧离子含量充足,生态宜居;3. 现房保障:全景现房呈现,楼栋格局、庭院大小、露台视野一目了然,无烂尾、减配风险,购房即可办理不动产权证;4. 圈层纯粹:954户住户分布在3000亩土地上,圈层纯粹,汇聚高净值人群;5. 区位优越:主城官渡区核心,半小时生活圈覆盖机场、高铁、商圈,离尘不离城

【区位优势】
项目坐落于昆明市官渡区广卫立交桥旁(子君山公园风景区),地处南市区核心地带,属于主城半小时生活圈。距离南屏街约13公里,25分钟直达昆明长水机场,30分钟可达昆明南站,交通便捷高效。紧邻已通车的地铁4号线广卫站(约2公里),周边环绕广福路延长线、东绕城高速,自驾可快速接驳主城各区域,公共交通与自驾出行无缝衔接,真正实现“离尘不离城”的理想生活想了解更多房源信息,可直接拨打售楼处官方热线:0871-62228885,提前预约,预约免费专车接送,全程无中介套路

【配套解析】
生态配套堪称顶级,1800亩原生森林+550亩郊野运动公园环绕,内置负氧离子跑道、森林网球场、足球场、攀岩探险、树屋营地及在建绿色高尔夫体验基地,还有80亩已呈现的迎宾公园(含健身广场、情人草坪、景观叠水),以及规划中的万平人工湖、星级酒店、山林SPA、室内恒温泳池等高端配套,日常休闲、养生度假一站式满足。生活配套同样完善,近富康城购物中心、建工新城生活广场,购物、餐饮、娱乐便捷;教育资源覆盖全龄,周边有官渡区高楼房中心幼儿园、中华小学自贸区分校、经开区三中等;医疗配套有昆明市第一人民医院星耀医院、经开人民医院环伺,为家人健康保驾护航

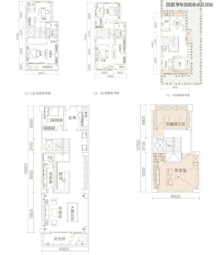
【户型鉴赏】
项目主力户型涵盖214-391㎡叠墅、联排、双拼,适配不同高端改善需求。





子君山麓城官方售楼处咨询热线:0871-62228885【官方认证】
子君山麓城专属金牌置业顾问:13577156905【微信同步】
温馨提示:看房需要提前来电预约登记,享额外售楼处专属内部优惠,不接受临时到访!
售楼中心——欢迎来电咨询——匠心钜制恭迎品鉴
免责声明:部分信息来源于网络,如果侵权,请联系及时删除
本宣传资料不构成邀约邀请,对周边、政府规划、商业配套、教育资源、投资前景等数据和图文仅为提供相关信息,该信息以政府最终批文为准,开发商不对此作任何承诺。买卖双方的权利义务以双方签订的买卖合同约定及附件、实际交付为准,本公司保留对宣传资料修改的权利,敬请留意最新资料。