087162228885
售楼处咨询专线:0871-6222-8885【售楼中心】
金牌置业顾问:13577156905
售楼部地址:0871-6222-8885(致电发送详情地址)
预约来电看房享售楼处内部专享特惠,免费专车接送看房

万科都会半岛
在昆明这座充满活力的城市,昆明万科都会半岛宛如一颗璀璨的明珠,镶嵌在滇池之畔。作为万科匠心打造的高品质社区,它依托独特的半岛地理优势,融合都会的繁华与自然的灵秀,为昆明人民精心构筑了一处理想家园,开启一场都会与自然共生的美好生活之旅。

项目构建了立体的交通网络,让您出行无忧。周边主干道纵横交错,环湖东路等城市动脉贯穿其中,让您自驾出行畅通无阻,快速连接城市的各个区域。公共交通同样便捷,多条公交线路在项目附近设有站点,为您的日常出行提供便利。项目临近地铁线路站点,实现与城市各区域的无缝对接,大大缩短出行时间。

项目周边医疗配套完善。距离项目不远的地方,分布着多家大型综合医院和专科医院,先进的医疗设备和专业的医疗团队,为家人的健康保驾护航,让您安心无忧。无论是日常的健康检查,还是突发疾病的救治,都能在短时间内得到专业的医疗服务。

项目周边商业氛围浓厚,大型购物中心、超市、菜市场一应俱全,满足您的日常生活购物需求。直线距离项目不远,规划有大型商业综合体,这里将汇聚国内外众多知名品牌,涵盖时尚购物、美食餐饮、休闲娱乐等多种业态,让您在家门口就能享受丰富多彩的都市生活。此外,项目自身也规划了风情商业街,为业主提供便捷的生活服务,满足日常生活的各类需求。

项目周边有多所优质学校,从知名幼儿园到中小学,为孩子提供一站式的教育服务。这些学校拥有雄厚的师资力量和先进的教学设施,注重培养孩子的综合素质,助力孩子茁壮成长,轻松开启知识的大门,追逐自己的梦想。在这里,您的孩子不仅能接受到优质的教育,更能在浓厚的学术氛围中熏陶成长,培养良好的品德和学习习惯。

昆明万科都会半岛,将都会的繁华与半岛的宁静完美融合,是您理想家园的不二之选。如果您渴望拥有一处既能享受城市便捷,又能亲近自然,拥有高品质居住体验的住所,万科都会半岛期待您的到来,一同开启美好生活的新篇章。

【超能装】82㎡天赋三居

【超多变】89㎡理想三居

【超能聚】97-100㎡1.5厅理想派对3+X

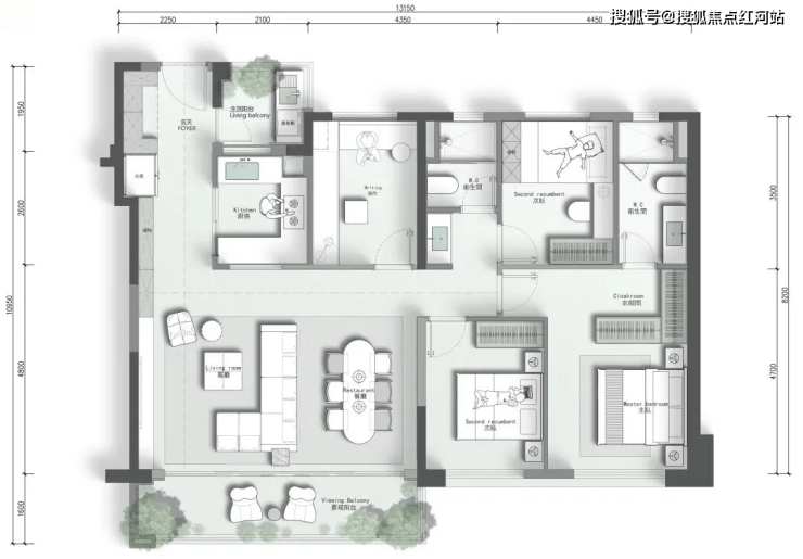
【超多房】126㎡大横厅4+2X会生长的空间

售楼处咨询专线:0871-6222-8885【售楼中心】
金牌置业顾问:13577156905
售楼部地址:0871-6222-8885(致电发送详情地址)
预约来电看房享售楼处内部专享特惠,免费专车接送看房
087162228885