北大资源滇海壹号
售楼处咨询专线:0871-6222-8885【售楼中心】
金牌置业顾问:13577156905
售楼部地址:0871-6222-8885(致电发送详情地址)
预约来电看房享售楼处内部专享特惠,免费专车接送看房
项目地址:昆明官渡区环湖东路与珥季路交汇处

项目基础信息
总占地面积:350亩
建筑面积:约60万方
绿化率:46%
产权年限:70年
面积段:约185-232㎡户型
梯户比:1T2户
容积率:1.09
车位比:1:1.24

项目位于昆明会展片区,整个片区以“飞虎大道”为中轴,往北承接巫家坝机场片区延伸至广福路,南至滇池沿岸,西至星海半岛西侧,东至宝丰半岛东侧,整体地势开阔平整,是昆明市主城区稀缺的可完整连片开发区域。同时片区毗邻滇池、远眺西山,多个湿地公园萦绕,自然景观生态资源丰富,且片区内多为低密度项目,整体宜居度在昆明首屈一指。

交通:3横6纵路网,三轨地铁交汇,立体交通,三横:广福路(政商大道)、南绕城高速、环湖路(环滇景观大道);六纵:官南大道(福保路)、飞虎大道(城市中轴)、昌宏西路、珥季路、云秀路、星耀路。项目对面的地铁宝丰站(2/5/8号线)。

商业:项目紧邻项目的滇池国际会展商圈,约30万方王府井奥特莱斯商业小镇、还有公园1903、爱琴海购物公园、海乐世界、世纪城、大都摩天、银海清溪渡、新螺蛳湾等商圈;项目规划有约17万方商业综合体,满足业主日常家居购物

教育:项目片区内规划有24所优质教育资源,海贝中英文幼儿园、中加幼儿园、伊顿双语幼儿园等8所幼儿园;海贝小学、云大附小、师大附小、中加小学、官渡一小、龙马小学、先策国际等10所小学;云大附中、师大附中、云秀书院3所中学,都是昆明知名学校
医疗:项目5公里内涵盖了省妇幼保健院、星耀医院、 同仁医院、省中医院滇池分院、市儿童医院等 ,其中同仁医院、省中医院、省妇幼保健院为国家三级甲等医院 。区域范围内可以享受到综合医院、专科医院、门诊服务等全方位的医疗配套。

生态:项目所在片区是环滇池北岸自然生态景观资源最为丰富的片区,周边有八大湿地公园环绕,公园总面积约6991亩,相当于20个翠湖大小。五甲塘湿地公园、西亮塘湿地公园、泛亚国际湿地公园、宝象河湿地公园。

A户型



B户型



C1户型



C2户型



D户型



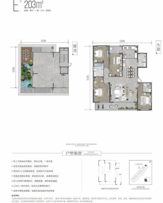
E户型


社区环境







500里滇池,8公里黄金海岸线,一线观滇,城央孤品
一轴三岛,新会展中央商务区,近享繁华
紧邻环湖路,昆明主城唯一1.09纯低密城央院墅
3公里内八大湿地公园环伺
360°环幕无遮挡视野,近观滇池,远眺西山
内外双园,六幕六院,TOP级隐奢度假园林,出则繁华,入则宁静
顶奢豪宅,实景呈现,一墅藏天地,一席一孤品
270°U形环绕,约120-360m²私享花园,双玄关独门独院入户,全明下沉花园庭院,买一层享三层
270°IMAX环幕视野,奢享滇海天际全景10/天空上院:约150㎡空中花园,270°环幕滇海视野,一院辽阔人生
售楼处咨询专线:0871-6222-8885【售楼中心】
金牌置业顾问:13577156905
售楼部地址:0871-6222-8885(致电发送详情地址)
预约来电看房享售楼处内部专享特惠,免费专车接送看房