087162228885
【万科都会半岛】售楼处咨询专线:0871-6222-8885【售楼中心】
金牌置业顾问:13577156905
售楼部地址:0871-6222-8885(致电发送详情地址)
预约来电看房享售楼处内部专享特惠,免费专车接送看房

昆明「万科都会半岛」
昆明万科都会半岛位于官渡区会展片区珥季路南段西亮塘湿地公园旁,由万科集团开发。项目总占地面积约70亩,总建筑面积约18.10万平,容积率仅2.8,绿化率40.01%,总户数1328户,车位数1328个。

项目周边交通网络发达,多条城市主干道在此交汇,构建起四通八达的交通体系。地铁5号线宝丰站近在咫尺,为日常通勤提供了高效便捷的选择

项目已签约云附星耀集团,星耀龙马小学加官一中云秀本部,优质九年公立公办教育体系已经落位,能为业主子女提供良好的教育资源。

项目周边有昆明同仁医院、昆明市儿童医院等三所三级甲等医院,以及昆明市第一人民医院星耀医院等其他医院。

都市与生态的链接“10-15分钟生活圈“在10分钟的驾程范围内商业繁华里,您可以轻松抵达周边的多个热门地标,兼得滇池半岛自然生态与昆明东南板块繁华烟火,近享王府井·滇池小镇、海乐世界、银海清溪渡购物公园商圈,轻松满足多元消费需求;

昆明万科都会半岛,以半岛的天赋资源、都会的繁华配套、匠心的品质产品和贴心的物业服务,成为昆明理想人居的典范之作。在这里,您可以拥抱城市的繁华,也能享受自然的宁静;可以体验智慧生活的便捷,也能感受品质居住的舒适。选择万科都会半岛,就是选择一种高端、品质、理想的生活方式,开启属于您的美好生活新征程。

【超能装】82㎡天赋三居

【超多变】89㎡理想三居

【超能聚】97-100㎡1.5厅理想派对3+X

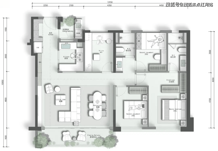
【超多房】126㎡大横厅4+2X会生长的空间

【万科都会半岛】售楼处咨询专线:0871-6222-8885【售楼中心】
金牌置业顾问:13577156905
售楼部地址:0871-6222-8885(致电发送详情地址)
预约来电看房享售楼处内部专享特惠,免费专车接送看房
087162228885