昆明招商依云国际社区售楼处电话-最新价格-小区环境-在售户型-周边配套-容积率-车位比-楼盘详情

搜狐焦点红河站

2025-06-29 11:17:00

购房群

买房如何避坑,加入购房群,看看他们怎么说

立即进群

087163630707

招商依云国际社区

售楼处电话:0871-6363-0707【售楼中心】

金牌置业顾问:13577156905

售楼中心地址:0871-6363-0707(致电发送详情地址)

预约来电看房享售楼处内部专享特惠,免费专车接送看房

项目详情

占地面积:1690亩

建筑面积:约248万方

产权年限:70年

绿化率:40%

容积率:3.93

交房标准:高层洋房:精装;合院叠拼:毛坯

在昆明这座充满魅力与活力的城市,招商依云国际社区宛如一颗璀璨新星,闪耀在城市的版图之上,以其独特的国际视野和卓越品质,为追求高品质生活的人们,开启了一段全新的理想生活篇章。

招商依云国际社区坐落于昆明极具发展潜力的区域,占据城市交通枢纽的重要位置。周边多条城市主干道纵横交错,让您自驾出行时,能迅速抵达城市的各个角落,无论是前往市中心的繁华商业区,还是奔赴机场开启一场说走就走的旅行,都能在高效的交通网络中畅行无阻。同时,公共交通也极为便利,附近的公交站点线路丰富,规划中的地铁站也近在咫尺,未来您可以轻松搭乘地铁,快速融入城市的快节奏生活,节省通勤时间,将更多的精力投入到生活与工作中。

招商依云国际社区在规划设计上融入了多元文化元素。社区内的建筑风格融合了现代简约与国际流行元素,线条简洁流畅,外观时尚大气,彰显出独特的国际范儿。社区景观以国际化的设计理念打造,种植了来自世界各地的珍稀植物,营造出四季有景、充满异域风情的园林景观。在这里,您仿佛置身于一个国际文化交流的大舞台,不仅能欣赏到不同风格的建筑与园林,还能结识来自五湖四海的邻居,体验多元文化的碰撞与交融,拓宽自己的国际视野。

项目周边配套设施一应俱全,全方位满足业主的生活需求。商业配套十分完善,大型购物中心、特色商业街环绕四周,汇聚了国内外知名品牌,无论是时尚的服装、精致的美食,还是潮流的家居用品,都能轻松购买到,满足您对品质生活的追求。

教育资源丰富,优质的国际学校、双语幼儿园近在咫尺,为孩子提供国际化的教育环境,让孩子从小接受多元文化的熏陶,培养国际视野和综合素养。医疗配套同样出色,大型综合医院和专科医院分布在周边,专业的医疗团队和先进的医疗设备,为家人的健康保驾护航,让您安心无忧。此外,社区内部还配备了健身房、瑜伽室、游泳池、儿童游乐区等休闲设施,满足不同年龄段业主的休闲娱乐需求,让您在闲暇时光能够尽情放松身心,享受丰富多彩的生活。

昆明招商依云国际社区,是国际生活与城市便捷的完美融合,是品质生活与贴心服务的理想呈现。如果您渴望拥有一个充满国际氛围与活力的家园,招商依云国际社区期待您的到来,一同开启美好生活的无限可能。

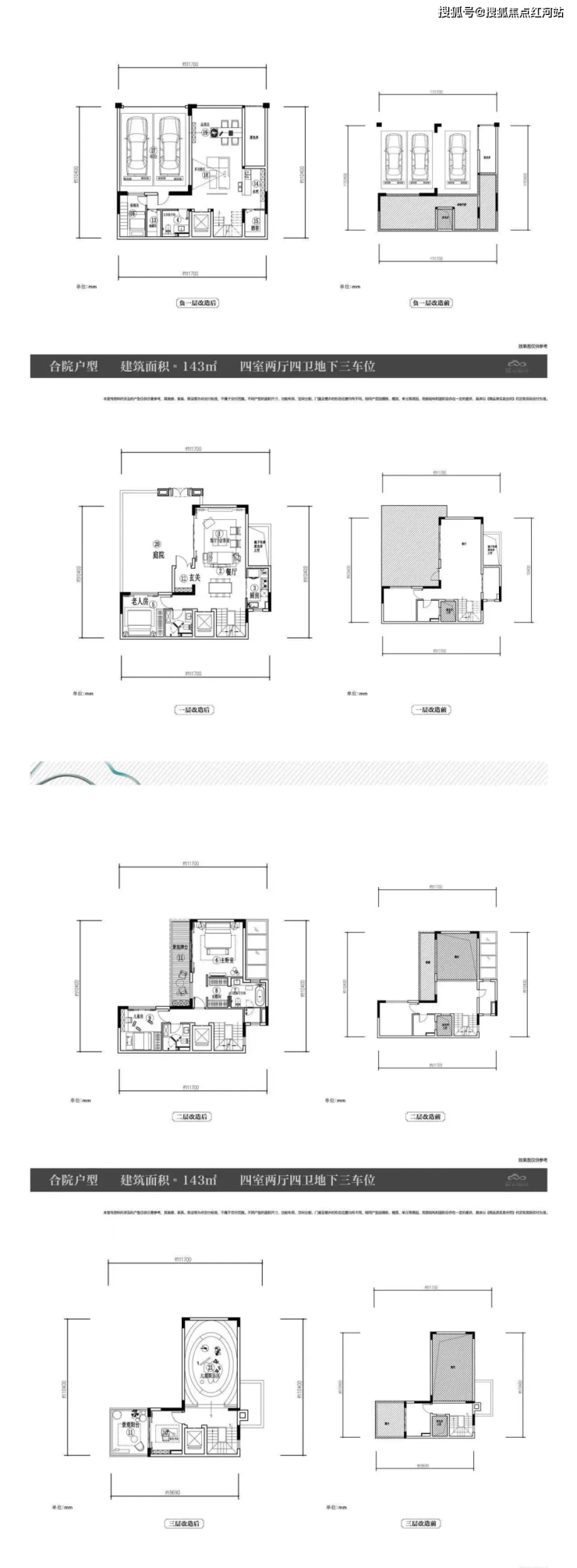
合院户型

售楼处电话:0871-6363-0707【售楼中心】

金牌置业顾问:13577156905

售楼中心地址:0871-6363-0707(致电发送详情地址)

预约来电看房享售楼处内部专享特惠,免费专车接送看房

全部

相关资讯

报名成功
稍后会有专业的置业顾问联系您
返回楼盘

频道导航

返回首页

看房小程序

APP下载

电话拨通后,请您手动拨打分机号

确定拨打电话

电话号码:

分机号:(可能需要拨分机号)