会展湾里岸(售楼处)首页网站|线上售楼处接待中心|线上售楼中心发布网站-楼盘详情

楼市八卦

2025-06-25 09:55:53

购房群

买房如何避坑,加入购房群,看看他们怎么说

立即进群

✪✪会展湾里岸售楼处电话:400-186-1314转5555【售楼中心】

✪✪售楼处24小时电话-地址-位置-价格-开发商-户型图等楼盘详情介绍

✪✪给您有效答复—4 0 0 - 1 8 6 - 1 3 1 4 转 5555—节省您的宝贵时间

^^售楼处1v1销售顾问给您解答!请预约参观!给您最新价格优惠^^

会展湾·水岸】湾区门户 会展芯著岸系新品 再续新篇建面约 33-63㎡ 72-92㎡ 滨水公寓

【项目地址】:深圳宝安区展云路与重庆路交汇处

【总占地】:约5.3万㎡

【总建面】:约8.8万㎡

【产权年限】 :40年

【容积率】:1.66

【商务公寓】 :约35016㎡

【商业】 :约10316㎡

【办公】:约42500㎡

【停车位】:773个

【物业公司】:深圳华侨城湾区发展有限公司

七大价值亮点

🔥 立足湾区核心,多重战略区位叠加,深圳经济增长极

🔥 全球第一大会展综合体,鼎立湾区门户

🔥 全球最大会展中心,深圳面向全球的窗口

🔥 9倍会展经济带动效应,深圳经济加速器350万会展经济圈

🔥 融创冰雪文旅城,世界级文旅配套

🔥 两大央企华侨城&招商联袂,品牌保障实力护航

🔥 湾区五维立体交通,构建跨越时区的交通网

五大必买理由💎 一个核心—粤港澳之核、大湾区之心

29平方公里会展新城—珠三角广深港发展走廊核心,由“三城一港”构成—国际会展城、海洋新城、会展田园城和综合港区,打造深圳在全球科技创新和海洋中心城市的重要战略之称

国际会展城—全球会展产业发展高地,形成“会展+科创”的世界会展产业示范区

💎 海陆空铁轨、湾区1小时经济圈

🚄 地铁:20号线地铁国展南站园区上盖,1站可达国际机场,预计年底通车。12号线途经南山和宝安两个行政区,无缝衔接11号线和6号线,预计2022年年底通车,未来将实现20分钟抵达市中心区

轨道:穗莞深城际已开通,迅速链接市内各区及珠三角城市

陆路:现有4条快速干道(沿江,广深,外环,京港澳),在建深中通道,滨江大道规划中,即将全面构建大湾区交通网络

✈ 航空:深圳宝安国际机场T3航站楼已启用,T4航站楼与机场第三跑道在建,未来可实现多条航线直飞全球超120个城市

💎 超300万方深圳会展湾 拉动区域经济引擎约160万㎡深圳会展中心,约154万㎡会展综合配套,形成包含城市地标、产业总部、商业中心、国际酒店群、产业展馆、精品公寓、生态公园、交通枢纽等复合功能物业群,构建集全球信息交流和消费体验于一体的会展商务平台💎 会展中心经济带动产业1:9,深圳经济增长级💎 2021年展会排期超60场,预计总展览面积超280万㎡、参展人数预计将超300万人,无限拉动周边区域配套收入,会展湾酒店供不应求,缺口巨大,公寓价值凸显

户型鉴赏(主力户型)💎 【A1户型:33㎡】房型:酒店式公寓朝向:E1、E2(东南、西北)户型优势:户型方案、3.6米开间、独立阳台

【B2户型:63㎡】房型:两房一厅一卫朝向:E1、E2(西南、东南)户型优势:端头位、双面采光、无敌景观

【B1户型:72㎡】房型:2+1房一厅一卫朝向:E1、E2(西北、东南)

户型优势:户型方正、多功能房、无敌景观

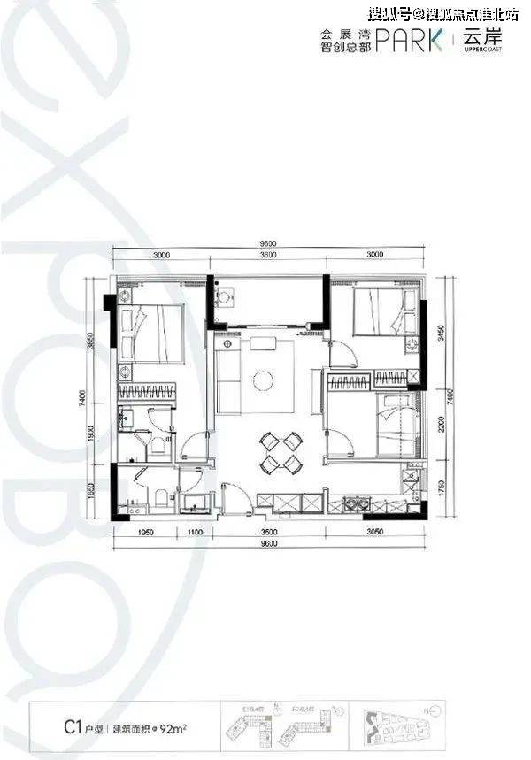
【C1户型:92㎡】房型:三房两厅两卫朝向:T5、T6(正南)户型优势:端头位、双面采光、主客分区、无敌景观 (瞰河)

深圳会展湾云岸

售楼处电话:400-186-1314转1111

深圳会展湾云岸售楼处电话:400-186-1314接通后输入1111楼盘详情介绍,位置、小区环境、房价、周边商业配套、户型等楼盘详情!

免责声明:本文图片皆来源于网络如无意中侵犯了某方的知识产权,告之即删!

✪✪会展湾里岸售楼处电话:400-186-1314转5555【售楼中心】

✪✪售楼处24小时电话-地址-位置-价格-开发商-户型图等楼盘详情介绍

✪✪给您有效答复—4 0 0 - 1 8 6 - 1 3 1 4 转 5555—节省您的宝贵时间

^^售楼处1v1销售顾问给您解答!请预约参观!给您最新价格优惠^^

免责声明:本文来源于网络!如无意中侵犯了某方的知识产权,告之即删。

全部

相关资讯

报名成功
稍后会有专业的置业顾问联系您
返回楼盘

频道导航

返回首页

看房小程序

APP下载

电话拨通后,请您手动拨打分机号

确定拨打电话

电话号码:

分机号:(可能需要拨分机号)