✪✪深圳中心天元售楼处电话:400-186-1314转5555【售楼中心】
✪✪售楼处24小时电话-地址-位置-价格-开发商-户型图等楼盘详情介绍
✪✪给您有效答复—4 0 0 - 1 8 6 - 1 3 1 4 转 5555—节省您的宝贵时间
^^售楼处1v1销售顾问给您解答!请预约参观!给您最新价格优惠^^
【深圳中心天元T3+T4】深圳中心天元公寓出售700-950㎡顶楼天墅-顶楼复式顶楼天墅700-950㎡中心无界资产,天幕墅境格局丨中心阔界视野丨稀世现楼资产;深圳中心天元T4顶楼天墅A户型面积700-950㎡,大宗总价约1.2-1.5亿

【阅无界 有可为】
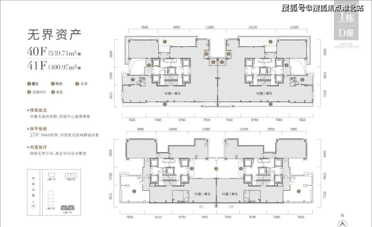
·择高处立: 140m天幕视野,俯瞰中心宏大版图
·就平处坐: 屹立深圳仰望,平视中心全景地标
·向宽处行: 云步塔尖墅境,阔揽中心万象繁华

【享无界 尽珍藏】
700-950㎡无界资产,无界珍藏绝版臻席
·深圳中心天幕视野,全球大人物高定著作
·CBD绝版700㎡+真公寓,立序深圳资产封面
·CBD罕见现楼,即刻敬献世家专属资产

【心无界 皆层峯】
700-950㎡塔尖境界,无界际会全球人物
·亿级入席门槛,界定大人物的纯粹圈层
·顶层公寓臻席,只属大人物的独家视角
·中心绝版资产,署名大人物的主角身份

【境无界 居天元】
700-950㎡轩昂格局,无界悦藏奢境格调
·极致一户五梯,让归家亦成一种艺术
·超30m大开间,墅级阔境满足家族需求
·270°巨幕双客厅,IMAX视野尽揽中心繁盛
·超阔空中露台,于云端安放塔尖奢雅

==== 深圳中心·天元无界资产介绍 ====
【产品性质】公寓
【产品面积】约700-950㎡
【交付标准】毛坯
【产权年限】50年(2013年-2063年)
【发展商】深圳市金地大百汇房地产开发有限公司
【投资商】金地集团、卓越集团、大百汇集团
【物业公司】深圳市金地物业管理有限公司

【中心公寓,无界争藏】
深圳中心·天元,占据深圳核芯地段——福田CBD
汇聚41年精粹,打造中心区绝无仅有纯粹大平层住区
以绝对性价优势,未来补涨空间更是不可限量
约700㎡+中心无界资产,CBD罕见商务真公寓
片区唯一在售现楼,臻席倒数敬献大人物争藏

【中心榜首,无界风范】
·大品牌:金地、卓越、大百汇三大投资商携手,实力品牌著定湾区标杆

·大著作:全球100+家顶级设计团队联袂匠造

·大风范:国际设计团队L&O担纲,罕有干挂石材立面,百年经典历久弥新

大格局:超百米奢阔楼间距,尽揽城市全景,CBD顶豪绝版奢适体验

·大气度:约10m挑高南北双堂,凤舞九天气自显,龙凤呈祥双辉映

【中心都会,无界潮流】
·约140万㎡全球都会新中心,国际潮流事件发生地

·双龙起舞城市地标——380m大百汇广场
·深南大道封面——金地中心
·约29万㎡潮奢商业——卓悦中心,“居住、购物、办公、社交、逛街等一站式高效运转”的都会生活;《预言者》、《云樽》、《燕归巢》等国际大师定制艺术品,文天祥纪念馆传承岗厦文天祥文化与精神


【中心礼遇,无界尊崇】
金燕尾全球高定服务,尽享中心尊崇之度
·金地物业旗下高端服务品牌荣尚荟,引入金燕尾管家服务体系
·6大私人服务一键定制,国际化资源落地能力
·全方位保障客户安全、舒适、私密、尊享的居住空间

【中心精粹,无界繁盛】
城市精粹一公里,国际级完美都会生活链
·九大功能中心:行政·文化·金融·交通·会展·购物·酒店·公园·豪宅


【中心区位,无界未来】
位于全国“含金量最高”的中央商务区——福田CBD,全球唯一“行政+金融+科技”三核中心
·行政中心:深圳“首善之区”,功能最核心、经济最发达、民生最幸福、文化最繁荣、环境最优美;金融中心:福田地均GDP、地均税收,连续14年位居深圳首位

科技中心:三大新引擎赋能,打造首善之区高质量发展的“发动机”
新引擎一:河套深港科技创新合作区
香港全力推进“北部都会区”建设,深圳多区积极对接发展政策,河套深港创科园按下融合加速键。150+个高端科创项目加速落地;10+个优质科研项目进驻河套合作区;24个港澳创业团队进驻孵化加速平台,产生知识产权203项。优质项目,5所香港高校9个项目均已落地。
新引擎二:香蜜湖新金融中心
打造国际风投创投街区,到2025年将实现超10家行业前100创投机构,50家QFLP、QDIE试点机构,撬动20个战略性新兴产业和8大未来产业等关键领域。成就服务全国、影响全球的金融高地。
新引擎三:环中心公园活力圈
公园与城市高度融合的发展新模式,打造国际化城市新客厅。
·2023深圳时装周福田会场,成为深圳时尚消费中心城区;
·特区40周年&建党100周年灯光秀专场、2022年北京冬奥会开幕式分会场,国际大事件发生地。

【中心枢纽,无界湾区】
咫尺超级枢纽,香港-福田高效联动,一日双城
·2大综合交通枢纽(福田高铁站、岗厦北交通枢纽)
·2大超级口岸(福田口岸、皇岗口岸)
·2条城市东西干道(深南大道和滨河大道)+8条地铁线


岗厦北超级枢纽4线地铁汇合,将CBD的地标群通过地下交通联通成网络,“轨道交通”与“城市空间”完美结合
协同福田枢纽,两大超级枢纽,成就CBD高效生活图鉴
户型鉴赏:1栋C座39-40F

1栋D座40-41F


✪✪深圳中心天元售楼处电话:400-186-1314转5555【售楼中心】
✪✪售楼处24小时电话-地址-位置-价格-开发商-户型图等楼盘详情介绍
✪✪给您有效答复—4 0 0 - 1 8 6 - 1 3 1 4 转 5555—节省您的宝贵时间
^^售楼处1v1销售顾问给您解答!请预约参观!给您最新价格优惠^^
免责声明:本文来源于网络!如无意中侵犯了某方的知识产权,告之即删。