深圳中粮福田大悦广场
售楼处电话400-186-1314转6000【售楼中心】
24小时热线◆温馨提示:看房需提前预约
售楼处电话400-186-1314转6000【售楼中心】
〢尊享售楼处🍂销售专业讲解〢
◆在售房源户型价格详询售楼处〢一对一热情服务


开发商简介
中粮集团,实力央企,连续28年入围《财富》世界500强,2022年名列第91位,实力卓然。致力以央企担当,保交付、保品质、保稳定。

项目区位
中粮·福田大悦广场,位于福田中轴,紧邻深圳三大主干道之一的北环大道,高端研发办公、总部大楼、菁英新贵住所、社区配套商业于一体,擎领福田芯商务发展格局。

交通配套
高效地铁、双枢纽、双口岸、四大主干道
动脉地铁▪︎咫尺北环大道,与新洲干道交汇;约900米可达9号线下梅林站,高效换乘2、4、10号线,湾区出行迅捷无比。
轨道口岸▪︎享福田、皇岗双口岸,联动福田站、深圳北站双高铁,链接深港,对话世界。

商业配套
百万繁盛商圈▪︎卓悦汇、佐阾虹湾、卓悦中心、皇庭广场……
6大福田旗舰▪︎深圳音乐厅、深圳少年宫、关山月美术馆、深圳图书馆、深圳博物馆、深圳市当代艺术与城市规划馆。
2大梅彩地标▪︎深圳文学艺术中心(规划中)、国际体育文化交流中心(规划中)。

生态配套
三山二水三大公园,尽享优质办公环境
景观优越,坐拥塘朗山、梅林山、莲花山等自然天地,南北户型均有极佳景观视野,享受福田区优越办公环境。

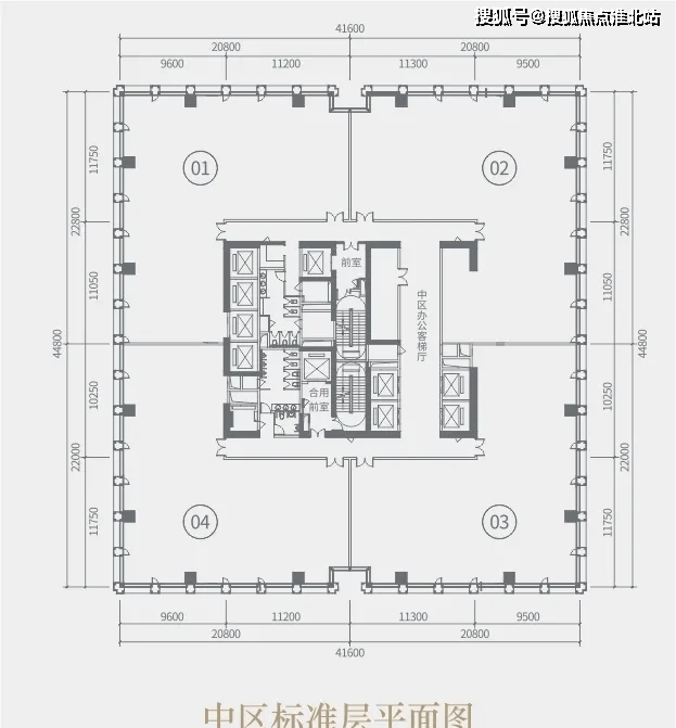
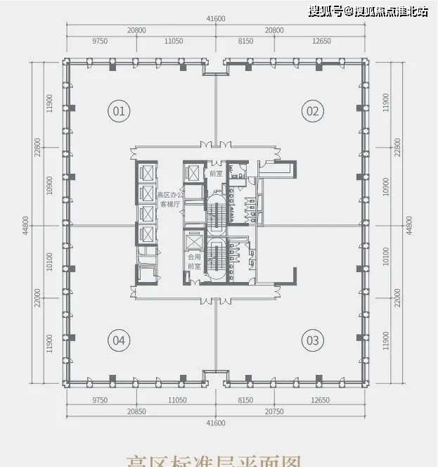
项目平面图



深圳中粮福田大悦广场售
售楼处电话400-186-1314转6000【售楼中心】
线上预约——尊享优价——售楼处中心——线上唯一售楼处
售楼处电话400-186-1314转6000【售楼中心】
专业的顾问 ——1对1的服务讲解——让您至享而归
售楼处电话400-186-1314转6000【售楼中心】
免责声明::本人如无意中侵犯了某方知识产权,告诉即删
告之即删