【半岛1号】
建面约78-365㎡高层/别墅
城芯百万大盘 万名业主睿选
三大商圈环绕 举步半岛学校
百万方体育公园 棕榈岛高尔夫景观
城芯唯一低密住区 中心区最高性价比
项目简介:
半岛1号位于粤港澳大湾区惠州惠阳中心区,毗邻惠阳区政府,门前依傍着天然的淡水河、半岛文化体育公园,高尔夫球场,城市绿肺相拥;
—【项目基本信息】—
项目总占地面积约100万平方米,建面120万㎡,容积率仅为1.2,是惠阳中心区首席低密度成熟大盘。
项目一共分12期开发,目前1期、2期、3期、4期、5期、11期和8期已经开发出售,居住氛围非常浓厚。半岛1号6期位于项目的北侧,占地24644㎡
,容积率2.57,主打高层业态产品;半岛1号10期位于项目的中部,占地面积72202㎡,容积率0.73,主打别墅业态产品;整体建筑和园林规划为西班牙风格,可以说是最具风情的组团。
【必买半岛1号的8大理由】
1、17载百万大盘
半岛1号经17载时光淬炼,已积淀成为涵盖别墅、洋房、高层、商业的百万大盘。目前已有近万名业主入住,是不可多得的湾区宜居大盘。
2、城芯中轴席位
半岛一号地处惠阳区政府北侧,与惠阳区政府仅一步之隔,占据城中正席;淡水河环绕,隔离城市喧嚣,繁华中独享宁静,离尘不离城,是城芯难得的静谧住区。
3、路网齐全深港速达
半岛1号地处交通枢纽处,约1公里淡水出口直通深汕高速,惠大高速、长深高速;多条线路直达高铁站惠州南站;出门即城市主干道,出行畅达无阻。
4、万象繁华尽揽
天虹商场、英之皇、天安大洋广场以及家乐福等大型商业在其左右;约2公里有惠阳三和医院、惠阳中医医院等各大医院为健康保驾护航;举步即达约100万㎡半岛体育文化公园、棕榈岛高尔夫、淡水河畔。
5、一站式菁英教育
9年制公立学校惠阳半岛学校、半岛崇雅实验幼儿园、半岛1号8期幼儿园、半岛1号11期幼儿园和崇雅艺术教育中心就在社区内,孩子步行即可享受一站式全优基础教育。孩子成长不离家,父母自然安心。
6、醇美低密住区
17年时光积淀,项目内生长十余年的园林,丰茂的林荫大道,依地势打造出静美内湖,城市中奢享出则繁华,入则宁静的纯水岸悠美住区,如同把家搬进公园里。
7、西班牙风情园林
遵循西班牙经典园林设计,在充满异域风情的园区里来一次慢跑;在铺满阳光草坪与孩子嬉戏;在休闲区的长椅上聊天或者发呆;享受西班牙风情园林带来的自由与浪漫。

8、6/10期大作 倾力呈献
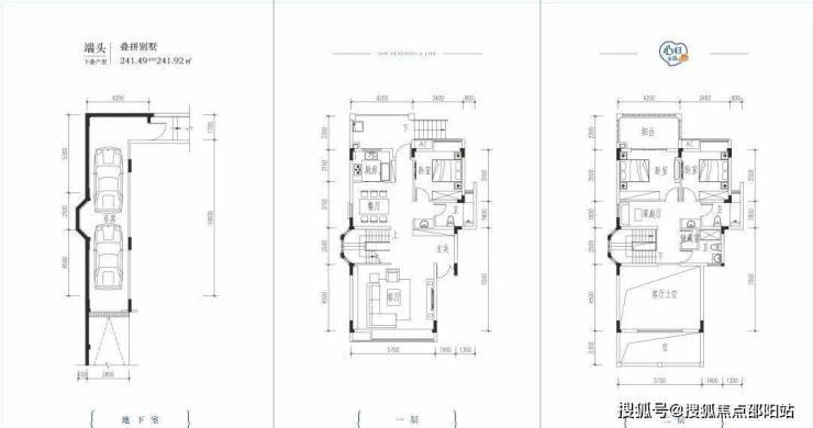
半岛1号6/10期品质升级力作,为城市菁英量身打造舒适的居住空间,产品系涵盖建面约78-142㎡观景高层、建面约235-399㎡湖岛别墅。
【6期在售产品】👉建面约78-122㎡景观高层
78两房一卫 8360-8700
94三房南北通 两卫 7830-8300
98三房朝南两卫8200-8500
113四房两卫8206-8400
118四房两卫7980-8400
毛坯❗️现房❗️
首付2-3万 ➕3万可任选车位产权证
👉样板房实景图
(98㎡样板房实景图👇 )
(118㎡样板房实景图👇 )
(122㎡样板房实景图👇 )
【10期在售产品】👉建面约235-399㎡湖岛别墅(含叠拼、双拼产品)
半岛1号 别墅特惠
城芯珍藏 别墅现房
约235-395㎡叠拼-联排-双拼
折后特惠总价278-707万
单价10988元/㎡起
仅限2️⃣0️⃣套年终特惠福利
⭐️中心区地段 🔝压轴珍藏
⭐️成熟大社区 公园旁宜居
⭐️约0.73容积率纯别墅组团
——折后特惠总价——
✔️下叠带花园:约235平,总价约298万
✔️上叠带露台:约253平,总价约278万
✔️联排中间位:约275平,总价约363-373万
✔️联排端头位:约343平,总价约545-575万
✔️双拼:约395平,总价约682万-707万
👉样板房实景图

🏆【必买半岛1号的8大理由】🏆
💎①:18载 城央百万大盘经18载时光淬炼,涵盖别墅、洋房、高层、商业的多业态百万醇熟大盘。近万名业主入住,湾区不可多得的宜居大盘。
💎②:城芯中轴 低密住区项目地处惠阳区政府北侧,约1.2公里惠阳区政府,占据城中正席;淡水河环绕,离尘不离城,繁华中独享宁静,是城芯难得的静谧住区。
💎③:1公里高速口 深港速达项目地处交通枢纽处,出家门即城市主干道,约1公里淡水出口直通深汕高速,惠大高速、长深高速;多条线路达高铁站惠州南站,一站深圳,两站香港;约6公里深圳地铁沙田站(在建中),高速、高铁、地铁出行便捷,深港速达。
💎④:商圈环绕 繁华尽揽项目周边天虹商场、英之皇、天安大洋广场以及家乐福等大型商业;约2公里有惠阳三和医院、惠阳中医医院等各大医院为健康保驾护航;近享约100万㎡半岛体育文化公园、棕榈岛高尔夫、淡水河畔环境资源,配套丰富。💎⑤:邻距离九年制公立半岛学校9年制公立学校惠阳半岛学校,社区内半岛崇雅实验幼儿园、半岛1号8期幼儿园、半岛1号11期幼儿园,步行即享受全优基础教育。孩子成长不离家,父母自然安心。
💎⑥:静美内湖 醇美住区18年时光积淀,项目内十余年繁茂林荫大道,依地势打造出静美内湖,城市中奢享出则繁华,入则宁静的纯水岸悠美住区,如同把家搬进公园里。💎⑦:西班牙主题园林遵循西班牙经典园林设计,在充满异域风情的园区里慢跑;在铺满阳光草坪与孩子嬉戏;在休闲区的长椅上聊天或者发呆;享受西班牙风情园林带来的自由与浪漫。
💎⑧:6/10期新作 倾力呈献半岛1号6/10期品质升级力作,为城市菁英量身打造舒适的居住空间,产品系涵盖建面约78-122㎡观景高层、建面约235-399㎡湖岛别墅。
🏆【半岛1号实景图】🏆
【半岛1号实景图】