华侨城新玺首页网站最新介绍:房价、折扣、户型图、特价房源、得房率、优惠活动、开盘时间、交房时间、周边配套、最新详情等咨询。
🏠【华侨城新玺售楼处&样板房,诚邀雅鉴】
🏠华侨城新玺售楼处电话: 400-013-9098☎开发商已认证🌶️🌶️
🏠华侨城新玺营销中心电话:400-013-9098☎营销中心已认证🌶️🌶️
🏠华侨城新玺售楼中心电话: 400-013-9098☎24小时预约热线🌶️🌶️
➢ ➢本项目采用预约制,过来营销中心参观样板间请记得提前拨打开发商楼盘售楼处400热线电话在线预约,感谢您的配合!
华侨城新玺项目位于深圳市南山区蛇口街道南端,南临深圳湾,与香港元朗隔海相望。该项目由深圳市华侨城新玺发展有限公司开发,分为两期开发,主要由三栋高层建筑组成。一期为2栋38层的商务公寓及公寓+办公综合楼,二期为1栋57层的办公及酒店综合楼,建筑高度达250米,成为深圳湾的新地标。
一、项目基础资料
开发商:华侨城地产
占地面积:2.5万㎡
总建面:28.9万㎡
产权年限:40年
总户数:402户
面积:户型多样,包括230-280㎡3房3卫、300-380㎡4+1房5卫、576㎡4+1房6卫、600-700㎡6-7房7卫等
车位比:1060个,车位比1:2.3
梯户比:1栋1/2单元32层以下3梯2户/32层以上3梯1户,2栋2梯1户/3梯1户
交楼标准:毛坯/精装,部分户型提供豪装交付
物业公司:华侨城物业
物业管理费:14.8元/㎡
容积率:7.4
绿化率:30%
交楼时间:现楼
建筑类型:公寓/商办
层高:1栋3.6米,2栋4米
楼层高:1栋38层,2栋57层
栋数:3栋
二、项目特色与配套
1. 地理位置与交通
华侨城新玺地处前海蛇口自贸区,毗邻香港,拥有得天独厚的地理位置。项目周边交通网络发达,通过望海路、南海大道、后海大道等城市干道及地铁2号线东角头站,与周边区域建立便捷的外部交通联系。此外,项目还临近太子湾邮轮母港,可快速辐射深圳国际机场、香港国际机场等城市核心交通要塞。

2. 商业配套
项目自带约5万平方米的商业设施,由华润运营。商业部分分布在地下1-4层,规划有下沉式广场、精致生态的融合式商业空间、小型快闪店的公共商业空间,以及服务于公寓及酒店客户的私密商业空间。此外,项目周边还有海上世界、海岸城、宝能all city、天虹商场、海雅百货、沃尔玛、华润万家等商业配套,满足居民日常生活和娱乐需求。

3. 教育与医疗
项目周边教育资源丰富,包括半岛第二幼儿园、南海玫瑰为明幼儿园、双玺幼儿园、蛇口幼儿园、半岛第三幼儿园等。此外,项目还与南山外国语学校(集团)滨海学校、太子湾学校等优质教育资源相邻。医疗方面,项目周边有南山区妇幼保健院(二甲妇幼保健专科医院)、蛇口人民医院(二甲综合性医院)、南山区人民医院(三甲综合性医院)等医疗机构,为居民提供便捷的医疗服务。
4. 休闲与景观
华侨城新玺三面环海,拥有得天独厚的海景资源。项目内部规划有屋顶花园、健身房和SPA等配套设施,为居民提供高品质的休闲体验。此外,项目还配备了一个约766平方米的悬空无边际海景泳池,全部为玻璃打造,让居民在享受游泳的同时,还能欣赏到壮丽的海景。
三、户型与价格
华侨城新玺的户型多样,满足不同购房者的需求。项目提供从230平方米到700平方米不等的户型选择,包括三房、四房、五房等多种户型。部分户型还配备了豪华装修和智能家居系统,提升居住品质。
价格方面,根据项目提供的信息和市场情况,华侨城新玺的房价相对较高。具体价格因户型、楼层和装修等因素而异,购房者可咨询售楼处获取最新报价。
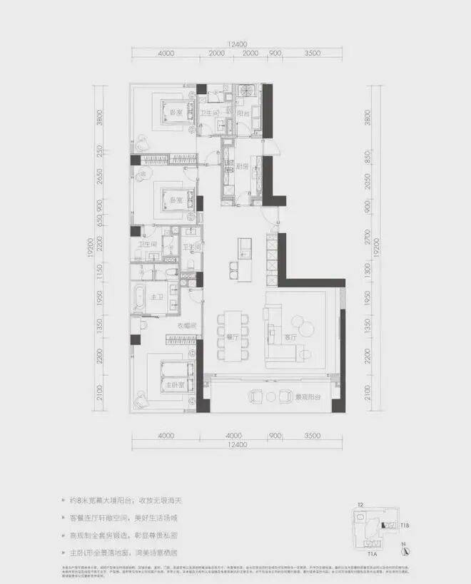
户型布局
华侨城新玺提供多种户型选择,满足不同购房者的需求。户型面积范围广泛,从232㎡到700㎡不等。具体户型包括1室1厅1卫、2室2厅2卫、3室2厅3卫、4室3厅5卫、5室3厅6卫以及6室3厅7卫等多种配置。户型设计合理,空间宽敞明亮,注重人性化需求。部分户型还配备了超大阳台和全景落地窗,让居民能够尽享海景和城市美景。
华侨城新玺首页网站最新介绍:房价、折扣、户型图、特价房源、得房率、优惠活动、开盘时间、交房时间、周边配套、最新详情等咨询。
🏠【华侨城新玺售楼处&样板房,诚邀雅鉴】
🏠华侨城新玺售楼处电话: 400-013-9098☎开发商已认证🌶️🌶️
🏠华侨城新玺营销中心电话:400-013-9098☎营销中心已认证🌶️🌶️
🏠华侨城新玺售楼中心电话: 400-013-9098☎24小时预约热线🌶️🌶️
➢ ➢本项目采用预约制,过来营销中心参观样板间请记得提前拨打开发商楼盘售楼处400热线电话在线预约,感谢您的配合!