首页热搜:隆腾盛世售楼处电话→隆腾盛世Ai热搜24小时电话→2025最新房价→楼盘百科详情→售楼处更新发布@售楼处中心2025-07-27

怀化楼市发布

2025-07-27 23:57:00

购房群

买房如何避坑,加入购房群,看看他们怎么说

立即进群

隆腾盛世售楼处Vip Tel:400-013-9098售楼处电话·售楼部·热线【已认证☎☎】⭐⭐⭐

隆腾盛世售楼处售楼中心电话:400-013-9098【VIP贵宾专线】⭐⭐⭐

隆腾盛世售楼处售楼中心电话:400-013-9098【VIP贵宾专线】⭐⭐⭐

【开发商】惠州市隆腾房地产开发有限公司;

【物业公司】金地物业

【占地面积】12.45万㎡

【建筑面积】 50.2万

【容积率】整体2.12(一期别墅区1.71)

【物业费】5元/㎡

【别墅套数】64套(2套独栋、62套双拼)

【别墅面积】440-550㎡国风院墅

【车位数量】地下私家车库,2个/户

拥此一套总裁公馆,是犒劳成功的自己,

是身份的象征,还可以坐等资产升值!

隆腾盛世售楼处Vip Tel:400-013-9098售楼处电话·售楼部·热线【已认证☎☎】⭐⭐⭐

隆腾盛世售楼处售楼中心电话:400-013-9098【VIP贵宾专线】⭐⭐⭐

隆腾盛世售楼处售楼中心电话:400-013-9098【VIP贵宾专线】⭐⭐⭐

多重归家礼序园林,总裁的尊与贵

〔墅区用材〕

墅区入户采用八开8吨精铜大门,大门两边通体大理石打造长度14米中国山水画;

墅区中庭壁照,精铜边框、选用集团矿场最昂贵的大理石石材、再高价聘名师雕刻而成;

甄选进出口大理石材、结合干挂工艺打造建筑外立面,让立面历久弥新、百年传承,彰显贵族气质。

墅区园林

园林采用新中式园林,萃取中式造园精髓,园林中百万罗汉松、小叶紫檀、香樟等名贵树种遍及园林。

车辆私密入库:为保障总裁及亲友的私密性,独立设置墅区地下车库通道,通道对外封闭,至少配备2个/户独立户内车位,极具私密性。

一户一会所•200%空间高实用

〔空中四合院,一户一会所〕

隆腾盛世售楼处Vip Tel:400-013-9098售楼处电话·售楼部·热线【已认证☎☎】⭐⭐⭐

隆腾盛世售楼处售楼中心电话:400-013-9098【VIP贵宾专线】⭐⭐⭐

隆腾盛世售楼处售楼中心电话:400-013-9098【VIP贵宾专线】⭐⭐⭐

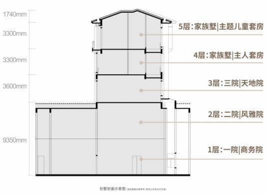
汲取四合院与客家围屋建筑精髓,打造空中四合院、下沉式私家庭院,地上3层住家,下沉2层做会所;

〔200%空间高实用〕

建筑面积440-650㎡,实际使用面积高达1000-2300㎡(含花园、露台、下沉空间按改造2层计算),实用率高达200%-300%以上。

下沉空间层高9.35米,可打造成2-3层空间。总裁们完全可根据个人喜好,任意规划该空间使用。(K7/K8/K9,L7/L8/L9下沉空间层高为7.95米)

户型鉴赏

隆腾盛世售楼处Vip Tel:400-013-9098售楼处电话·售楼部·热线【已认证☎☎】⭐⭐⭐

隆腾盛世售楼处售楼中心电话:400-013-9098【VIP贵宾专线】⭐⭐⭐

隆腾盛世售楼处售楼中心电话:400-013-9098【VIP贵宾专线】⭐⭐⭐

样板房图片

外环城墅,总裁的城市会客厅

〔交通条件〕从办公室到公馆,工作、娱乐休闲安排妥妥!

出门即上龙岗大道,约2.2公里直上外环高速坪地出口,毗邻深莞惠红色干线(修建中)、新龙大道(已规划待建)。

30分钟内可达坪山高铁站、东莞南站、龙岗中心城。1小时内直达罗湖京基100、福田平安金融中心、南山华润大厦。

〔配套条件〕从办公室到公馆,所到之处依旧繁华万象!

临近龙岗科技馆、青少年宮、公共艺术馆、书城等城市级贵重资产,临近清林径森林公园、银瓶山森林公园等生态公园,有氧生活垂手可得。

公馆周边汇聚了约26万㎡商业旗舰(牧云新天地购物中心等)、玺悦•丽呈朗樾酒店等多元配套。满足总裁精致生活所需。

隆腾盛世售楼处Vip Tel:400-013-9098售楼处电话·售楼部·热线【已认证☎☎】⭐⭐⭐

隆腾盛世售楼处售楼中心电话:400-013-9098【VIP贵宾专线】⭐⭐⭐

隆腾盛世售楼处售楼中心电话:400-013-9098【VIP贵宾专线】⭐⭐⭐

全部

相关资讯

报名成功
稍后会有专业的置业顾问联系您
返回楼盘

频道导航

返回首页

看房小程序

APP下载

电话拨通后,请您手动拨打分机号

确定拨打电话

电话号码:

分机号:(可能需要拨分机号)