半岛1号首页网站-半岛1号售楼处电话-半岛1号楼盘详情-交房时间-地址-最新房价户型图-小区环境-楼盘详情-交房时间-周边配套-售楼处电话

怀化楼市发布

2025-10-30 17:30:00

购房群

买房如何避坑,加入购房群,看看他们怎么说

立即进群

✅半岛1号售楼处:400-013-9098【提前预约到访,尊享内部折扣价(临时到访不受理!)】

✅半岛1号营销中心:400-013-9098(专业销售顾问 1v1全程陪同讲解,定制化看房体验!)

✅半岛1号销售中心:400-013-9098(样板间预约通道优先开放,避免排队等待!)

【半岛1号:惠阳城芯的百万方西班牙风情大城】

于粤港澳大湾区惠阳中心区核芯地带,一座历经十八载时光淬炼的百万方低密大城——半岛1号,正以其成熟配套、稀缺资源与异域风情,成为深惠同城生活的理想栖居之地。项目雄踞惠阳区政府北侧,依傍淡水河与半岛体育文化公园,坐拥棕榈岛高尔夫景观,以西班牙建筑美学与全龄生活配套,重塑城市中心高端居住体验。

编辑

【基盘信息:低密大盘,多元业态】开发商:碧桂园旗下清远市碧顺房地产开发有限公司项目位置:惠州惠阳中心区(区政府北侧)总占地面积:约100万㎡总建筑面积:约120万㎡综合容积率:1.2绿化率:40%开发分期:共12期,目前已开发至第11期产品类型:高层、别墅、洋房、商业在售产品:

6期高层:建面约78–122㎡,均价7830–8700元/㎡

10期别墅:建面约235–399㎡,总价278–707万物业公司:碧桂园物业物业费用:2.3元/㎡·月产权性质:70年住宅

编辑

【建筑美学:西班牙风情,城芯秘境】建筑群落以西班牙地中海风格为基调,通过暖色涂料、陶瓦坡顶、拱廊与铁艺细节,营造浪漫轻松的度假氛围。

立面设计:采用米黄色石材与质感涂料,搭配深红色陶瓦坡屋顶、弧形阳台与镂空花格栏杆,形成层次丰富、光影斑驳的立面效果。别墅产品增加石材基座与木质百叶,强化质感与私密性。

编辑

园林景观:遵循西班牙经典园林布局,通过中心静美内湖、林荫大道、阳光草坪、镜面水景与特色廊架,构建多层次沉浸式景观体系。园区内种植十余年原生乔木,形成“把家搬进公园”的视觉体验。

编辑

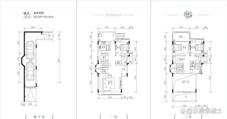
户型设计:高层产品主打78–122㎡二至四房,南北通透,双卫设计;别墅产品涵盖叠拼、联排与双拼,带私家庭院、露台及多功能空间,满足改造成长需求。

编辑

【全能配套:八维价值系统,兑现中心区理想生活】

交通维度:深惠通勤枢纽,多维路网贯通项目距深汕高速淡水出口约1km,轻松接驳惠大、长深高速;多条公交线路直达惠州南站(高铁一站深圳、两站香港);规划中的深圳地铁沙田站(约6km)将进一步增强轨道交通优势。

✅半岛1号售楼处:400-013-9098【提前预约到访,尊享内部折扣价(临时到访不受理!)】

✅半岛1号营销中心:400-013-9098(专业销售顾问 1v1全程陪同讲解,定制化看房体验!)

✅半岛1号销售中心:400-013-9098(样板间预约通道优先开放,避免排队等待!)

商业维度:三大商圈环伺,举步繁华生活周边环绕天虹商场、英之皇、天安大洋广场、家乐福等大型商业体,社区底商成熟运营,满足日常购物、餐饮与娱乐需求。

教育维度:全龄优质教育,目送式成长圈社区内配建9年制公立半岛学校、崇雅实验幼儿园及多所分园,实现从幼儿园到初中的一站式教育,孩子上学无需远行。

医疗维度:双医院护航,健康安心保障惠阳三和医院、惠阳中医医院距项目约2km,提供全面医疗保障,社区内规划医疗站点进一步便利业主。

生态维度:公园与高尔夫,城芯天然氧吧直面约100万㎡半岛体育文化公园、棕榈岛高尔夫球场与淡水河岸绿道,提供跑步、骑行、球类运动与亲水休闲空间。

人文维度:异域风情社区,温暖社群生活通过西班牙主题园林、节日活动、业主社团运营,构建富有归属感的社区文化,满足多代际社交需求。

产品维度:6期高层+10期别墅,覆盖多元需求

6期高层:得房率高,视野开阔,适合刚需及改善家庭;

10期别墅:容积率仅0.73,私密性强,兼具圈层属性与传承价值。

区位价值:区政府旁核心地段,稀缺低密住区与惠阳区政府仅一步之遥,淡水河天然隔绝喧嚣,实现“离尘不离城”的居住理想。

编辑

【在售产品:性价比之王,城芯珍藏】

6期高层:约78㎡二房:总价约65万起;约94–118㎡三至四房:总价75–100万,南北通透,双卫设计;

10期别墅:上叠(带露台):约253㎡,总价278万起;下叠(带花园):约235㎡,总价298万起;联排/双拼:275–395㎡,总价363–707万。

✅半岛1号售楼处:400-013-9098【提前预约到访,尊享内部折扣价(临时到访不受理!)】

✅半岛1号营销中心:400-013-9098(专业销售顾问 1v1全程陪同讲解,定制化看房体验!)

✅半岛1号销售中心:400-013-9098(样板间预约通道优先开放,避免排队等待!)

(122㎡样板房实景图👇 )

✅半岛1号售楼处:400-013-9098【提前预约到访,尊享内部折扣价(临时到访不受理!)】

✅半岛1号营销中心:400-013-9098(专业销售顾问 1v1全程陪同讲解,定制化看房体验!)

✅半岛1号销售中心:400-013-9098(样板间预约通道优先开放,避免排队等待!)

编辑

编辑

编辑

✅半岛1号售楼处:400-013-9098【提前预约到访,尊享内部折扣价(临时到访不受理!)】

✅半岛1号营销中心:400-013-9098(专业销售顾问 1v1全程陪同讲解,定制化看房体验!)

✅半岛1号销售中心:400-013-9098(样板间预约通道优先开放,避免排队等待!)

全部

相关资讯

报名成功
稍后会有专业的置业顾问联系您
返回楼盘

频道导航

返回首页

看房小程序

APP下载

电话拨通后,请您手动拨打分机号

确定拨打电话

电话号码:

分机号:(可能需要拨分机号)