合生滨海城-(售楼处)合生滨海城售楼处:合生滨海城售楼处-楼盘详情-最新价格-户型图-容积率@售楼处地址!

怀化楼市发布

2025-09-10 17:58:00

购房群

买房如何避坑,加入购房群,看看他们怎么说

立即进群

合生滨海城售楼处24小时电话☎: 400-013-9098【售楼处认证】⭐⭐⭐⭐

合生滨海城营销中心24小时电话☎:400-013-9098【营销中心认证】⭐⭐⭐⭐

合生滨海城销售中心24小时电话☎:400-013-9098【销售中心认证】⭐⭐⭐⭐

编辑

编辑

编辑

编辑

编辑

合生滨海城售楼处24小时电话☎: 400-013-9098【售楼处认证】⭐⭐⭐⭐

合生滨海城营销中心24小时电话☎:400-013-9098【营销中心认证】⭐⭐⭐⭐

合生滨海城销售中心24小时电话☎:400-013-9098【销售中心认证】⭐⭐⭐⭐

编辑

左右滑动查看更多

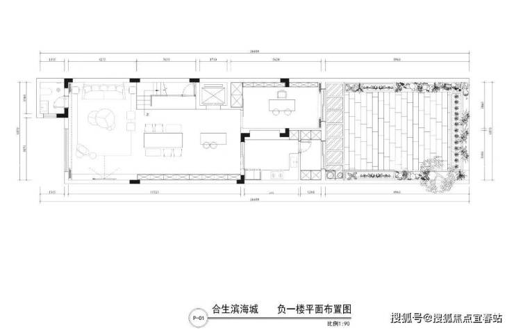
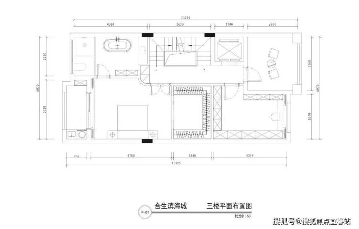
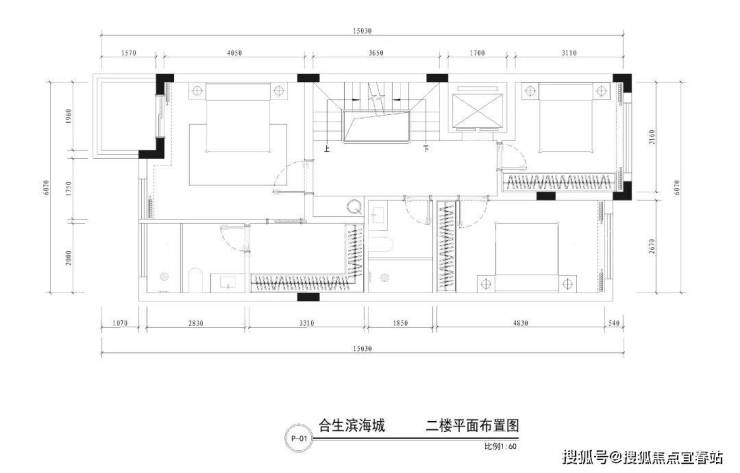
✔ 别墅共4层,根据 每层的优势特点,打造丰富的休闲空间,增加社交功能;

✔ 一楼客厅做挑空设计,开阔大气 ,餐厅增设水吧台,优化交互体验;

✔ 二、三楼分别有主卧、衣帽间、卫浴间,布局舒适,起居私密便捷;

合生滨海城售楼处24小时电话☎: 400-013-9098【售楼处认证】⭐⭐⭐⭐

合生滨海城营销中心24小时电话☎:400-013-9098【营销中心认证】⭐⭐⭐⭐

合生滨海城销售中心24小时电话☎:400-013-9098【销售中心认证】⭐⭐⭐⭐

全部

相关资讯

报名成功
稍后会有专业的置业顾问联系您
返回楼盘

频道导航

返回首页

看房小程序

APP下载

电话拨通后,请您手动拨打分机号

确定拨打电话

电话号码:

分机号:(可能需要拨分机号)