

✔ 别墅共4层,根据 每层的优势特点,打造丰富的休闲空间,增加社交功能;
✔ 一楼客厅做挑空设计,开阔大气 ,餐厅增设水吧台,优化交互体验;
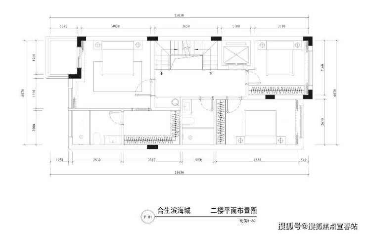
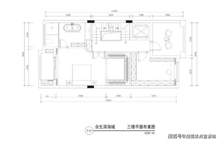
✔ 二、三楼分别有主卧、衣帽间、卫浴间,布局舒适,起居私密便捷;


✔ 别墅共4层,根据 每层的优势特点,打造丰富的休闲空间,增加社交功能;
✔ 一楼客厅做挑空设计,开阔大气 ,餐厅增设水吧台,优化交互体验;
✔ 二、三楼分别有主卧、衣帽间、卫浴间,布局舒适,起居私密便捷;