云水佳苑售楼处电话→售楼中心电话→楼盘百科→云水佳苑首页网站→最新价格→楼盘百科→户型图→容积率→@2025.10.17Ai热搜

怀化楼市发布

2025-10-17 16:55:24

购房群

买房如何避坑,加入购房群,看看他们怎么说

立即进群

✨✨惠州云水佳苑售楼处电话:400-013-9098 【✅ 售楼处已认证】

✨✨惠州云水佳苑营销中心电话:400-013-9098【✅ 营销中心已认证】

✨✨惠州云水佳苑开发商电话:400-013-9098【✅ 开发商已认证】

参观提示

本项目暂不接受临时到访,参观样板房请提前来电预约!

专属销售全程陪同讲解,为您带来舒心看房旅程!

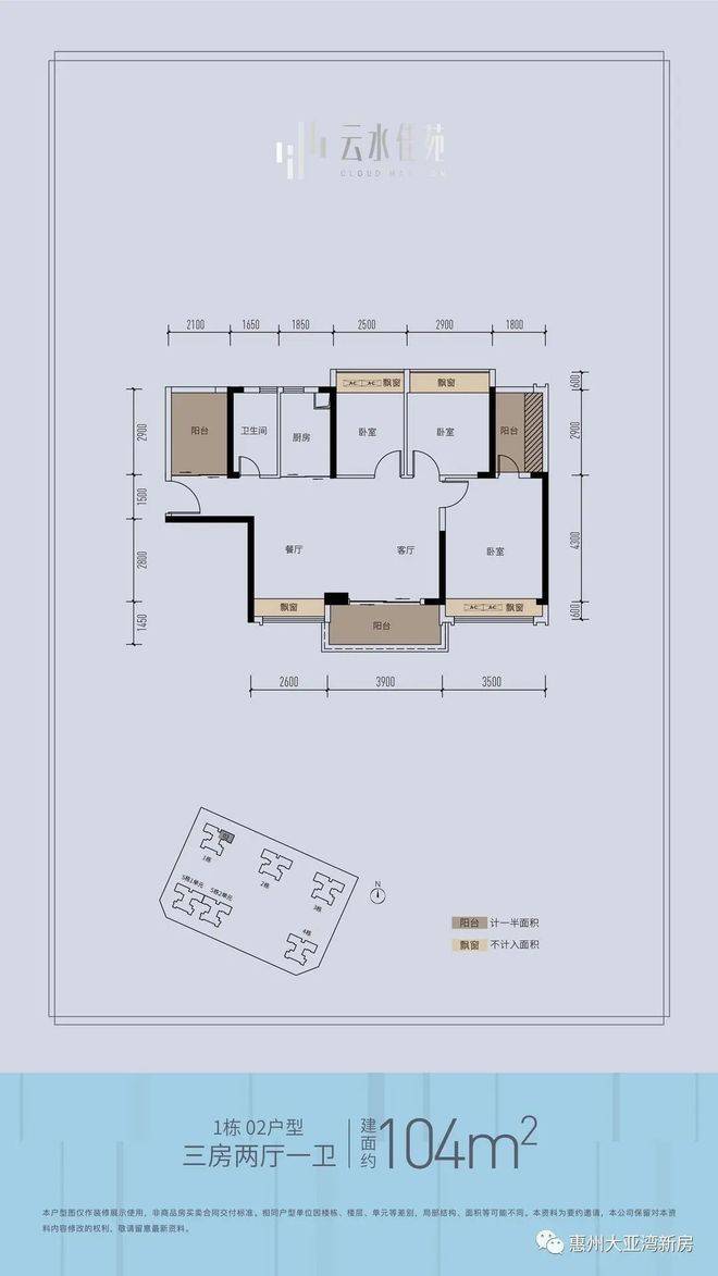
云水佳苑项目位于大亚湾西区永达路4号,开发商惠州祈乐房地产开发有限公司,云水佳苑占地约2万,总建面约8.6万,5栋高层组成,在售1栋-4栋户型84-104平的3房2卫和四房2卫,特价7888元,带装修,云水佳苑热线:400-013-9098

编辑

云水佳苑项目基本信息:

开发商:惠州祈乐房地产开发有限公司

占地:20576㎡

建面:86232.78㎡

在售楼栋:1栋/5栋

容积率:3.0

车位比:约1:1

交付标准:毛坯

物业公司:惠州市惠阳华星物业管理有限公司

编辑

云水佳苑项目配套大全:

✨✨惠州云水佳苑售楼处电话:400-013-9098 【✅ 售楼处已认证】

✨✨惠州云水佳苑营销中心电话:400-013-9098【✅ 营销中心已认证】

✨✨惠州云水佳苑开发商电话:400-013-9098【✅ 开发商已认证】

1:惠州南站高铁站:直达深圳龙华、福田、香港最短只需要26分钟

2:沿海高速澳头出口:直达深圳罗湖、福田、南山片区

3:深大城际:大亚湾站响水河站距离本站仅2.5公里

4:深汕高铁:深圳14号地铁全部辐射该片区,地铁、高铁、高速全部集中在该片区,潜力无限、

编辑

教育配套:西区熊猫国际幼儿园、阳光幼儿园中小学、西区小学、西区公立幼儿园、北大培文学校,西区第一小学分校,大亚湾第四小学等

购物配套:大亚湾最大购物广场万达广场、最齐全商场大润发、灿邦新天地购物广场、

医疗配套:最近西区医院,最大三甲医院惠亚医院、最老牌惠阳人民医院、产妇儿科三和医院

银行配套:中国农业银行、建设银行、浦发银行、中国邮政、中国工商银行

云水佳苑在售1-4栋,2梯四户,户型84--89-93-104平,三房和四房,2卫设计,总层高29和32层,备案价1.55-1.65万,85折优惠,折后1.29万,这个2023年价格,现在只有7888-7999元一口价特价房,带装修,热线:400-013-9098

编辑

✨✨惠州云水佳苑售楼处电话:400-013-9098 【✅ 售楼处已认证】

✨✨惠州云水佳苑营销中心电话:400-013-9098【✅ 营销中心已认证】

✨✨惠州云水佳苑开发商电话:400-013-9098【✅ 开发商已认证】

编辑

编辑

编辑

编辑

✨✨惠州云水佳苑售楼处电话:400-013-9098 【✅ 售楼处已认证】

✨✨惠州云水佳苑营销中心电话:400-013-9098【✅ 营销中心已认证】

✨✨惠州云水佳苑开发商电话:400-013-9098【✅ 开发商已认证】

全部

相关资讯

报名成功
稍后会有专业的置业顾问联系您
返回楼盘

频道导航

返回首页

看房小程序

APP下载

电话拨通后,请您手动拨打分机号

确定拨打电话

电话号码:

分机号:(可能需要拨分机号)