绿城逸庐(上海浦东绿城逸庐售楼处)首页网站-2025绿城逸庐房价_楼盘评测丨地址丨详情丨绿城逸庐售楼处电话丨楼盘百科

淮南楼市观察

2025-09-13 14:13:11

购房群

买房如何避坑,加入购房群,看看他们怎么说

立即进群

上海浦东绿城逸庐售楼处电话:400-9966-224【预约看房热线】绿城逸庐售楼处营销中心:400-9966-224绿城逸庐售楼处电话/地址☎:4009966224(开发商热线)如有问题欢迎来电咨询,专业一对一热情服务,让您用专业眼光去买房。最新消息:绿城中国30周年·张江低密作品——绿城·逸庐,预计本周过会,下周开启认购!项目实景示范区已开放,相当惊艳!

示范区实景视频,抢先看!

据悉:首批次将推148套建面约120-145㎡小高层,建面约208-216m²叠墅产品!

上海浦东绿城逸庐售楼处电话:400-9966-224【预约看房热线】绿城逸庐售楼处营销中心:400-9966-224绿城逸庐售楼处电话/地址☎:4009966224(开发商热线)

高层总价预计990-1700万,叠墅总价预计2600-3300万(具体以官方公布为准)

据爆料,项目可能还有部分总价9字头以下的非标户型房源,想捡漏的朋友,别错过!

小高层效果图及样板间视频:

高层建筑立面以金色阶梯为骨架,层叠檐角如思想灯塔般扬起,搭配通透的玻璃幕墙,极具现代审美

样板间实景:

样板间视频抢先看:

叠墅效果图及样板间视频:

上海浦东绿城逸庐售楼处电话:400-9966-224【预约看房热线】绿城逸庐售楼处营销中心:400-9966-224绿城逸庐售楼处电话/地址☎:4009966224(开发商热线)

叠拼以一轴五境多巷道,打造隐奢尊贵的仪式感,有露台、院子等,附赠空间非常充足!

样板房实拍:

至于项目的区位、产业及配套:

未来的浦东,不管10年还是20年,张江始终是核心,并且是无法替代的唯一真神。

上海浦东绿城逸庐售楼处电话:400-9966-224【预约看房热线】绿城逸庐售楼处营销中心:400-9966-224绿城逸庐售楼处电话/地址☎:4009966224(开发商热线)

其他区域一旦步入成熟,就意味着价值就此到顶。

但张江不同。

张江是上海以“集成电路、生物医药、人工智能”三大先导产业为核心的区域,产业规格之高,无出其右。

数据来源:浦东发布

这只是冰山一角,在软件与信息服务产业上,浦东软件园共有软件企业超1700家,从业人员超45000人(来源浦东软件园官网)。

新材料产业、航天航天等也皆处于全国龙头地位,不再赘述。

前沿产业+占全国超高比例的产值,决定张江科创霸主地位难以撼动,意味将持续吸引高知、高收入人才,所衍生的高端居住需求,将为张江、北蔡楔形绿地的房产市场带来源源不断的发展契机。

所以说,与张江一线之隔的地段,让北蔡楔形绿地在未来十年甚至数十年的时间中,都能维持着高姿态、高潜力、高价值。

北蔡楔形绿地是浦东烫金核心区域内,继陆家嘴、前滩、碧云、三林滨江之后,最后一块成片开发区域。

换句话说,这片区域是目前整个浦东的发展侧重点:必然拥有着目前浦东乃至上海最新的开发模式、建设理念以及资源倾斜。

这是浦东未来10年“更高标准”的支柱板块。

我简单提四点:

第一,目前张江科学城北蔡产业社区已经聚集了:中国铁建、国贸、绿城等众多一线实力房企了。另外,还有大量实力房企在等待后续的宅地出让。

上海浦东绿城逸庐售楼处电话:400-9966-224【预约看房热线】绿城逸庐售楼处营销中心:400-9966-224绿城逸庐售楼处电话/地址☎:4009966224(开发商热线)

一方面,一线房企共同发力,未来区域的发展上限和笃定性是非常强的。

另外一方面,未来整片区域清一色的高端豪宅,界面崭新、板块调性很高,圈层更纯粹、更统一,妥妥的新一代国际住区!

第二,目前,协和双语学校官宣入驻北蔡楔形绿地!

“协和教育”创始于1993年,秉持“融合中西,和谐发展”的核心价值,现已举办近40所幼儿园、10余所中小学、在校学生来自全球50多个国家和地区。

这所民办小学的能级和规格,相当出彩。

除此之外,项目旁边小学、中学规划也已出,在协和双语这样顶级的教育资源落地之后,公办学校的能级就更加让人期待了。

北蔡楔形绿地规划小学效果图,仅供参考

图片来源:https://www.pudong.gov.cn/zwgk/14523.gkml_ywl_gsxx_sjfags/2024/311/334002.html

(免责:本项目宣传中对项目周边教育资源的介绍,旨在协助提供地理位置等相关信息,并不视为本公司对就读学校作出承诺,学区划分等具体信息应以教育主管部门及办学方颁布的政策规定为准。)

第三,整个区域内的基础建设已提上日程,即将开启全面发展时代。

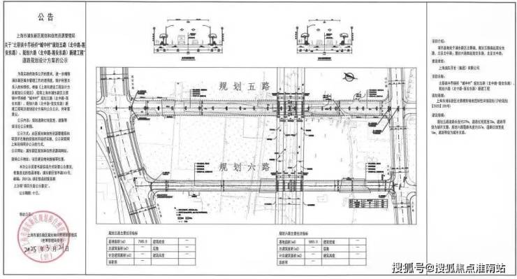
除了以上所说的,整个北蔡楔形绿地内的主干道,规划五路(北中路-莲安东路)、规划六路(北中路-莲安东路)新建工程等规划也都落地。

而这样的资源倾斜+成片开发模式,也证明了这个区域未来的生活方式&配套能级,非常值得期待!

现在轮到一线城市上海了,房价即使是上海都扛不住了! 但是这个不是无条件不限购,我看了条件还是比较严格的,分本地和外地人。 首先本地人 只要是本地户口,在外环外买房,不还二手房还是新房——随便买 但是在外环内限购2套 然后是外地人 外地人必须缴纳社保或者纳税一年以上,在外环外随便买,不限套数! 但是想在外环内买房还是比较严格的,必须缴纳社保或者纳税3年以上才行,而且只能买一套!2️⃣公积金变化 购买的房子必须是二星级以上的新建绿色建筑住房。公积金额度可以上浮15%,从160万提高到184万!

一、上海2025年8月最新限购政策汇总

外环外购房不限套数:对符合本市住房购买条件的居民家庭(包括本市户籍居民家庭、在本市连续缴纳社会保险或个人所得税满1年及以上的非本市户籍居民家庭),在外环外购买住房(含新建商品住房和二手住房)不限套数。

单身人士购房政策调整:成年单身人士(含沪籍和非沪籍)按照居民家庭标准执行限购政策。具体为:沪籍居民家庭/单身人士:外环外不限购,外环内限购2套;

非沪籍居民家庭/单身人士:社保/个税满1年可在外环外不限购;满3年可在外环内限购1套

崇明区:根据上海8月26日最新楼市政策,在崇明区购房参考外环外购房政策。只需在购房网签合同前1个月满足连续15个月累计12个月的上海的社会保险或者个人所得税即可购买崇明区住房,无需单独在崇明缴纳社保或者个税或者在崇明工作。

二、上海2025年8月最新购房商贷/公积金贷款政策

1、商业贷款政策(首套房/二套):

注意:根据最新政策,上海购房商业房贷利率不再区分首套住房和二套住房。

现阶段上海商贷利率执行情况如下:

首套:3.5%-45BP=3.05%

二套(主城):3.5%-5BP=3.45%

二套(临港、嘉定、青浦、松江、奉贤、宝山、金山):3.5%-25BP=3.25%

2、公积金贷款政策:

贷款额度提升:购买二星级及以上绿色建筑住房的,公积金最高贷款额度上浮15%

首套:160万元→184万元(多子女家庭可叠加至216万元)

二套:130万元→149.5万元

提取支付首付:支持提取本人及配偶公积金支付新建预售商品住房首付款

“又提又贷”:提取公积金支付首付不影响贷款额度计算

3、温馨提示tips:

二手房贷款“三价就低”

自2021年8月6日起,上海二手房房贷再出新规,执行“三价就低”:购房者申请贷款时,将从买卖合同价、交易中心核验价、银行评估价中,选择最低的一项,作为贷款申请房价标准。

三、上海2025年8月最新购房税费政策

非沪籍家庭优惠:首套房暂免征收房产税,第二套及以上住房给予人均60平方米免税面积扣除。

上海浦东绿城逸庐售楼处电话:400-9966-224【预约看房热线】绿城逸庐售楼处营销中心:400-9966-224绿城逸庐售楼处电话/地址☎:4009966224(开发商热线)如有问题欢迎来电咨询,专业一对一热情服务,让您用专业眼光去买房。

全部

相关资讯

报名成功
稍后会有专业的置业顾问联系您
返回楼盘

频道导航

返回首页

看房小程序

APP下载

电话拨通后,请您手动拨打分机号

确定拨打电话

电话号码:

分机号:(可能需要拨分机号)