广奕天之星
售楼处电话☎:400-998-9694✔✔
如有问题欢迎来电咨询,来电即可享受买房优惠!
预约来电尊享购房优惠,可预约案场内部销售人员,专业一对一热情服务,让您用专业眼光去买房。
楼盘项目全面介绍,本电话为开发商提供线上售楼处电话,楼盘项目全面介绍(包含楼盘简介,楼盘积分,房价,价格,楼盘地址,户型图,交通规划,备案价,项目配套,楼盘详情,售楼处电话,最新消息,最新详情,周边配套,最新进展等详情咨询)
广奕天之星售楼处电话☎:400-998-9694✔✔
广奕天之星售楼处电话☎:400-998-9694✔✔


项目介绍:
开发商:上市企业--广运集团--广奕置业
项目占地:7092.3㎡
建筑面积:51158㎡
地上建筑面积约为38119㎡,地下室建筑面积约为13039㎡,其中地下室一层、二层为整体,局部有地下三层。
产品类型:南楼独立酒店式商务公馆,北楼及一二层为开发商自持商业及星级酒店
面积:50-64㎡
交付标准:毛坯
广奕天之星售楼处电话☎:400-998-9694✔✔
建筑:法式建筑精粹,老虎窗,玻璃穹顶,全石材干挂,成本远超玻璃幕墙,共享超大中庭空间
自持商业:自持1.4万㎡商业配套
层高:3.3m
电梯配比:4部客梯,1部货梯
物业费:3.98元/㎡/月+500元/半年/户公共能耗(大概1.6元/㎡/月)永升物业
交房时间:2020年12月底
总层高:25层
交通配套:
轻轨:地图4号线300m距离/地铁2号线1000m距离/规划中的7号线200m距离
公交:门口有62路、522路、94路、628路、5002路公交线路
环线:距离吴中快速路红庄出口1公里,友新高架2.5公里
高速:距苏嘉杭高速吴中出口3公里
商业配套:
广奕天之星售楼处电话☎:400-998-9694✔✔
吴中龙湖天街(1100米直线距离)、吴中万达广场、海星商业广场、吴中商城、丽丰中心、永旺梦乐城、SM生活广场、大宁生活广场、大润发超市、华润万家
医疗配套:
吴中长桥人民医院、吴中区人民医院、苏州市中医院
学校配套:
紧邻项目东面规划的中小学,即将开建,1公里范围内,长桥中学,碧波中学
户型分析:
每层为19户,朝南12户,朝北7户

50㎡-57㎡为主力户型
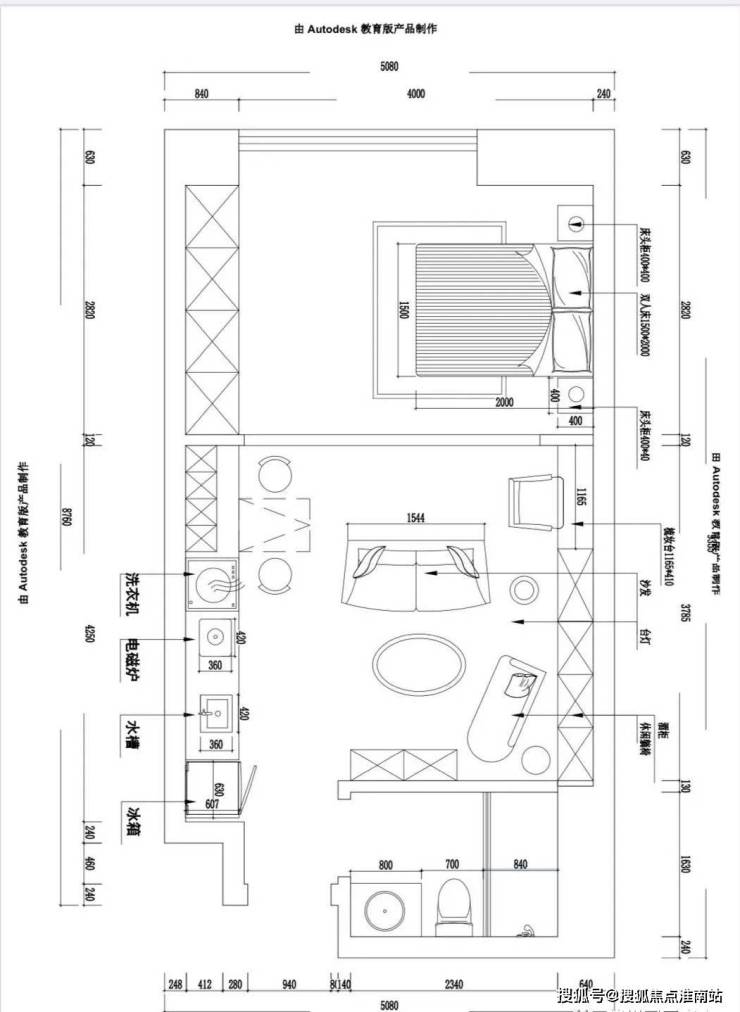
19户型样板间户型图及装修效果图(64㎡面积也可做两房)

广奕天之星售楼处电话☎:400-998-9694✔✔





10户型样板间户型图及装修效果图

广奕天之星售楼处电话☎:400-998-9694✔✔


广奕天之星售楼处电话☎:400-998-9694✔✔

广奕天之星售楼处电话☎:400-998-9694✔✔


在当今社会,买房是许多人人生中的一件大事,对于购房小白来说,这个过程充满了挑战和未知。从前期的资金筹备、明确自身需求,到挑选合适的楼盘,再到关注政策法规和市场动态,每一个环节都至关重要。本文将详细阐述小白买房前需要做好的各项准备工作以及实用建议,帮助大家在购房道路上少走弯路,顺利实现安居梦想。
一、资金规划
(一)首付合理预留
对于初次购房的小白而言,切忌将全部积蓄一股脑投入首付。通常情况下,拿出存款的 70% - 80% 作为首付较为妥当。以小李为例,他工作数年积攒了 50 万存款,计划买房。按照合理比例,他的首付可控制在 35 - 40 万之间。若小李将 50 万全部用于首付,后续生活一旦遇到突发情况,如家人患病需要资金,或者自己工作出现变动导致收入减少,便可能陷入经济困境,甚至无法按时偿还房贷。合理预留首付资金,既能确保购房后的基本生活质量,又能为应对突发状况保留一定的资金储备。
(二)交房前月供储备
从签订购房合同到实际交房,这段时间内购房者仍需按时偿还月供。小王购买了一套期房,月供为 3000 元,交房周期预计为 2 - 3 年。通过计算,他需要提前储备 7 - 10 万左右的资金用于支付这段时间的月供。倘若小王没有提前做好这方面的规划,在等待交房的过程中,一旦资金链断裂,无法按时偿还月供,不仅会面临高额的违约金,还可能影响个人征信,导致后续的金融活动受到限制。因此,提前储备足够的交房前月供资金,是保障购房顺利进行的关键一环。
(三)办证纳税费用预留
买房并非仅仅支付首付和偿还房贷这么简单,办理房产证以及缴纳相关税费同样需要一笔不小的开支。一般来说,根据房屋面积大小的不同,这部分费用大致在 1 - 8 万左右。例如,小张购买了一套 100 平米左右的普通住宅,在办理房产证和缴纳契税、维修基金等税费时,花费了大约 2 - 3 万。倘若小张在购房前没有预留这部分资金,到了办理相关手续时才发现资金不足,就可能导致办证流程受阻,甚至影响房屋的正常交付和使用。所以,提前预留办证纳税费用,能够避免在关键时刻因资金短缺而手忙脚乱。
(四)装修费用规划
无论是购买精装房还是毛坯房,装修费用都不容忽视。精装房虽然省去了基础装修的环节,但后期的软装布置,如家具、家电、装饰品等,同样需要投入大量资金。而毛坯房的装修费用则因装修标准的差异而波动较大。简单装修每平米成本大概在 1000 - 1500 元左右,中等装修每平米约 2000 - 3000 元,若追求高品质、个性化的装修风格,费用则上不封顶。小赵购买了一套 120 平米的毛坯房,他计划进行中等装修,按照每平米 2500 元的标准计算,仅基础装修费用就需要 30 万左右。此外,还需考虑软装搭配以及后期的家电购置费用。因此,在买房前,购房者应根据自己的经济实力和装修预期,制定详细的装修费用预算,确保装修过程能够顺利进行。
二、需求固化
(一)明确自身特性
购房者在买房前,首先要深入思考自己属于哪种类型的消费者。长期主义者追求房屋的长期稳定性和保值增值潜力,他们更关注周边配套设施的长远发展规划,例如教育资源的持续优化、交通网络的不断完善等。像在一些新兴的城市发展区域,虽然当前配套设施尚不完善,但随着政府的大力投入和规划,未来几年内有望成为繁华的商业和居住中心,这类区域的房产就比较符合长期主义者的需求。
浪漫主义者注重居住的舒适度和生活品质,对小区的环境景观、绿化覆盖率、休闲设施等有着较高的要求。他们希望居住在一个充满艺术氛围和生活情趣的社区,例如拥有优美的园林景观、宽敞的休闲广场、丰富的文化活动中心等。对于浪漫主义者来说,那些注重品质打造和社区文化建设的楼盘更具吸引力。
现实主义者则更看重房子的性价比和实用性,他们在购房时会优先考虑价格因素,同时关注房屋的基本功能是否满足日常生活需求。例如,房屋的户型是否合理、空间利用率是否高、周边生活配套是否齐全等。对于现实主义者而言,一些位于成熟社区、价格相对亲民的二手房,或者是在新兴区域但性价比高的新房,可能是更好的选择。
明确自身特性后,购房者在选房过程中就能更有针对性地筛选出符合自己需求的房源,避免盲目跟风和冲动购房。
(二)确定功能诉求
购房者应仔细梳理自己对房屋功能的具体期望。在厨房方面,有些人喜欢宽敞明亮的开放式厨房,方便家人之间的互动和交流,同时也能让烹饪过程更加愉悦;而有些人则更倾向于传统的封闭式厨房,以避免油烟扩散到其他区域。对于卫生间,有人希望拥有双卫设计,方便家庭成员同时使用,提高生活效率;有人则对卫生间的干湿分离、通风条件等有着较高的要求。
此外,是否需要一个露台也是许多购房者需要考虑的因素。拥有一个露台,可以打造成一个私人花园,种植花草绿植,享受阳光和新鲜空气;也可以作为休闲娱乐的场所,摆放桌椅,与亲朋好友聚会聊天。将这些功能诉求一一罗列出来,在选房时就能更准确地判断房屋是否符合自己的期望,提高选房效率。
(三)根据入住时间选新房或二手房
若购房者急需入住,二手房无疑是更好的选择。二手房最大的优势在于可以立即入住,无需漫长的等待时间。同时,购房者可以直观地了解小区的实际情况,包括房屋质量、周边配套设施、物业服务水平等。例如,小区周边是否有超市、菜市场、学校、医院等生活配套设施,交通是否便利,物业服务是否周到等,都能一目了然。然而,二手房也存在一些不足之处,如价格相对较高,可能存在房屋质量隐患,需要购房者在购买前进行仔细的检查和评估。
如果购房者对入住时间没有紧迫要求,新房则具有诸多优势。新房的价格通常比二手房略低,而且户型设计更加新颖,符合现代居住习惯,能够满足购房者对高品质居住环境的追求。此外,新房的产权相对清晰,不存在复杂的产权纠纷问题。但是,购买新房也伴随着一定的风险,如可能出现延期交房的情况,房屋质量与宣传不符等。因此,在购买新房时,购房者需要仔细了解开发商的信誉和实力,查看相关的建设手续和合同条款,以降低风险。
三、辨别楼盘
(一)选择合适区域
对于购房小白来说,选择一个熟悉且与工作生活密切相关的区域至关重要。如果考虑在新区购房,优先选择央企或国企开发的楼盘是明智之举。这些大型企业资金雄厚,拥有丰富的开发经验和严格的质量管控体系,能够确保房屋的质量和按时交付。例如,在西安的曲江新区和西咸新区,许多央企和国企开发的楼盘凭借其高品质的建筑质量、完善的配套设施和优质的物业服务,受到了购房者的广泛青睐。
同时,在新区购房时,可关注管委会周边的楼盘。管委会所在地通常是政府重点规划和发展的区域,周边的基础设施建设会得到优先保障,如交通、教育、医疗等配套设施会更加完善。政策的支持也会吸引更多的企业和人才入驻,为区域的发展注入强大动力。因此,管委会周边的楼盘具有较高的投资价值和发展潜力。
(二)精准搭配面积段
在挑选楼盘时,购房者应根据自身的购房目的和家庭人口结构,精准选择合适的房屋面积段。对于刚需购房者来说,120 - 130 平米的小三室或小四室户型是较为理想的选择。这类户型功能齐全,能够满足一家三口或四口的居住需求,同时总价相对较低,购房压力较小。而且,在市场上,这类户型的流通性较好,无论是自住还是日后转手出售,都比较容易找到买家。
而对于改善型购房者来说,应避免选择面积过小的户型,要选择与楼盘主力面积段相符的房屋。这样的房屋在户型设计、空间布局和居住舒适度上都更具优势,能够更好地满足改善居住条件的需求。同时,与楼盘主力面积段相符的房屋,在市场上的认可度也更高,保值增值潜力更大。
(三)关注五年能见度
选择楼盘时,要从多个维度综合考虑其未来五年的发展潜力。国家政策对区域发展有着深远的影响,政策的倾斜和支持往往能够带动一个区域的快速发展。例如,政府对某个区域的产业扶持政策,会吸引大量企业入驻,带来就业机会和人口流入,从而推动房地产市场的繁荣。
开发商的实力和运营能力也是影响楼盘发展的重要因素。优秀的开发商在项目规划、建设质量、配套设施完善和物业服务等方面都有着更高的标准和要求,能够为业主提供更好的居住体验。同时,开发商的品牌影响力也有助于提升楼盘的市场价值和知名度。
此外,从买房到交房需要一定的时间,而房产作为一种投资品,其价值的体现也需要一个周期。因此,选择具有五年发展潜力的楼盘,能够确保购房者在未来的一段时间内享受到房产增值带来的收益。以西安的奥体板块为例,随着大型体育赛事的举办和周边配套设施的逐步完善,该区域的房产价值在未来五年内有望持续提升。
(四)避免功能瑕疵
购买房屋时,一定要仔细检查房屋是否存在噪音大、采光不好、通风不畅、视野差等功能瑕疵。噪音过大,会严重影响居住者的休息和生活质量,长期处于噪音环境中还可能对身体健康造成损害。采光不足会导致室内阴暗潮湿,容易滋生细菌和霉菌,影响居住者的身体健康。通风不畅会使室内空气不流通,导致异味和有害气体积聚,同样对健康不利。视野差则会降低居住的舒适度和愉悦感。
这些功能瑕疵不仅会影响居住体验,还会对房屋的后期保值增值产生负面影响。在二手房市场上,存在功能瑕疵的房屋往往价格较低,且难以找到买家。因此,在选房时,购房者应认真实地考察房屋的各项功能,避免购买到存在明显瑕疵的房屋。
(五)选择扎堆区域
优先选择楼盘扎堆的区域,这类区域通常具有较强的发展活力和吸引力。众多楼盘集中在此,说明该区域受到了开发商和购房者的广泛关注,也意味着政府会加大对该区域的基础设施建设投入。在这样的区域,人口导入速度快,商业氛围浓厚,配套设施建设也会更加迅速和完善。
例如,在一些城市的新兴商圈或核心发展区域,众多楼盘聚集在一起,周边配套了大型购物中心、电影院、餐厅、健身房等商业设施,以及学校、医院、公园等公共服务设施。居民在日常生活中能够享受到便捷的生活服务,出行、购物、娱乐、就医等都非常方便。同时,楼盘扎堆区域的房屋流动性更强,购房者在需要转手出售时,更容易找到买家,房屋的保值增值潜力也更大。
四、其他要注意的事
(一)专门弄个联系方式
建议购房者办理一个新的手机号和微信,专门用于与置业顾问和房产经纪人沟通联系。在当今信息时代,房产市场的信息铺天盖地,购房者的常用联系方式很容易被各种卖房广告和推销电话骚扰,影响正常的生活和工作。使用新的联系方式,可以有效避免这种情况的发生,让购房者能够更加专注地筛选和比较房源信息。
此外,使用独立的联系方式还能让购房者在与销售人员沟通时,保持更加冷静和客观的态度。避免因销售人员的过度推销和诱导,而做出冲动的购房决策。购房者可以更加理性地分析和判断房源的优缺点,结合自己的实际需求和经济实力,选择最适合自己的房子。
(二)按需求选地方和预算
买房是一个家庭的大事,需要全家人共同商量,确定最重要的购房需求。如果家中有小孩上学,那么学校的距离和教学质量将是首要考虑因素。选择距离学校较近的房屋,不仅可以节省孩子上下学的时间和精力,还能让家长更加放心。同时,优质的教育资源也有助于提升房屋的价值。
对于刚参加工作的年轻人来说,地铁和商场等配套设施的便利性更为重要。靠近地铁站点的房屋,能够方便年轻人快速通勤,节省交通时间和成本。周边有商场、超市等商业设施,能够满足日常生活购物和娱乐需求,提高生活的便利性和舒适度。
在确定购房需求后,购房者还应根据自己上班路上能够接受的时间来选择购房区域。一般来说,上班通勤时间在 30 分钟以内是最为理想的,最多也不应超过 60 分钟。过长的通勤时间会大大降低生活质量,增加交通成本和时间成本,让购房者在工作之余感到疲惫不堪。
最后,根据确定的购房需求和区域,结合自己的经济实力,制定合理的购房预算。购房预算不仅要考虑房屋的总价,还要包括首付、月供、装修费用、办证纳税费用等各项支出。确保购房预算在自己的承受范围内,避免因购房而给自己和家庭带来过大的经济压力。
(三)了解政策和规划
在购房前,购房者一定要充分了解自己的购房资格以及所在区域的限购、限售政策。不同城市和地区的政策存在较大差异,有些城市可能对购房者的户籍、社保缴纳年限、购房套数等方面有着严格的限制。如果不了解这些政策,盲目购房,可能会导致购房合同无效,无法办理产权过户手续,甚至面临经济损失。
同时,关注所在区域的发展规划也是非常重要的。了解该区域未来的基础设施建设规划,如交通、教育、医疗等配套设施的建设情况,以及产业发展方向和布局,能够帮助购房者判断房屋的增值潜力。例如,一个区域规划建设大型交通枢纽,如高铁站、地铁站等,或者引进了大型企业和产业园区,那么该区域的房产价值很可能会随着这些项目的建设和发展而提升。
此外,购房者还应考虑房屋的折旧因素,综合评估市场价格和自己的需求,合理选择购买新房还是二手房。在选择开发商时,要深入了解开发商的信誉和实力,查看开发商的资质证书、过往开发项目的口碑和评价等,避免选择那些可能存在资金链断裂、项目烂尾风险的开发商。
总之,对于购房小白来说,买房前的准备工作是一个系统而复杂的过程,需要从多个方面进行全面的考虑和规划。只有做好充分的准备,才能在购房过程中少走弯路,买到满意的房子,实现自己的安居梦想。
总结:
一、选房逻辑
避免盲目求便宜:应关注主流产品和户型,在同一板块内比较同类型产品的差价,避免购买老小区、老户型等易被淘汰的房子,确保房屋的保值和流通性。
刚需购房要点:刚需购房者应注重居住舒适度和便利性,如上班通勤和子女教育,不要过度追求高回报,同时要警惕销售的过度宣传,理性选择适合自己的房子。
避开被市场淘汰的房子:大两居、大三居等实用性差的户型应谨慎购买,尽量选择新产品。对于预算不足的情况,可先租房,待资金充足后再考虑购房,避免因市场不稳定而遭受损失。
合理分配资金:车位通常不保值,可选择租赁;装修方面可适当节省资金,将更多资金用于选择更好的地段和产品。优质物业对房屋的舒适度和流动性有重要提升作用。
二、贷款买房法则
银行流水准备:提前六个月养好银行流水,确保流水金额达到月供的 2 到 2.5 倍,以满足银行贷款要求。
首付款管理:提前六个月存好首付款,避免资金来源不明或临时挪借,防止银行拒贷,尤其在大湾区等地区,银行对首付款来源审核严格。
降低负债:提前六个月减少信用卡透支、分期还款和套现等行为,避免银行因负债过高拒贷或降低贷款额度,必要时需提高首付或还清欠款。
征信维护:提前六个月避免高频申请网贷和信用卡,减少征信查询次数,防止因征信问题被银行拒贷。
按时还款:避免房贷、车贷、装修贷、信用卡等逾期,两年内连续三次或累计六次逾期可能导致银行拒贷。
贷款方式选择:根据资金情况选择贷款方式,钱多选本金,老板选本金钱少选本息,上班族选本息。
三、购房前准备工作
资金规划
确定首付款:可支配首付款一般为现有存款的 70% - 80%,避免顶格使用全部资金支付首付,防止购房后生活陷入困境。
准备交房前月供:计算从购房到交房期间的月供总额,如月供 3000 元则需准备约 7 万多,月供 5000 元则需准备约 12 万,确保有足够资金应对这段时间的支出。
预留办证纳税费用:购房过程中办证、纳税等费用根据房屋大小在 1 - 8 万左右,需提前预留。
规划装修费用:无论是精装房的软装配饰还是毛坯房的装修费用都需纳入预算,毛坯房装修费用因装修标准而异,无上限。
需求固化
了解自身特性:购房者需明确自己是长期主义、浪漫主义还是现实主义等,不同特性的人购房需求不同,这是匹配房源的重要依据。
明确功能诉求:确定对房屋功能的期望,如厨房、洗手间大小,是否需要露台等,以便筛选符合需求的房子。
考虑时间性需求:根据自身对入住时间的紧迫程度选择新房或二手房。二手房能更快入住且小区情况一目了然,但价格可能较高;新房价格相对较低但存在不确定性。
辨别楼盘
选择合适区域:新区购房可选择与工作生活相关且熟悉的区域,优先考虑央企或国企开发商,新区可跟着管委会所在地选择楼盘。
精准搭配面积段:刚需楼盘选择 120 - 130 平米左右的小三室或小四室流通性较好,改善楼盘则避免选择面积过小的户型,应符合楼盘主力面积段。
关注五年能见度:从国家政策周期、操盘单位任期、交房入住及投资变现时间等维度考虑,选择具有五年发展潜力的楼盘,如奥体板块。
避免功能瑕疵:确保房屋在噪音、采光、通风、视野等方面无明显缺陷,有利于后期保值增值。
选择扎堆区域:选择项目集中的区域,人口导入和商业成熟度高,楼盘流动性强,如奥体核心板块。
其他准备
联系方式准备:办理新手机号和微信用于联系置业顾问和经纪人,避免个人常用号码被过度骚扰,保持独立判断,不被误导。
区域选择与需求匹配:根据上班通勤时间(30 分钟内最优,60 分钟为极限)选择购房区域,以家庭为单位确定核心购买需求,如小孩读书优先考虑学校,初入职场者优先考虑地铁和商业配套等,并据此制定预算。
了解政策与规划:确认购房资格和所在区域限购限售政策,查阅区域发展规划,考虑房屋折价因素,综合评估市场价格和自身需求,选择合适的房屋类型(新房或二手房),同时关注开发商稳定性,避开潜在暴雷开发商。
广奕天之星
售楼处电话☎:400-998-9694✔✔
如有问题欢迎来电咨询,来电即可享受买房优惠!
预约来电尊享购房优惠,可预约案场内部销售人员,专业一对一热情服务,让您用专业眼光去买房。
楼盘项目全面介绍,本电话为开发商提供线上售楼处电话,楼盘项目全面介绍(包含楼盘简介,楼盘积分,房价,价格,楼盘地址,户型图,交通规划,备案价,项目配套,楼盘详情,售楼处电话,最新消息,最新详情,周边配套,最新进展等详情咨询)
广奕天之星售楼处电话☎:400-998-9694✔✔
楼盘项目全面介绍,本电话为开发商提供线上预约售楼电话,楼盘项目全面介绍(包含楼盘简介,均价,房价,现房,期房,别墅,叠墅,大平层,价格,楼盘地址,户型图,交通规划,备案价,备案名,项目配套,样板间,开盘时间,认筹时间,楼盘详情,售楼处电话,最新消息,最新详情,周边配套,一房一价,最新进展等详情咨询)楼盘详情丨价格丨更多优惠丨机不可失丨欢迎致电丨诚邀品鉴!售楼处位置丨特价房丨工抵房丨剩余房源丨户型图丨最新消息丨免责声明:将文章内容综合来源于网络、只作分享,版权归原作者所有!!如有侵权,请联系我们,我们第一时间处理如有问题欢迎来电咨询,专业一对一热情服务,让您用专业眼光去买房。如果您想了解更多楼盘详情,欢迎提前预约拨打