越秀外滩樾 (2025年越秀外滩樾)首页网站-楼盘详情-越秀外滩樾售楼处电话-越秀外滩樾户型配套

淮南楼市观察

2025-05-31 10:17:20

购房群

买房如何避坑,加入购房群,看看他们怎么说

立即进群

越秀·外滩樾

售楼处电话:400-998-9694

如有问题欢迎来电咨询,来电即可享受买房优惠!

预约来电尊享购房优惠,可预约案场内部销售人员,专业一对一热情服务,让您用专业眼光去买房。

楼盘项目全面介绍,本电话为开发商提供线上售楼处电话,楼盘项目全面介绍(包含楼盘简介,楼盘积分,房价,价格,楼盘地址,户型图,交通规划,备案价,项目配套,楼盘详情,售楼处电话,最新消息,最新详情,周边配套,最新进展等详情咨询)

越秀·外滩樾售楼处电话:400-998-9694

越秀·外滩樾售楼处电话:400-998-9694

越秀·外滩樾售楼处电话:400-998-9694

越秀·外滩樾

海派风貌院墅入市

虹口北外滩 低密风貌别墅

由越秀地产+临港集团联合打造

越秀临港虹口156街坊风貌别墅

【越秀·外滩樾】

上海 虹口外滩

风貌之上 世界堂前

建面约238㎡—338㎡

总价约4500-9000万

海派院墅三里外滩

立传别墅从你开启传承

越秀·外滩樾售楼处电话:400-998-9694

越秀·外滩樾售楼处电话:400-998-9694

最新消息:虹口北外滩 低密风貌别墅临港越秀北外滩项目定名「越秀·外滩樾」展厅开放!

「越秀·外滩樾」项目地块四至范围, 东至:梧州路,隔壁是中皇广场; 西至:hk270B-02,隔壁就是1933老场坊; 南至:周家嘴路 北至:柘皋路。

越秀·外滩樾售楼处电话:400-998-9694

日前,上海市规划和自然资源局对上海漕越经济发展有限公司虹口区嘉兴街道hk270b-04地块历史风貌保护项目进行了设计方案公示,项目未来将呈现48套低密风貌里弄住宅,面积约238-338㎡。

越秀·外滩樾售楼处电话:400-998-9694

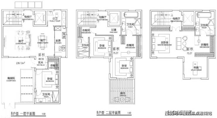
户型图如下:

(过程稿仅供参考,最终以实际为准)

236.25㎡A户型:

239.13㎡B户型:

250.89㎡B-3户型:

C户型:

291.42㎡D户型

基础信息

【项目名称】越秀·外滩樾

【开发商】上海漕越经济发展有限公司

【项目位置】上海市·虹口区·梧州路235弄

【项目类别】70年产权住宅

【项目类型】风貌别墅

【可售户数】48套(风貌)

越秀·外滩樾售楼处电话:400-998-9694

越秀·外滩樾售楼处电话:400-998-9694

越秀·外滩樾售楼处电话:400-998-9694

越秀·外滩樾售楼处电话:400-998-9694

越秀·外滩樾售楼处电话:400-998-9694

越秀·外滩樾售楼处电话:400-998-9694

项目实景图

【一座码头 启航外滩百年世界史】

项目所在地北外滩,是百年前上海的“下海”地。作为上海开埠后第一座码头的诞生地,北外滩率先“开眼看世界”,海纳万国文化风潮,众多此后影响中国的创举在此诞生,是上海最早的“十里洋场”

(*示意图,图片来源于网络)

越秀·外滩樾售楼处电话:400-998-9694

【一江一河 再立世界上海新传】

傲立“一江一河”交汇处(直线距离约1.1KM),未来将打造成为彰显上海城市核心竞争力的黄金水岸和具有国际影响力的世界级城市会客厅,出入之间,相逢城市高阶未来

(*示意图,图片来源于网络)

越秀·外滩樾售楼处电话:400-998-9694

【北外滩 面向世界的上海新封面】

北外滩,与外滩、陆家嘴并称为上海的“黄金三角”。将以2座陆家嘴的商务体量规划,新天地2.0生活圈打造,成为上海跃升世界舞台的“中心发力”新引擎

(*示意图,图片来源于网络)

越秀·外滩樾售楼处电话:400-998-9694

【中央商务区 未来上海腾飞引擎】

区域能级:总开发面积约840万方,40栋甲级写字楼城市地标:480米浦西第一高楼,19栋摩天大楼集群金融产业:2100+家金融企业赋能,资产管理规模超8万亿元,位居全市第一航运格局:4500+家航运企业集聚(上港集团、中远海运等),打造国际航运中心全球贸易:2500+家贸易企业入驻(摩亚方舟、银联商务等)新兴产业:129家新增高新技术企业,113家市区科技小巨人企业(数据来源:上海市规划局《北外滩地区控制性详细规划》)

(*示意图,图片来源于网络)

越秀·外滩樾售楼处电话:400-998-9694

越秀·外滩樾售楼处电话:400-998-9694

【立体交通 | 无界畅达世界 擎动城市脉搏】

全城畅达:

约360米新建路隧道(直线距离),快速直达陆家嘴CBD;

约670米外滩隧道(直线距离),直达外滩金融商业街以及老码头;

约150米北横通道(直线距离)贯通全城,快速通达虹桥机场/虹桥火车站;

约2.4公里大连路隧道(直线距离),直达浦东东方路、世纪大道、八百伴商业圈

四轨交汇:

轨交4/10号线海伦路站约850m(直线距离),3站南京东路,6站新天地。

(*交通路网示意图,仅供参考。本区位图仅用于本小区地理方位示意,非实际地图,相关信息并非按比例缩放。)

越秀·外滩樾售楼处电话:400-998-9694

【核心商圈 | 高阶商业配套 国际摩登领潮】

商业配套方面项目约2公里内,多元繁华构筑封面商业圈

北外滩商圈直线距离约500米;

外滩商圈直线距离约1000米;

陆家嘴商圈直线距离约1500米;

瑞虹商圈直线距离约900米;

越秀·外滩樾售楼处电话:400-998-9694

(*商圈距离示意图,仅供参考。本区位图仅用于本小区地理方位示意,非实际地图,相关信息并非按比例缩放。)

【高端医疗 | 优质三甲医院 护航健康生活】

三公里内四所三甲医院,全生命周期护航

新华医院(儿科专长);

复旦大学附属妇产医院;

上海市第一人民医院;

上海东方医院(血管外科专长);

【学府荟萃 | 全龄教育培优 一脉书香传承】

幼儿园:约1公里内6所幼儿园(直线距离),涵盖东余杭路幼儿园等3所示范级学校;

小学:约1.5公里内5所小学(直线距离),涵盖区重点四川北路第一小学;

中学:约1.6公里内6所中学(直线距离),1所市重点、2所区重点。一路之隔上海虹口二中心小学(在建中),约2.3公里市重点上海外国语大学附属外国语学校(直线距离)*施教区及就学政策以教育部门规划为准

(*示意图,图片来源于网络)

越秀·外滩樾售楼处电话:400-998-9694

【滨江低密 | 丰盈自然绿地 城市诗意回归】

2.5公里北外滩滨江绿地(约800m直达),四川北路公园、和平公园、鲁迅公园3大公园环伺,于滨江和城市低密绿芯之间,肇启当代诗意生活传序。

(*示意图,图片来源于网络)

越秀·外滩樾售楼处电话:400-998-9694

越秀·外滩樾售楼处电话:400-998-9694

程绍正韬,建筑室内设计之东方主义集大成者,致力于东方文化的坚守与创新。他打破惯常的职业思维,将生活方式化作一种哲学态度,融入空间设计,让设计不止于作品。

李玮珉,撑起中国豪宅设计半壁江山,擅长为城市塑造文化符号建筑作品。他的作品更多用极简的方式来表明态度,崇尚简而高效的现代生活方式。庄重的建筑语汇,适时注入艺术、自然与美学,让空间充满想象力。

越秀·外滩樾售楼处电话:400-998-9694

复刻百年前的高端工艺元素,让海派造诣世纪传承。清砖立柱、古典门头、封闭门窗、岩石山墙等经典海派建筑风貌转译,于历史和未来之间收藏百年上海。

(*本图片仅为方案过程讨论稿,并非交付标准。)

越秀·外滩樾售楼处电话:400-998-9694

巷弄新生:内环内难得双拼别墅 ,超越风貌建筑的尺度感;

建筑新生:创新风貌规制,致微而筑的建筑腔调赏新;

美学新生:转译远东第一豪宅立面美学,收藏名门望族生活;

材质新生:豪宅同款奢砖、大面积奢石运用,定制家族排场;

(*本图片仅为方案过程讨论稿,并非交付标准。)

越秀·外滩樾售楼处电话:400-998-9694

【41载越秀 | 万亿级开发商 与上海共卓越】

国内资产规模最大的地方驻港企业之一越秀地产,中国第一代商品房缔造者。41年越秀,30城300+项目,服务超100万业主;2023年销售额行业排名12,2023年TOP20销售业绩增长率最高房企。2024中国房企综合实力TOP9。入席北外滩世界会客厅,与上海共生长。(数据来源:克而瑞地产研究发布榜单《2023年1-12月.中国房地产企业销售榜top200》)

越秀·外滩樾售楼处电话:400-998-9694

虹口北外滩 低密风貌别墅

由越秀地产+临港集团联合打造

越秀临港虹口156街坊风貌别墅

【越秀·外滩樾】

上海 虹口北外滩

风貌之上 世界堂前

建面约238㎡—338㎡

总价约4500-9000万

海派院墅三里外滩

立传别墅从你开启传承

1、什么是房产:房屋产权的简称。

2、什么是地产:是指土地财产。

3、什么是房地产:是房产和地产的总称。

4、什么是房地产业:从事房地产开发、建设、经营、管理以及维修、装饰和服务的综合性产业。

5、什么是房地产开发:是指在依法取得土地使用权的土地上按照使用性质的要求进行基础设施、房屋建筑的活动。

6、什么是土地开发:是将“生地”开发成可供使用的土地。

7、集体土地是指:农村集体所有的土地。

8、征用土地是指:国家为了公共利益的需要,可依照法律规定对集体所有的土地实行征用。

9、什么是土地所有权:是指国家或集体经济组织对国家土地和集体土地依法享有的占有、使用、收益和处分的权能。

10、什么是土地使用权的出让:指国家以协议、招标、拍卖的方式将土地所有权在一定年限内出让给土地使用者,由使用者向国家支付土地使用权出让金的行为。

11、什么是土地使用权转让:是指土地使用者通过出售、交换、赠与和继承的方式将土地使用权再转移的行为。

12、什么是地籍、产籍:是对在房地产调查登记过程产生的各种图表、证件等登记资料,经过整理、加工、分类而形成的图、档、卡、册等资料的总称。

13、生地是指:不具备开发条件的土地。

14、熟地是指:已完成三通一平(水、电、道路,土地平整)或七通一平,具备开发条件的土地。

15、什么是宗地:是地籍的最小单元,是指以权属界线组成的封闭地块。

16、什么是宗地图:是土地使用合同书附图及房地产登记卡附图。它反映一宗地的基本情况。包括:宗地权属界线、界址点位置、宗地内建筑位置与性质、与相邻宗地的关系等。

17、证书附图是指:房地产后面的附图,主要反映房地产情况及房地产所在宗地情况。

18、什么是物业管理:泛指一切有关房地产开发、经营、商品房销售、租赁及售后服务。

19、什么是业主委员会:是在物业管理区域内代表全体业主实施自治管理的组织。是代表

物业全体业主合法权益的社会团体,其合法权益受国家法律保护。

20、业主委员会是如何产生的:由业主大会从全体业主中选举产生。

21、住房补贴是指:国家为职工解决住房问题而给予的补贴资助。

22、房屋的所有权是指:对房屋全面支配的权利。

23、房地产交易的两种主要形式是:地产交易形式与房产交易形式。

24、建筑物是指:人工建造而成的房屋和构筑物。

25、构筑物是指:建筑物中除房屋以外的东西。

26、什么是期房:是指消费者在购买时不具备即买即可入住的商品房。

27、期房是如何介定的:房地产开发商拿到商品房预售许可证开始至取得房地产权证大产证或竣工验收合格可以直接入住使用)为止。

28、什么是预售合同:消费者在购买期房时签定的销售合同。

29、什么是现房:是指消费者在购买时具备即买即可入住的商品房,即开发商已办妥所售的商品房的大产证(或已经竣工验收合格并交付使用)的商品房。

30、什么是毛坯房:房地产商交付屋内只有门框没有门,墙面地面仅做基础处理而未做表面处理的房叫毛坯房。

31、什么是成品房:是指对墙面、天花、门套、地板实行装修。

32、什么是商品房:是指以完全的市场价格向购房者出售的房子。

33、商品房预售是指:在房地产尚未建成以前,房地产的经销商在取得受买人一定数量的定金后,将期房出售给受买人。

34、商品房现售是指:指房地产开发企业将竣工验收合格的商品房出售给买受人。

35、二手房通常指的是:再次进行买卖交易的住房。

36、经济适用房指的是:面向中低收入家庭的普通住宅。

37、例出3种以上的安居房的种类:准成本房、全成本房、全成本微利房和社会微利房。

38、低层住宅的介定:1-3层的住宅。

39、多层住宅的介定:4-6层的住宅。

40、小高层住宅的介定:7-11层的住宅。

41、中高层住宅的介定:12-16层的住宅。

42、高层住宅的介定:16层以上为高层住宅。

43、超高层建筑的介定:总高度超过100米的建筑。

44、商品房的结构是指:房屋主体所使用的施工工艺和用材。

45、钢结构的意思是:承重的主要结构是用钢材料建造的,包括悬索结构。

46、钢混结构的意思是:承重的主要结构是用钢和混凝上建造的。

47、砖木结构的意思是:承重的主要结构是用砖、木材建造的。

48、砖混结构的意思是:主要是砖墙承重,部分是钢盘混凝土承重的结构。

49、框架结构的意思是:以钢筋混凝土浇捣成承重梁柱,再用预制的隔墙分户的结构。

50、开间指的是:一间房屋内一面墙的定位轴线到另一面墙的定位轴线之间的实际距离。

51、进深指的是:一间独立的房屋或一幢居住建筑内从前墙的定位轴线到后墙的定位轴线之间的实际长度。

52、层高指的是:下层地板面或楼板面到上层楼层面之间的距离。

53、净高指的是:下层楼板上表面到上层楼板下表面之间的距离。

54、占地面积指的是:地块的总面积。

55、1亩约等于多少平方米:666.66㎡

56、居住小区总用地指的是什么用地的总和:住宅总用地,公共建筑设施总用地,道路、广场用地、庭院、绿化用地的总和。

57、住宅总用地是指:住宅用地面积的总和。

58、公建总用地是指:小区内部公共建筑占地面积的总和。

59、建筑用地面积的介定:建设用地位置和界线所围合的用地之水平投影面积。

60、建筑基底面积是指:建筑物首层的建筑面积。

61、建筑高度是指:建筑物室外地平面至外墙面顶部的总高度。

62、房屋的基底面积是指:房屋的基底面积是指建筑物底层勒脚以上外围水平投影面积。

63、道路面积是指:小区内宽度大于1.5米道路的面积总和。

64、广场面积是指:停车、回车广场和有铺砌地面的场地面积之和。

65、庭院、绿化面积是指:小区内集中绿化带、小公园,以及公共活动场所等为小区所有居住人员共同使用权的绿化面积的总和。

66、假山、小池算不算庭院、绿化面积:算。

67、人均总占地面积(㎡/人)的计算公式:人均总占地面积=建筑红线内总用地÷本小区规划居住总人数。

68、人均住宅用地面积(㎡/人)的计算公式:人均住宅用地面积=小区内总住宅用地÷本小区规划居住总人数。

69、总建筑面积是指:小区内住宅、公共建筑、人防地下室面积总和。

70、人防地下室算不算在总建筑面积之内:算

71、住宅建筑面积是指:住宅建筑外墙外围线测定的各层平面面积之和。

72、套建筑面积是指:一套房屋的整体面积。

73、套建筑面积的构成是:套内建筑面积和套分摊的公用建筑面积

74、幢(栋)是指:一座独立的,包括不同结构和不同层次的房屋。

75、架空房屋是指:一般为底层架空,以柱子作为承重支撑物的房屋。

76、夹层是指:位于两自然层之间的楼层,指房屋内部空间的局部层次。

77、技术层的意思是:用作水、电、暖、卫生等设备安装的局部层次。

78、技术层层高在多少以上计算层数:2.20米以上的计算层数。

79、结构转换层是指:建筑物某楼层的上部与下部因平面使用功能不同,该楼层上部与下部采用不同结构类型,并通过该楼层进行结构转换,则该楼层称为结构转换层。

80、跃层式住宅是指:一套住宅占两个楼层,由户内楼梯联系上下层,上下两层完全分隔。

81、阁楼是指:利用房屋内的上部空间加建的楼层。

82、阁楼层高在多高以上计算面积:2.20米以上。

83、地上层数是指:即房屋的自然层数,指室内地坪±0.00以上的按楼板结构分层的层高在2.20米以上的楼层数。

84、地上层数用什么数表示:自然数。

85、地下层数是指:采光窗在室外地坪以下的,其室内层高在2.20米以上的地下室的层数。

86、地下层数用什么数表示:负数。

87、房屋总层数是指:房屋的地上层数与地下层数之和。

88、地下层数算不算在房屋总层数之内:算。

89、例出3个以上不算在房屋总层数内的建筑层:假层、夹层、阁楼、装饰性塔楼、楼梯间、水箱间。

90、柱廊是指:有顶盖和支柱,供人通行的建筑物,称为有柱走廊,简称柱廊。

91、骑楼是指:底层为有柱廊房,廊道上方建为楼房的一部分。

92、挑廊是指:指二层以上挑出房屋墙体外,有围护结构,无支柱有顶盖的外走廊。

93、门廊是指:建筑物门前有顶盖,有支柱或围护结构的进出通道。

94、门斗是指:支撑建筑物门前顶盖的是实体墙称为门斗。

95、檐廊是指:房屋檐下方两端有支撑墙体无柱的通道。

96、天棚是指:即天篷,有透明顶篷履盖的屋面。

97、晒台又称什么:露台。

98、露台是指:供人室外活动的上人屋面或底层地面伸出室外的有维护无顶盖的台面。

99、阳台是指:有永久性上盖、有围护结构、有台面、与房屋相连、可以供人活动或利用的房屋附属设施。

100、阳台的分类有:封闭式阳台和半封闭式阳台。

101、封闭阳台是指:在围护栏、墙上部用铝合金玻璃窗等围闭的阳台。

102、封闭阳台面积如何计算:全部计算建筑面积。

103、半封闭阳台是指:除围护栏、墙以外没有进行围闭的阳台。

104、半封闭阳台面积如何计算:计算一半建筑面积。

105、楼梯是指:是指房屋层之间供垂直交通用的通道,

106、室外楼梯是指:依靠房屋外墙体搭建的永久性楼梯。

107、屋顶楼梯间是指:突出房屋屋面有顶盖,四周有围护结构,层高在2.20米以上供上屋顶维修或安全出口用的用房。

108、屋顶楼梯间算不算总层高:不算。

109、屋顶电梯间:指突出房屋屋面,层高在2.20米以上,供停放、检修、升降电梯的用房。

110、屋顶电梯间算不算总层高:不算。

111、设备间是指:一幢大楼内放置各种应用设备以及进行综合布线交接的房屋。

112、功能区的意思是:根据各共有建筑部位的用途而划分的服务范围称为功能区。

113、连廊是指:连接两幢房屋的走廊。

114、连楼是指:连接两幢房屋的楼房。

115、过街楼是指:底层局部为通道的楼房。

116、架空通廊是指:指以两端房屋为支撑,有围护结构,有顶盖无支柱的架空通道。

117、围护结构是指:将空间竖向分割成相对独立,不易通行的两个或多个部分的实体,起隔离作用。

118、墙和栏杆算不算围护结构:算。

119、基地面积是指:一个小区总的占地面积。

120、间距是指:建筑平面外轮廓线之间的距离。

121、国家间距标准的比例是:楼高:间距=1:1.2。

122、国家日照标准是:2个以上居住空间大寒日底层满窗连续日照不低于1小时,全天满足2小时。

123、结构面积是指:房屋建筑中外墙、内墙、柱等结构构件所占面积的总和。

124、公用面积是指:住宅楼内为住户方便出入,正常交往而设置的公共走廊、楼梯、电梯间等所占面积总和。

125、公用面积是如何分摊的:按栋或单元户数面积按比率分摊。

126、套内建筑面积是指:套门内范围的建筑面积。

127、套内建筑面积包括:套内使用面积、套内墙体面积和阳台建筑面积。

128、套内使用面积是指:指套内住户独自使用的面积。

129、套内使用面积的计算包括:卧室、厨房、卫生间、过厅、起居室、内走道、阳台、壁柜等净面积的总和。

130、套内墙体面积是指:套内使用空间周围的维护或承重墙体或其它承重支撑体所占的面积。

131、套内墙体面积的计算:全部。

132、各套之间的分隔墙按多少计入套内墙体面积:一半。

133、套与公共建筑空间的分割墙以多少计入套内墙体面积:一半。

134、外墙以多少计入套内墙体面积:一半。

135、套内自由墙体以多少计入套内墙体面积:全部。

136、套内阳台建筑面积是指:阳台外围与房屋外墙之间的水平投影面积。

137、公用建筑面积是指:各产权主体共同占有或共同使用权的建筑面积,指各套(单元)以外为各户共同使用,不可分割的建筑面积。

138、容积率是指:项目规划建设用地范围内全部建筑面积与规划建设用地面积之比。

139、一个项目总建筑面积为64000㎡,占地面积为40亩,容积率是多少:2.4

140、建筑密度又称:建筑覆盖率。

141、建筑密度是指:项目用地范围内所有基底面积之和与规划建设用地之比。

142、人口毛密度的计算公式:人口毛密度=小区内总居住人数÷小区内占地面积。

143、平均每平方米造价(元):平均每平方米造价=建筑物总造价÷建筑面积。

144、使用面积系数K1(%):使用面积系数=总使用面积(平方米)÷总建筑面积(平方米)×100%。

145、居住面积系数K2(%):居住面积系数=总居住面积(平方米)÷总建筑面积(平方米)×100%。

146、绿地率:指公共绿地、宅旁(宅间)绿地、公共服务设施所属绿地和道路绿地等四类绿地面积的总和占居住区用地总面积的比率。

147、公共绿地的介定:最小的要求是宽度不小于8米,面积不小于400平方米,

148、哪些绿化不能算入绿地面积:距建筑外墙1.5米和道路边线1米以内的用地,地下车库、化粪池等地表覆土达不到3米深度的设施不能计入。

149、绿化覆盖率:所有绿化面积与建设用地面积之比。即绿化面积÷基地面积×100%

150、绿化覆盖面积:所有植被垂直投影面积的总和。

越秀·外滩樾

售楼处电话:400-998-9694

如有问题欢迎来电咨询,来电即可享受买房优惠!

预约来电尊享购房优惠,可预约案场内部销售人员,专业一对一热情服务,让您用专业眼光去买房。

楼盘项目全面介绍,本电话为开发商提供线上售楼处电话,楼盘项目全面介绍(包含楼盘简介,楼盘积分,房价,价格,楼盘地址,户型图,交通规划,备案价,项目配套,楼盘详情,售楼处电话,最新消息,最新详情,周边配套,最新进展等详情咨询)

越秀·外滩樾售楼处电话:400-998-9694

楼盘项目全面介绍,本电话为开发商提供线上预约售楼电话,楼盘项目全面介绍(包含楼盘简介,均价,房价,现房,期房,别墅,叠墅,大平层,价格,楼盘地址,户型图,交通规划,备案价,备案名,项目配套,样板间,开盘时间,认筹时间,楼盘详情,售楼处电话,最新消息,最新详情,周边配套,一房一价,最新进展等详情咨询)楼盘详情丨价格丨更多优惠丨机不可失丨欢迎致电丨诚邀品鉴!售楼处位置丨特价房丨工抵房丨剩余房源丨户型图丨最新消息丨免责声明:将文章内容综合来源于网络、只作分享,版权归原作者所有!!如有侵权,请联系我们,我们第一时间处理如有问题欢迎来电咨询,专业一对一热情服务,让您用专业眼光去买房。如果您想了解更多楼盘详情,欢迎提前预约拨打

全部

相关资讯

报名成功
稍后会有专业的置业顾问联系您
返回楼盘

频道导航

返回首页

看房小程序

APP下载

电话拨通后,请您手动拨打分机号

确定拨打电话

电话号码:

分机号:(可能需要拨分机号)