一城五院,书写传奇
泰禾在上海一共精筑了五座“院子”
均落子于上海城市发展的焦点处
兼得城市与自然资源馈赠
坐拥江、海、湖及“城市绿肺”级大型城市公园等
不可再生的稀缺自然资源
形成“一城五院”的格局
上海杨浦·【 信达泰禾上海院子】售楼处电话:400-8815-114(预约热线)

新江湾合院楼王别墅
仅此一套保留新房
地上三层989.55㎡+地下二层663.52㎡
合计面积:1653㎡,单价5.3万
报价:8915万(可谈)

【信达泰禾上海院子】位于杨浦区,隶属新江湾城板块,相比杨浦其他板块,新江湾城最大亮点就是ecology绿化,同样也是项目的一大优势,项目周围环伺着三大片湿地。

新江湾是上海传统豪宅区,毗邻五角场城市副中心,拥有9.45平方公里的原生湿地以及约15万㎡的新江湾湿地公园生态稀缺资源。信达泰禾·上海院子位于新江湾城核心位置,家门口就是10号线殷高东路站,步行可达。

「上海院子」独特的院落式社区打造,融合了“院子系”特点、福州三坊七巷和上海弄堂形制,规划了“三街九坊十八巷”。且以“大门、坊门、院门、宅门”四进系统层层递进。项目精益求精,如吊顶天花雕刻的是龙纹和祥云的图案,寓意吉祥安康。

宫殿峥嵘笼紫气
门第相当石鼓默
一对抱鼓石,彰显着门庭煊赫
出入显贵,一圆一方的上下分布
具有天圆地方的象征意蕴
园林方面
项目则集萃 南北园林精华
以“门、庭、巷、院”的建筑体系
营造出中国大院 “高、深、大、美”的居住艺术
在细节上,精益求精
如吊顶天花雕刻的是龙纹和祥云的图案
寓意吉祥安康

项目物业会所
物业费:地上12.1块,地下6.05块
泰禾物业借助泰禾 全球资源服务平台,追求“精致到极致,极致到厘米级”的高端品质服务,为业主提供个性化的物业服务全价值链解决方案。
泰禾物业人员沉淀 中华传统礼仪文化,从仪容仪表、形体、微笑、规范服务动作到茶艺、诗词、琴乐、儒学,由内至外塑造物业服务人员的大家气质,与传承中国传统文化礼序的泰禾院子相辅相成,极尽尊崇的名流礼遇。
项目售楼处位置是作为社区文化中芯,于负一层打造了建面约 3000㎡的精品会所,面宽约75米,拥有 室内外双泳池、健身房、spa房,咖啡吧、vip室,让业主享受7星级高级定制服务。

上海院子会所咖啡吧实景图

上海院子会所泳池实景图

上海院子会所健身房实景图


项目综合配套如下:
交通出行:家门口就是10号线殷高东路站,步行几分钟即可到达。
商业方面:项目步行可快速到达约90万方的铁狮门的商业圈,车行可快速到达五角场商圈。
教育方面:项目周边中福会幼儿园、延吉幼儿园(区重点)、同济第一附中(市重点)等名校学府林立。
学校方面:项目与上海音乐学院实验中小学(市重点)距离仅约800米。

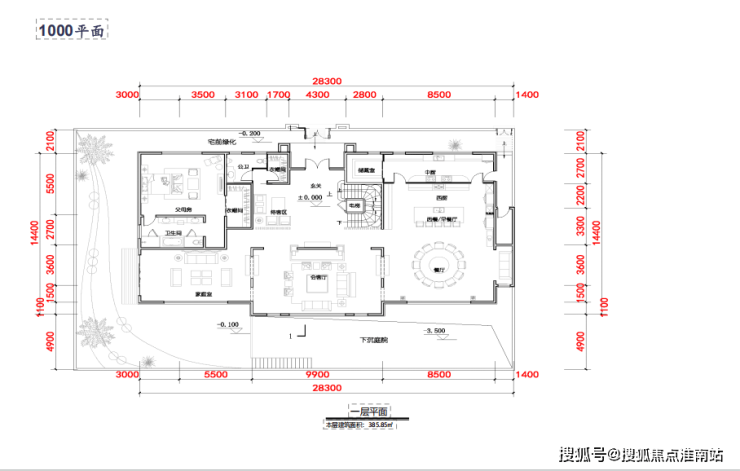
平面户型图如下












装修效果图






新江湾合院楼王别墅
仅此一套保留新房,无税!!
地上三层989.55㎡+地下二层663.52㎡
合计面积:1653㎡,单价5.3万
报价:8915万
上海杨浦·【 信达泰禾上海院子】售楼处电话:400-8815-114(预约热线)