2025美兰金色宝邸售楼处电话-(美兰金色宝邸售楼处)2025楼盘详情-最新房价-首页网站-户型配套

淮南楼市观察

2025-07-27 11:54:30

购房群

买房如何避坑,加入购房群,看看他们怎么说

立即进群

上海宝山「美兰金色宝邸」

售楼处电话:400-9966-224✔✔【预约热线】美兰金色宝邸售楼处电话:400-9966-224✔✔【预约热线】如有问题欢迎来电咨询,专业一对一热情服务,让您用专业眼光去买房。

美兰湖畔类独栋别墅【美兰金色宝邸】建面约:300~500㎡

总价约1000万起现房销售

项目详情

开发商:上海顾村房地产开发(集团)有限公司

板块:宝山罗泾

地址:罗泾镇潘沪路188弄

类别:类独栋别墅

房屋类型:住宅(产权70年)

总占地面积:47442㎡

总建筑面积:91899㎡

容积率:1.3

绿化率:40.5%

物业公司:上海顾村物业管理有限公司

物业费:3.50元/㎡/月

交房时间:现房

交房标准:毛坯

在售面积约:330-500㎡

销售价格:总价1000万起

2020年的大数据,总供应66076套房源,其中联排只有2714套,联排占比仅4.1%,联排占别墅总供应比例猛降近24%,同时2020年只有49个项目有联排产品推出,其中8成项目供应不足百套。

2019年供应4177套,成交4874套;

而到了2020年,供应2714套,成交4444套,严重供不应求!

而以上数据中,大部分成交房源仍是存量联排,限墅令之后,别墅用地越来越少,

市面上的全新联排作品基本卖一套少一套,

将来想要再买只能去二手寻觅,

那时置业成本又将“大幅增长”。

我们把眼光聚焦到东上海:中心七区(外环内)+宝山+浦东,

2020年至今,一共推出了86套联排别墅,其中:

60套联排别墅是浦东碧云国际社区——碧云尊邸,总价约3500万起,这个总价把一大批想买别墅的客户拒之门外。

26套联排别墅分别来自宝山、老南汇的两个项目,最小147平起,总价不低于1000万。

而如今,整个东上海,新房联排别墅供应:0

也就是说,东上海的小伙伴,如果想要买有天有地有花园有露台的真别墅,只能去供应比较多的西上海。

比如说青浦的朱家角、金山等地,价格价格也不便宜。

但说实话,从杨浦、宝山、浦东出发去这些地方,不比去一趟外地近。

从2020年别墅的成交情况来看,也可以看出一点端倪:千万级以上的别墅已经成为上海NO.1成交主力。

从去年上海成交的住宅土地来看,

近7成地块容积率都在1.6以上,

未来也将越来越难得,入手门槛也会越来越高,购买都的竞争也会越来越激烈。

从上海房价分布来看,环人民广场直径约25公里范围内,曾经作为价值洼地担当的松江、青浦等新城梯队,区域均单价都已突破4万。

而从距离人民广场约30KM距离来讲,像唐镇、徐泾板块,高层的价格已经突破6万/㎡,更有甚者如唐镇三兄弟的二手挂牌核验价已经攀升至12万/㎡,浦江板块目前均价都在5.5+万/㎡。

而美兰金色宝邸,联排别墅,建筑面积约300㎡,实际使用面积约500㎡,单价才约3.5万/㎡,总价约1000万起,性价比不言而喻!

上海“2035规划”明确提出,上海要主动服务“一带一路”建设、长江经济带发展,主动融入长三角区域协同发展。宝山作为长三角枢纽存在,被纳入主城区,开启新一轮时代红利,以北郊未来产业园为转型驱动,致力打造北上海新兴产城中心,城市资源全面升级。

(示意图)

随着“2035”战略规划定调,北郊迎来交通焕新,形成“二纵一轨”立体交通。S7沪崇高速的一期在建、沪太路快速化将促进交通路网的焕新升级;规划中运量交通接驳轨道交通7号线,实现快速通达市区。

(示意图)

上海北郊未来产业园是浦东金桥股份与宝山工业园区合作的科技产业园项目,承载区域产业转型任务,助力打造“上海制造”品牌,着力推动机器人、高端装备、关键智能部件等领域的研发和产业化。智能制造、新材料、移动互联网和健康产业等四大产业将成为支柱产业。

罗泾处于上海市北部,是宝山区城市建设区及上海国际航运中心的组成部分,

规划以一核:罗泾公园为生态核心

二轴:以陈功路、罗宁路为城镇发展轴

三带:荻泾河、小川沙河、陶家河绿化景观带环绕,建设成为以中高档居住为主体,融行政办公、商业服务、文化教育、休闲娱乐等多元功能为一体的水韵生态城。

美兰金色宝邸,正处于一核、二轴、三带的核心交集,中心区位天然优越,尽享城市发展黄金轴线带来的便捷生活及无限价值。

美兰金色宝邸位于宝山罗泾板块,由上海顾村房地产开发,项目北临陈功路、南临潘沪路、西临商业地块、东临天然河流——小川沙河。

项目占地面积约4.7万㎡、建筑面积约9.2万㎡、绿化率高达40%、容积率仅0.9,小区由4幢小高层和55栋联排别墅组成,共592户。

目前小高层已全部售罄,仅剩36套建面约300-317㎡的联排别墅在售,地上3层,赠送地下1层,使用面积约500㎡,总价约1043-1141万,款清交付。

小区建筑采用经典优雅英伦风格,近邻115亩罗泾公园仅500米,不仅饱览自然风光,更如同拥有一个天然大氧吧,时时刻刻空气清新。

美兰金色宝邸小区内种植有名品植株,小区以集中绿化将各单体建筑有机地串连成一体,力求将环境优势与每栋建筑相结合,确保了户户有景。

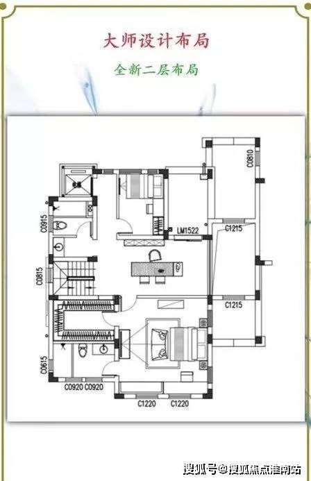
在售户型图赏鉴↓↓↓

样板间赏鉴↓↓↓

周边配套

项目位于罗泾镇中心区,周边配套成熟,罗泾中学、罗泾镇卫生服务中心仅一河之隔,周边成熟小区林立,项目西侧地块系规划商业地块,坐享城市便捷生活。

地铁方面:离项目最近的二条地铁是7号线美兰湖站(约10.5KM)、1号线富锦路站(约15.5KM)、距离都非常远。但项目附近有规划的T1罗罗线,这是一条将兼顾罗店镇-北郊未来产业园-罗泾镇的中运量轨交,未来将无缝衔接轨交7号线美兰湖站。

自驾:项目紧邻陈功路和罗宁路,可接驳:蕴川公路、沪太公路、宝钱公路、沪崇高速、上海绕城高速、外环高速等上海主干道,可快速到达上海各各个热门商圈,尽享便捷出行的悠享生活。

公交方面:潘沪路罗宁路 (281米) 、潘泾路潘沪路 (330米) 、罗宁路潘沪路 (400米) 、宝虹家园 (464米) 、潘泾路陈川路 (507米) 、罗宁路陈川路 (589米)

教育方面:罗泾镇第二幼儿园(步行约430米)、罗泾镇中心幼儿园(步行约970米),罗泾中学(步行约660米)、罗泾中心小学(步行约1.3KM)、民办肖泾小学(步行约2.0KM)等

商业配套:世纪华联潘沪店NO.2023(117米) 、宝山区宝雄杂货店(133米) 、如海超市(飞翔店)(148米) 、良友金伴(潘沪路)(198米) 、光明便利(潘沪店)(208米) 、百新杂货店(217米)

医疗方面:罗泾镇卫生服务中心(步行约370米)、宝山区罗店医院(步行约8.7KM)、美兰湖妇产科医院(步行约10.0KM)等大型医院,能够为您和家人提供全方位的健康保障。

附近银行:上海农商银行陈行分理处(969米) 、上海农村商业银行(罗泾支行)(973米) 、上海农商银行ATM(973米) 、上海农村商业银行ATM(罗泾支行)(974米) 、中国邮政储蓄银行(罗泾支行)(986米)

生态休闲:罗泾公园(东南门)(441米) 、罗泾公园(451米)。

一房一价表(部分房源已售)↓↓↓

售楼处电话:4009966224【售楼中心热线】营销中心热线400-996-6224售楼处地址400-996-6224,楼盘项目全面介绍,本电话为开发商提供线上预约售楼电话,楼盘项目全面介绍(包含楼盘简介,均价,房价,现房,期房,别墅,叠墅,大平层,价格,楼盘地址,户型图,交通规划,备案价,备案名,项目配套,样板间,开盘时间,认筹时间,楼盘详情,售楼处电话,最新消息,最新详情,周边配套,一房一价,最新进展等详情咨询)楼盘详情丨价格丨更多优惠丨机不可失丨欢迎致电丨诚邀品鉴!售楼处位置丨特价房丨工抵房丨剩余房源丨户型图丨最新消息丨免责声明:将文章内容综合来源于网络、只作分享,版权归原作者所有!!如有侵权,请联系我们,我们第一时间处理如有问题欢迎来电咨询,专业一对一热情服务,让您用专业眼光去买房。如果您想了解更多楼盘详情,欢迎提前预约拨打万科中兴傲舍售楼处电话☎400-9966-224✔✔✔

1契税 先说说契税,这可是买房的头号“敌人”。

适用对象:买方(对,就是你)

税率:根据房屋面积和购房情况不同,税率也不一样:首套房,面积在90平方米以下:1%

首套房,面积超过90平方米:1.5%二套房:3%

计算公式:契税 = 房屋成交价 × 契税税率举个栗子:假如你买了一套100万元的房子,而且是首套房,面积在90平方米以下,那么契税是:

契税=100万元×1%

契税

网签那些事儿

在中国,买房要网签,就是去房管局备案。网签保证交易透明和安全,但也有人想着能不能在这儿动点小心思,比如低报成交价。这样能省点税钱,不过啊,万一被税务部门逮住了,那可是要补税罚款的,信用记录还会受影响。所以,咱们还是老老实实交税吧,别因小失大。

网签那些事儿

6.2增值税及附加税 接下来是增值税,这部分是卖家要交的。

适用对象:卖方

税率:房子买了不到2年:5.6%(含附加税);买了2年以上:免征。

计算公式:买了不到2年:增值税 = 房屋成交价 ÷ 1.05 × 5%

附加税 = 增值税 × 12%举个栗子:假如你卖的是一套100万元的房子,而且买了不到2年,那么增值税和附加税是:增值税=100万元÷1.05×5附加税=4.76万元×12总共得交:5.33万元

增值税及附加税

6.3个人所得税 这个税也是卖家要交的。

适用对象:卖方

税率:20%

计算公式:个人所得税 = (房屋成交价 - 房屋原值 - 相关费用) × 20%

举个栗子:假如你卖的房子成交价是100万元,原值是60万元,相关费用是5万元,那么个人所得税是:

个人所得税=(100万元−60万元−5万元)×20

其他费用

6.4其他费用 土地增值税

适用对象:卖方税率根据房屋购置年份和地段不同而不同。

印花税适用对象:买卖双方各0.05%计算公式:印花税 = 房屋成交价 × 0.05%

中介费一般按房屋成交价的2%~3%计算,由买卖双方协商承担。偷偷告诉你现在市场灵活中介费用也是可谈的哦。

买房的时候,各种税费加起来可不是小数目。契税、增值税、个人所得税这些都要好好考虑。记得提前了解政策,做好预算,别在交易的时候手忙脚乱。

希望这篇指南能帮你搞清楚买房时的税费问题,顺顺利利买到心仪的房子!记住,合法节税,诚实纳税,才能走得更远哦!

上海宝山「美兰金色宝邸」

售楼处电话:400-9966-224✔✔【预约热线】美兰金色宝邸售楼处电话:400-9966-224✔✔【预约热线】如有问题欢迎来电咨询,专业一对一热情服务,让您用专业眼光去买房。

全部

相关资讯

报名成功
稍后会有专业的置业顾问联系您
返回楼盘

频道导航

返回首页

看房小程序

APP下载

电话拨通后,请您手动拨打分机号

确定拨打电话

电话号码:

分机号:(可能需要拨分机号)