【越秀·外滩樾】
上海虹口【越秀·外滩樾】
售楼处电话:400-8815-114(预约热线)
【越秀·外滩樾】营销中心
服务热线:400-8815-114(已认证)
预约看房请联系案场销售
基础信息
【项目名称】越秀·外滩樾
【开发商】上海漕越经济发展有限公司
【项目位置】上海市·虹口区·梧州路235弄
【项目类别】70年产权住宅
【项目类型】风貌别墅
【可售户数】项目共计49栋(仅48栋可售)
【容积率】约1.3
编辑

编辑

编辑

上海虹口【越秀·外滩樾】
售楼处电话:400-8815-114(预约热线)
【越秀·外滩樾】营销中心
服务热线:400-8815-114(已认证)
预约看房请联系案场销售
【传奇的1.5公里 启航外滩百年世界史】
项目所在地北外滩,是百年前上海的发源地。作为上海开埠后第一座码头的诞生地,北外滩率先“开眼看世界”,海纳万国文化风潮,众多此后影响中国的创举在此诞生,是上海最早的“十里洋场”。
编辑

【世界的1.5公里 再立世界上海新传】
傲立“一江一河”交汇处(直线距离黄浦江约1km),未来将打造成为彰显上海城市核心竞争力的黄金水岸和具有国际影响力的世界级城市会客厅,出入之间,相逢城市高阶未来。
编辑

【上海新封面】黄金三角顶序规划
北外滩,与外滩、陆家嘴并称为上海的“黄金三角”。将以2座陆家嘴的商务体量规划,新天地2.0生活圈打造,成为上海跃升世界舞台的“中心发力”新引擎。
编辑

【经济中心】全球化核心腹地
北外滩总开发面积约840万方,自陆家嘴之后上海最大开发区域,未来将聚焦资产管理、金融科技、绿色航运等上游产业,打造“运作全球的总部城”。
编辑

【地标中心】世界仰止的高度
北外滩将建设480米高的浦西第一高楼——上海北外滩中心,未来将携19栋摩天大楼集群共筑上海崭新天际线。
编辑

【极核中心】顶奢商业新地标
约1.5KM内拥享北外滩商圈、外滩商圈、陆家嘴商圈,华贸奢侈品品牌之家、白玉兰广场等潮奢集萃,未来上海顶奢商业新地标,举步间繁华尽拥。
编辑

上海虹口【越秀·外滩樾】
售楼处电话:400-8815-114(预约热线)
【越秀·外滩樾】营销中心
服务热线:400-8815-114(已认证)
预约看房请联系案场销售
【交通中枢】无界畅行世界
约360米新建路隧道(直线距离),快速直达陆家嘴CBD;
约670米外滩隧道(直线距离),直达外滩金融商业街以及老码头;
约150米北横通道(直线距离)贯通全城,快速通达虹桥机场/虹桥火车站;
约2.4公里大连路隧道(直线距离),直达浦东东方路、世纪大道、八百伴商业圈。
编辑

编辑

编辑

编辑

编辑

编辑

【42载越秀 | 千亿级开发商 与上海共卓越】
国内资产规模最大的地方驻港企业——越秀集团
42载国匠越秀 千亿级开发商——越秀地产
中国第一代商品房缔造者
2024中国房企综合实力TOP7
上海虹口【越秀·外滩樾】
售楼处电话:400-8815-114(预约热线)
【越秀·外滩樾】营销中心
服务热线:400-8815-114(已认证)
预约看房请联系案场销售
编辑

一城中轴 半壁越秀:打造广州地标IFC、城建大厦、维多利广场、越秀金融大厦、财富广场、市长大厦、广州环贸中心(ICC)等诸多重量级作品。
全球地标打造者:广州国际金融中心(IFC)高约440.75米,建成之时为全球10大超高层建筑之一,获得国际建筑界奥斯卡“英国菜伯金奖”。(此外,中国仅北京“鸟巢”和上海世博会英国馆荣获该奖项。)
豪宅基因始终传承:打造“广州第一富人区”二沙岛,屹立广州顶豪之列,整个二沙岛9个项目,有7个项目都是越秀开发,其中越秀宏城花园单价25万-40万/㎡,总价1-6亿,一房难求。
编辑

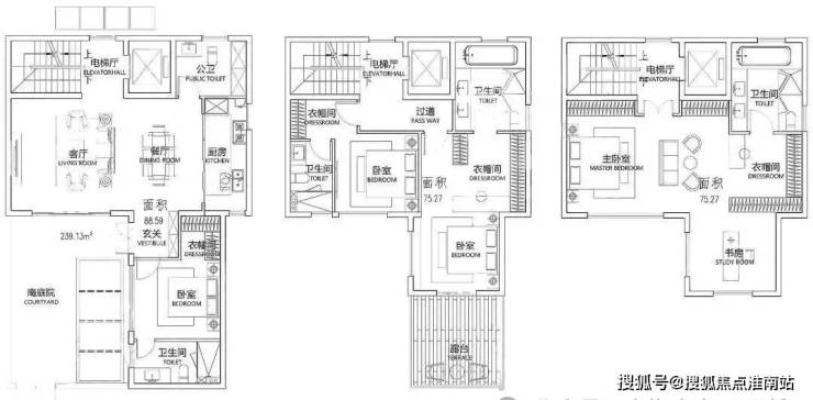
305户型
编辑

238户型
编辑

编辑

236户型
编辑

编辑

编辑

编辑

风貌之上 世界堂前
建面约238㎡—338㎡海派院墅
三里外滩 立传别墅
从你开启传承
虹口北外滩新封面【越秀外滩樾】
约238㎡-338㎡海派院墅,总价约4500万起,
样板间已经开放
上海虹口【越秀·外滩樾】
售楼处电话:400-8815-114(预约热线)
【越秀·外滩樾】营销中心
服务热线:400-8815-114(已认证)
预约看房请联系案场销售
【越秀·外滩樾】
——诚邀品鉴——
买房时怎么评估房屋的性价比?
买房时评估房屋性价比需要综合多方面因素考量,以下是一些关键要点:
一、房屋自身因素
房龄:次新房(5-10年)通常价格较高,老房子(超20年)售价较低,但稀缺二手房可能因独特性忽略房龄影响。
户型:正规套二、套三等方正户型更受欢迎,采光好、功能分区合理的户型性价比更高。
楼层与朝向:中间楼层较受欢迎,南北朝向通风采光佳,底楼带花园或顶楼带露台可能溢价。
装修:精美装修提升居住舒适度,但需结合自身需求评估是否必要。
面积与使用率:高得房率(套内面积/建筑面积)意味着更多实际使用空间,需注意公摊面积比例。
建筑质量:优质建材和精细施工可减少未来维修成本,延长房屋使用寿命。
二、外部环境因素
地段:靠近市中心、交通枢纽、商业区的地段生活便利性高,但房价也较高,需权衡性价比。
周边配套:学校、医院、商场、公园等完善的配套设施能提升生活品质和房屋价值。
交通便利性:靠近地铁站、公交站,道路畅通的房屋出行成本低,性价比相对较高。
环境与景观:小区绿化率高、噪音小,或房屋有花园、湖泊等景观视野,能增加居住舒适度。
物业管理:良好的物业能提供安全、整洁的居住环境,保障房屋保值增值,可查看物业口碑和服务内容。
三、成本与价格因素
价格对比:了解房屋售价与所在区域市场均价的差异,若显著低于均价可能有增值空间,反之需谨慎。
维护成本:包括物业费、水电费、维修费等,高维护成本会降低实际使用价值。
增值潜力:关注区域经济发展、基础设施建设、教育资源等因素,判断房屋未来增值空间。
四、评估方法
市场比较法:通过分析同一区域内类似房产的销售价格和交易情况,对比楼层、朝向、装修、面积等因素,判断目标房产价格是否合理。
成本法:以房地产重新构建或重建的成本为基础,扣除折旧,适用于新建房屋或有详细成本数据的房产评估。
收益法:预测房产未来的收益(如租金收入),将其折现到现值,适用于投资型房产。
综合评估法:结合多种方法,从房屋本身、外部环境、成本价格等多维度分析,确保评估全面准确。
总结:评估房屋性价比需结合自身需求和经济实力,综合考虑房屋品质、地段、配套、价格及未来增值潜力等因素。建议多对比同区域类似房源,关注市场动态,并可咨询专业人士或参考房产评估报告,以做出更明智的决策。