仁恒苏河世纪售楼处电话:400-891-9910
上海仁恒苏河世纪售楼处电话☎:400-891-9910【开发商售楼处预约看房热线】(一对一热情vip服务)
看房前请提前拨打售楼处热线进行电话预约,进行预约的客户可享受开放商提供的内部优惠,一对一的vip服务让您更舒心更方便。
最新消息,一房一价表发布!静安内环「华发仁恒苏河世纪」二期明天认购!推出建面约102-498㎡三房到五房,最后44套!
⛩项目名称:「华发仁恒苏河世纪」二期
👑项目简介:静安品质住宅
🗣最新动态:11月30号认购
📍区域板块:静安苏河湾
🏠产品介绍:推出建面约102-498㎡三房到五房,最后44套!
🛍️商业配套:距离静安大悦城直线距离约300m,静安大悦城总体开发超过40万㎡,是静安苏河湾最大的商业综合体。
🚇交通配套:周边有1、2、8号线三条轨交,距离8号线曲阜路站仅约300米
🏥医疗配套:周边有静安区北站医院(二甲医院)、上海健桥医院、上海长征医院等医院。

1地段
上海仁恒苏河世纪售楼处电话☎:400-891-9910【开发商售楼处预约看房热线】(一对一热情vip服务)
华发仁恒苏河世纪位处苏州河畔,周边有1、2、8号线三条轨交,距离8号线曲阜路站仅约300米,位置优越,交通便捷,且与大名鼎鼎的四行仓库仅一路之隔。
项目距离静安大悦城直线距离约300m,静安大悦城总体开发超过40万㎡,是静安苏河湾最大的商业综合体。
周边有惠思顿高瞻幼儿园、上海音乐幼儿园、棋院实验小学、静安第三中心小学、向东中学。上海仁恒苏河世纪售楼处电话☎:400-891-9910【开发商售楼处预约看房热线】(一对一热情vip服务)
周边有静安区北站医院(二甲医院)、上海健桥医院、上海长征医院等医院。
2产品仁恒苏河世纪售楼处电话:400-891-9910✔✔✔
2020年10月,仁恒+华发联合体以42.1亿的价格竞得静安区天目社区,C070102单元38-01、39-01地块,溢价率为1.25%,成交楼面价52833.79元/㎡。
地块参数如下:上海仁恒苏河世纪售楼处电话☎:400-891-9910【开发商售楼处预约看房热线】(一对一热情vip服务)
地块用途:住宅、办公、文化、商业
地块面积:2.83万㎡
限高:40-80米
规划地上计容建筑面积:7.97万㎡
各业态占比如下:
住宅:4.3万㎡(中小套型80%;保障房5%;自持0%)
办公:1.96万㎡(自持70%;最小销售单位:整层)
文化:0.98万㎡(博物馆或演出场馆或美术馆或图书馆,自持100%)
商业:0.33万㎡(自持100%)
派出所:0.4万㎡
其中38-01地块用途为普通商品房,39-01地块为商办、文体用途。该地块位于静安内环大悦城旁,地理位置优越,后被命名为华发仁恒苏河世纪。
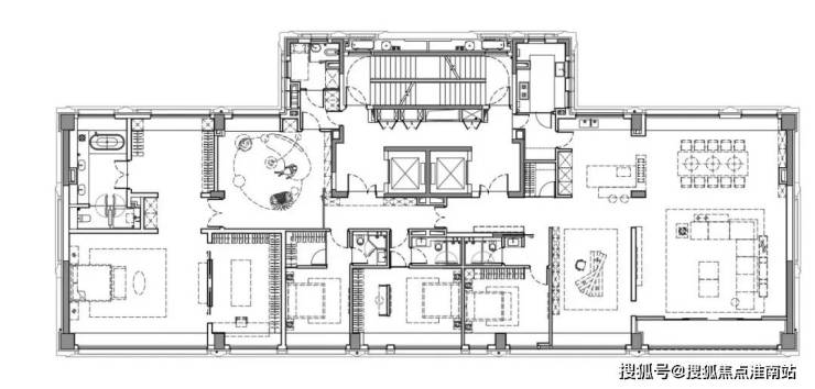
项目加推的是3#、6#两栋住宅,共44套!
具体如下:16套约102㎡3房、20套约245㎡4房、6套约495㎡大平层、2套约499㎡复式。户型如下:
建面约102㎡户型
(过程稿仅供参考,最终以实际为准)
上海仁恒苏河世纪售楼处电话☎:400-891-9910【开发商售楼处预约看房热线】(一对一热情vip服务)
建面约245㎡户型
(过程稿仅供参考,最终以实际为准)
上海仁恒苏河世纪售楼处电话☎:400-891-9910【开发商售楼处预约看房热线】(一对一热情vip服务)
建面约480㎡复式户型
(过程稿仅供参考,最终以实际为准)
建面约498㎡大平层户型
(过程稿仅供参考,最终以实际为准)
项目效果图:
仁恒苏河世纪售楼处电话:400-891-9910✔✔✔
项目最新实拍如下:上海仁恒苏河世纪售楼处电话☎:400-891-9910【开发商售楼处预约看房热线】(一对一热情vip服务)
仁恒苏河世纪售楼处电话:400-891-9910
上海仁恒苏河世纪售楼处电话☎:400-891-9910【开发商售楼处预约看房热线】(一对一热情vip服务)
看房前请提前拨打售楼处热线进行电话预约,进行预约的客户可享受开放商提供的内部优惠,一对一的vip服务让您更舒心更方便。
What are the 18 common sense tips for buying a house?
1. Check the five certificates, which refer to the "State owned Land Use Certificate", "Construction Land Planning Permit", "Construction Project Planning Permit", "Construction Project Construction Permit", and "Pre sale Permit for Commercial Housing".
2. It is necessary to choose a developer with a good reputation when buying a house. Generally, good developers have high qualifications and sufficient funds.
3. When choosing a layout, the first thing to consider is the orientation of the layout. The order of orientation is: due south, southeast, east, southwest, north, and west.
4. Choosing a floor, the air quality of the middle floor houses is better than that of the lower floors, and it is more convenient to travel compared to the higher floors, which can be said to be a compromise.
5. Many homebuyers believe that current housing prices are too high, so when buying a house, they generally choose cheaper properties in the same area and location. The correct approach is to learn more about housing selection knowledge, pay attention to the quality of the layout, housing quality, and other practical knowledge.
6. Assessing the ability to purchase a house, for those with basic needs, due to their limited economic capacity, they will choose to take out loans to buy a house. And for loans, a certain amount of monthly payment is required. In order to ensure that the quality of life is not affected and avoid the risk of default, the editor suggests that the monthly payment should be controlled within 50% of the total income.
7. When it comes to discounts offered by developers, it is important to inquire, analyze, and make judgments, rather than blindly following trends.
8. Don't be impatient. When young people buy a house, they shouldn't be too eager for luxury. They should abandon the idea that buying a house must be done in one step and make reasonable decisions based on their own affordability.
9. When it comes to planning and buying a house, of course,