招商·林屿湖畔售楼处电话☎:400-998-9694 招商·林屿湖畔售楼处电话☎:400-998-9694
招商·林屿湖畔
售楼处电话☎:400-998-9694
如有问题欢迎来电咨询,来电即可享受买房优惠!
预约来电尊享购房优惠,可预约案场内部销售人员,专业一对一热情服务,让您用专业眼光去买房。
招商·林屿湖畔售楼处电话☎:400-998-9694
“卷王”再放核弹级大招
招商玺系立面美学,远香湖4.0迭代湖畔奢居产品
嘉定远香湖CAZ压轴封面作品
招商·林屿湖畔
将推建面约112-145㎡小高层+约165㎡低密湖居叠墅
将于明日7月12日样板预约接待
招商·林屿湖畔售楼处电话☎:400-998-9694

项目信息
上海2批次土拍中,4家开发商经过49轮举牌,最终 招商蛇口以总价26.6亿元斩获 嘉定新城F03A-4地块,楼板价31850元/㎡, 溢价率高达30%,到达封顶价,并触发双高双竞!
招商高端系社区配置问鼎外环!首个隐奢度假酒店式峡谷秘境社区

招商·林屿湖畔售楼处电话☎:400-998-9694
招商·林屿湖畔」定位打造湖居沉浸式奢居新标杆!
以"自然而然的贵重"为设计灵魂,为当代高净值人群量身打造"重回一倍速"的湖畔度假生活方式。
游艇级美学外立面昭示性十足
外立面承袭招商玺系的经典游艇风格,采用了 游艇级弧形铝板切割工艺,结合 大面积玻璃组成,游艇美学高层呼应湖畔最高地标未来塔,低层墅区与立体庭园呼应城市公共绿境,以L型建筑阵列的美学灯塔形态嵌入城市天际线,封面级社区昭示性十足!

招商·林屿湖畔售楼处电话☎:400-998-9694
豪宅级公区打造“归家十二境”
为充分利用核心景观的独特自然风貌,将十二维归家景观体系从 城市界面、迎宾主入口车马院、归家大堂、下沉庭院、地下会所、景观风雨连廊、架空空间、地上大堂、中央景观轴、宅前景观以及入户门头,打造回应自然、林屿之感,精雕细琢生活小场景,让归家的旅程也是放慢速度的惬意环境。

招商·林屿湖畔售楼处电话☎:400-998-9694
项目打造了约87米艺术门庭+半程车马院,可容纳特别加长版林肯通行,犹如奢华酒店恢弘气势,拉足了归家仪式感与尊崇感!
步入式归家大堂拥有约13.7米建筑层高,视觉锤设计,模拟甲板视野,打造超越常规视觉震撼力!
项目阳光地库也是设计感拉满,打破传统地库的封闭感,引入自然天光,更以地下光厅与安第斯雪景奢石背景墙等设计,让归家成为一场诗意旅程。
招商·林屿湖畔售楼处电话☎:400-998-9694
峡谷式立体景观层次感惊艳

招商·林屿湖畔售楼处电话☎:400-998-9694
核心景观为 峡谷式立体景观,与外部自然植被融为一体。打造约420㎡的垂直社区景观的立体感层次,细节可圈可点。通过多层次、立体化的景观营造,创造一座 “漂浮的绿洲”,九重层次下沉庭院,区域悬浮泳池+4.3米飞瀑设计,塑造极致度假感受,丰富的视觉奇观。 以洄游式曲折路径与风雨连廊设计,甄选世界数十余种珍贵树木,营造 多重游园动线,为庭院景观赋予不同互动体验。 约2900㎡地上地下双会所配置



招商·林屿湖畔售楼处电话☎:400-998-9694
以私享游艇为理念,打造 地上地下双会所系统, 共约2900㎡全维功能空间, 这样的高能级配置问鼎整个外环!满足运动、社交、休闲等高品位生活方式,满足都市菁英圈层对社区品质的高标准需求!
立体下沉会所(约1200㎡)
约1200㎡会所,以 私宴厅、瑜伽室、棋牌室、壁球室和健身房空间为主,功能丰富,匹配当代精英的生活与精神需求。立体下沉会所由 艺术旋转楼梯进入,整块 白木纹石材切割+宝格丽粉镶边设计的旋转楼梯,营造社区高雅氛围,步步生花。 区域首创国标壁球馆、飞瀑园景健身房、嵌入式景观书吧等,整体统一化仿树榴木纹贴面,还原内外统一的高级度假酒店质感。



无界架空空间(约1700㎡)


招商·林屿湖畔售楼处电话☎:400-998-9694
社区内5/8高层楼栋均有架空空间覆盖,共计约1700㎡, 最高建筑层高约7.2米的架空空间以 休闲下沉卡座、水吧台、休闲会客区打造,联动室外水池营造出酒店式度假空间,实现建筑与自然的无界融合。 空间革新与收纳哲学:从单一居住功能,到慢奢生活空间营造

招商·林屿湖畔售楼处电话☎:400-998-9694
整个社区由16-17层小高层+6层叠墅产品组成,容积率仅约2.2,低密宜居,户型尺度与视野的革命,无论高层还是叠墅产品,空间尺度与视野设计均突破常规。

项目在户型打造上相当出彩!
承袭此前市中心顶豪的 优秀室内设计标准,不计成本的 从公区卷到室内空间,由此呈现出项目对人居空间 收纳细节、采光效果、景观视野等考量,无一不体现匠心做好品质标杆的决心!
建面约122㎡3房2厅2卫双阳台:
进阶舒适改善户型!三口之家或三代同堂宜居!
三开间朝南设计,采光视野相当不错!
进门玄关步入式收纳空间,仪式感与实用性拉满!
厨房、餐厅、客厅及阳台一体化设计, 层高迭代至约3.15米,尺度感十足!
南北双阳台配置+(边套)主卧约 270°转角飘窗,居住舒适度、景观视野满分!
南次卧飘窗设计,有效延伸室内空间
招商·林屿湖畔售楼处电话☎:400-998-9694
北房间+阳台,实现超面积使用感!打造奢阔居住体验~ 值得一提的是,约122㎡户型全屋交付收纳量达约8.2㎡!

招商·林屿湖畔售楼处电话☎:400-998-9694
约等于约205个20寸行李箱(40L)的收纳空间,围绕12 种场景应用,让各类物品都有归属,堪称招商收纳魔法!
玄关收纳:约1.75m³收纳空间,甚至可以收纳一辆山地自行车
厨房收纳:利用烟机管道两侧空间,收纳五谷杂粮;高柜安装天使拉篮等,让厨房实现普通户型约1.5倍的操作台空间(借用飘窗)
卫浴收纳:底部沥水层板+化妆镜、集成架、卫浴柜下翻板设计、预留扫地机位置+门板置物
建面约112㎡3房2厅2卫双南阳台:
年轻家庭舒适改善户型!三口之家或三代同堂宜居!
招商·林屿湖畔售楼处电话☎:400-998-9694
三开间朝南设计的全明户型, 双南阳台+主卧约270°转角飘窗,层高 约3.1米,空间感、采光视野都相当不错! 建面约145㎡4房2厅2卫3阳台户型:

招商·林屿湖畔售楼处电话☎:400-998-9694
四开间朝南设计奢阔户型,搭配双门厅设计,半敞阳台及自由式飘窗,预计实际使用率约可达约87-91%,足以媲美约160㎡+尺度!
双南阳台+北阳台+约270°景观飘窗设计,有效延伸室内空间,空间相当奢阔!
主卧套房拥有充足衣帽收纳空间、双台盆主卫,生活仪式感满满!
餐厅设计了收纳柜空间,相当人性化!
客卫三分离设计,台盆外置更合理!
全屋交付收纳量达约8㎡约等于205个20寸行李箱(40L)的收纳空间,预留收纳约11㎡。
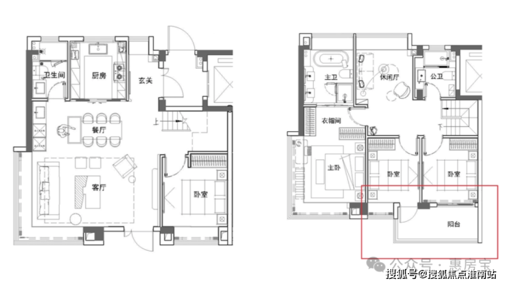
叠墅户型首曝:
建面约168m下叠,4房2厅3卫,共计约38套,独立入户玄关,附带地下室+花园,首层横厅+南向次卧+北向1厨1卫,二层三个卧室全朝南+北向公共休闲空间;边套户型客厅以及主卧为270°飘窗!
下图为边套户型过程稿,红框线范围内可能会对另外一个次卧的飘窗位置进行优化,优化为阳台,也就是南白两个次卧均带阳台!

招商·林屿湖畔售楼处电话☎:400-998-9694
建面约163m上叠,4房2厅3卫,共计约38套,上叠的户型布局其本与下叠一致,附赠南北露台,边套户型的客厅以及主卧同样也是270°飘窗!
下图为边套户型过程稿,红框线范围内可能会优化,一是客厅飘窗位置可能会优化为阳合,变为南向双阳台;是六层南白次卧飘窗位置优化为露台,两个次的露合连通!

招商·林屿湖畔售楼处电话☎:400-998-9694
建面约165m大平层,4房2厅3卫,共计约37套,一梯一户,五开间朝南,约8.6米横厅,双套房设计,边套户型主卧为270°转角飘窗!
下图为边套户型过程稿,红框线范围内可能会对餐厅位置飘窗进行优化,优化为阳合,使客餐厅阳台贯通!

招商·林屿湖畔售楼处电话☎:400-998-9694
板块信息
招商远香湖项目位于嘉定新城F03A-4地块,是嘉定新城核心区的中心——远香湖CAZ,是嘉定中心中的中心。
招商嘉定新城位于嘉定新城的核心位置,是远香湖中央活动区最后一幅宅地。

招商·林屿湖畔售楼处电话☎:400-998-9694
四至范围内现状及规划情况:项目南侧为温州嘉定科技创新园区,目前已基本建成。项目北邻伊宁路,伊宁路北侧为绿地公园以及运动场、公厕、伊宁路污水泵站,可能会有一定的噪音等影响;实地看下来,伊宁路污水泵站很小,基本对项目无影响;


招商·林屿湖畔售楼处电话☎:400-998-9694
该泵站主要承担伊宁路以北,A30以南污水,以及伊宁路以南,永盛路以东,封周路以北范围的污水提升任务:
污水将通过阿克苏路、伊宁路污水主干道进入该泵站经过提升输送到污水处理厂;
项目东侧规划为一幅教育科研设计用地,限高50米;

项目西侧规划为公共绿地以及河道;

招商·林屿湖畔售楼处电话☎:400-998-9694

招商·林屿湖畔售楼处电话☎:400-998-9694
这里成片的商品房大多建成于2010年以后,整体城市界面崭新,从控规也能看出, 项目周边学校、商业、办公和绿地公园应有尽有,且大多配套都是现成的。

招商·林屿湖畔售楼处电话☎:400-998-9694
嘉定新城远香湖CAZ定位嘉定新城的综合功能中心与城市形象集中展示区,集聚国际住区、大型商业集群、摩天地标集群、科创科研企业集群、国际教育文化等功能为一体。(规划来自上海嘉定微信公众号)北侧有 远香湖、保利大剧院、嘉定图书馆老三大件配套,以及地标级超高层建筑凯悦酒店。

招商·林屿湖畔售楼处电话☎:400-998-9694
未来,远香湖核心区还将建设 文化环、未来塔、活力谷等城市“新三件套”,也在项目周边。 文化环:除了现有嘉定图书馆、保利大剧院、江南书院、尚画美术馆外,围绕着远香湖未来还将打造立体儿童乐园、航模活动中心、嘉昆太路演中心等一系列高能级文化设施。

招商·林屿湖畔售楼处电话☎:400-998-9694
未来塔:位于CAZ的正中央,建成约300米,将成为嘉定甚至是上海西北第一高楼,是真正的C位地标
活力谷:集商业和办公于一体的休闲创意街区。 交通方面,目前项目直线距离11号线白银路站和嘉定新城站约2 km,直达徐家汇,多维轨交网络加速成型。值得一提的是未来轨交还在升级! 嘉定快线、宝嘉线规划中(远香湖预计设站),未来建成出行将更加便捷!!

招商·林屿湖畔售楼处电话☎:400-998-9694

招商·林屿湖畔售楼处电话☎:400-998-9694
教育方面,参考25年学校划分政策,该项目所在的区域可参与上实嘉定新城分校的摇号,对口的学校为交大附属嘉定新城实验学校(期房不承诺学校对口,以上为25年政策,仅供参考!) 商业方面,项目步行至宝龙广场约900米左右,另外周边2公里范围内还有万达、TSF购物中心等商业,可完全满足日常消费需求! 医疗方面,距离项目约1.4公里有交大医学院附属瑞金医院(三甲)!

招商·林屿湖畔售楼处电话☎:400-998-9694


招商·林屿湖畔
售楼处电话☎:400-998-9694
如有问题欢迎来电咨询,来电即可享受买房优惠!
预约来电尊享购房优惠,可预约案场内部销售人员,专业一对一热情服务,让您用专业眼光去买房。
招商·林屿湖畔售楼处电话☎:400-998-9694
楼盘项目全面介绍,本电话为开发商提供线上预约售楼电话,楼盘项目全面介绍(包含楼盘简介,均价,房价,现房,期房,别墅,叠墅,大平层,价格,楼盘地址,户型图,交通规划,备案价,备案名,项目配套,样板间,开盘时间,认筹时间,楼盘详情,售楼处电话,最新消息,最新详情,周边配套,一房一价,最新进展等详情咨询)楼盘详情丨价格丨更多优惠丨机不可失丨欢迎致电丨诚邀品鉴!售楼处位置丨特价房丨工抵房丨剩余房源丨户型图丨最新消息丨免责声明:将文章内容综合来源于网络、只作分享,版权归原作者所有!!如有侵权,请联系我们,我们第一时间处理如有问题欢迎来电咨询,专业一对一热情服务,让您用专业眼光去买房。如果您想了解更多楼盘详情,欢迎提前预约拨打