美兰金色宝邸
售楼处电话☎:400-9659-259✔✔
如有问题欢迎来电咨询,来电即可享受买房优惠!
预约来电尊享购房优惠,可预约案场内部销售人员,专业一对一热情服务,让您用专业眼光去买房。
宝山作为长三角枢纽存在,被纳入主城区,开启新一轮时代红利,以北郊未来产业园为转型驱动,致力打造北上海新兴产城中心, 城市资源全面升级。
编辑

上海宝山「美兰金色宝邸」
整个宝山,刚需盘其实并不少,尤其是大华在宝山深耕多年, 打造了不少板块内的刚需改善标杆。
但要是问起,宝山有没有什么终极改善类的代表作,那么这个项目不得不看。
【美兰金色宝邸】
金水湖畔类独栋别墅
建面约:300~500㎡
总价约:1000万起/套
55席臻藏
现房销售中
编辑

售楼处电话☎:400-9659-259✔✔
金水湖畔类独栋别墅
【宝山·金色宝邸】
建面约:300~500㎡
55席臻藏 现房销售
01.
一核二轴三带核心区;
2035战略定调!
项目所处的罗泾位于上海市北部,是宝山区城市建设区及上海国际航运中心的组成部分,规划以
一核:罗泾公园为生态核心
二轴:以陈功路、罗宁路为城镇发展轴,、
三带:荻泾河、小川沙河、陶家河绿化景观带环绕;
建设成为以中高档居住为主体,融行政办公、商业服务、文化教育、休闲娱乐等多元功能为一体的水韵生态城。
美兰金色宝邸 ,正处于一核、二轴、三带的核心交集,中心区位天然优越,尽享城市发展黄金轴线带来的便捷生活及无限价值。
编辑

售楼处电话☎:400-9659-259✔✔
随着“2035”战略规划定调,北郊迎来交通焕新, 形成“二纵一轨”立体交通。
S7沪崇高速的一期在建、沪太路快速化将促进交通路网的焕新升级;规划中运量交通接驳轨道交通7号线 ,实现快速通达市区。
编辑

上海北郊未来产业园是浦东金桥股份与宝山工业园区合作的科技产业园项目,承载区域产业转型任务,助力打造“上海制造”品牌, 着力推动机器人、高端装备、关键智能部件等领域的研发和产业化。
智能制造、新材料、移动互联网和健康产业等四大产业将成为支柱产业。
编辑

也因此,整个板块在产业能级上,将得到全新的升级, 罗泾未来也预计将导入更多的产业人才。
02.
仅55栋稀缺类独栋别墅;
经典优雅英伦风格!
再来跟大家分享一下项目的产品力。
【美兰金色宝邸】由上海顾村房地产开发(集团)有限公司开发的罗泾B1-4地块居住小区(金色宝邸)。
编辑

小区由4幢小高层和55栋联排住宅构成。房源建面约300㎡~398㎡,总价约1000万起/套。
编辑

售楼处电话☎:400-9659-259✔✔
小区建筑采用 经典优雅英伦风格,近邻115亩罗泾公园仅500米,不仅饱览自然风光,更如同拥有一个天然大氧吧,时时刻刻空气清新。
编辑

编辑

编辑

售楼处电话☎:400-9659-259✔✔
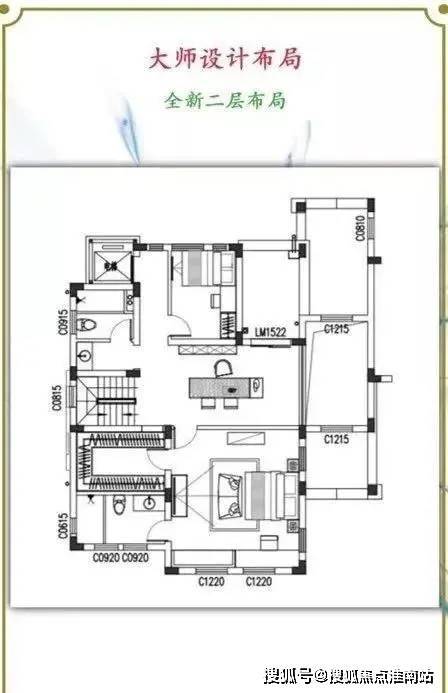
以下是项目户型图:
编辑

编辑

编辑

编辑

以下是项目实景样板间:
编辑

编辑

编辑

编辑

编辑

编辑

编辑

编辑

编辑

售楼处电话☎:400-9659-259✔✔
03.
10分钟接驳7号线&1号线;
尽享便捷生活圈!
最后再来跟大家分享一下 项目周边的生活配套。
项目位于罗泾镇中心区,周边配套成熟,罗泾中学、罗泾镇卫生服务中心仅一河之隔,周边成熟小区林立, 项目西侧地块系规划商业地块,坐享城市便捷生活。
10分钟内接驳轨道交通7号线美兰湖站及1号线富锦路站,尽享成熟便捷交通,出行无忧。
编辑

公共交通:潘沪路罗宁路 (281米) 、潘泾路潘沪路 (330米) 、罗宁路潘沪路 (400米) 、宝虹家园 (464米) 、潘泾路陈川路 (507米) 、罗宁路陈川路 (589米)
教育资源:罗泾中学(234米) 、宝山区罗泾镇第二幼儿园(461米) 、罗泾镇中心幼儿园(925米) 、上海市宝山区罗泾中心校(947米) 、罗泾中心小学(949米) 、罗泾镇中心幼儿园(993米)
商业配套:世纪华联潘沪店NO.2023(117米) 、宝山区宝雄杂货店(133米) 、如海超市(飞翔店)(148米) 、良友金伴(潘沪路)(198米) 、光明便利(潘沪店)(208米) 、百新杂货店(217米)
医疗资源:罗泾镇社区卫生宝丰站(3053米) 、罗泾镇社区卫生服务中心(272米)
银行配套:上海农商银行陈行分理处(969米) 、上海农村商业银行(罗泾支行)(973米) 、上海农商银行ATM(973米) 、上海农村商业银行ATM(罗泾支行)(974米) 、中国邮政储蓄银行(罗泾支行)(986米)
编辑

售楼处电话☎:400-9659-259✔✔
其它及饮食:豪大大鸡排(266米) 、赵鱼头(507米) 、赵鱼头成通酒家(553米) 、成通大酒店(555米) 、森绿人家常菜馆(674米) 、都是客酒店(罗泾店)(683米) 、水上饭店(陈镇路)(695米)、宝祥桥(51米) 、小朱桥(114米) 、宝一房产(120米) 、村夫烤鱼(690米) 、徐介路(333米)
美兰金色宝邸
售楼处电话☎:400-9659-259✔✔
如有问题欢迎来电咨询,来电即可享受买房优惠!
预约来电尊享购房优惠,可预约案场内部销售人员,专业一对一热情服务,让您用专业眼光去买房。