【澜庭壹号院】
苏州【澜庭壹号院】售楼处电话:400-8815-114(预约热线)
【澜庭壹号院】营销中心服务热线:400-8815-114(已认证)
预约看房请提前联系驻场销售

项目基础档案项目名称:
澜庭壹号院地块信息:苏地2024-WG-Z31号地块项目地址:苏州高新区狮山商务创新区向阳路南、大运路西开发品牌:苏高新集团&绿城管理住宅指标: 占地约3.6万方,容积率1.2,总建约4.4万方产品规划:17栋3F联排/2栋6F叠加/2栋10F洋房,约205户户型面积:约115㎡/135㎡墅境洋房;约215㎡/236㎡/259㎡见山叠墅;约271㎡/325㎡/369㎡山水和院装修状态:洋房精装、墅类毛坯销售信息:24.11.28拿地,楼面价25155元/平

▲项目效果图
【苏州笔记大全】2024苏州楼盘笔记大全(收藏版)【新区笔记集锦】绿城·逸庐|狮山CBD隐逸藏品【新区笔记集锦】龙湖山河颂|狮山地标级大平层【新区笔记集锦】5.05W!中海狮山云起·中海6.0科技大宅
【新区笔记集锦】狮山·仁恒澜庭雅致202311开盘
【新区笔记集锦】芳菲澜院|新区南大旁·低密联排别墅

▲新区狮山置业地图

—— 苏高新集团有限公司 ——
苏州【澜庭壹号院】售楼处电话:400-8815-114(预约热线)
【澜庭壹号院】营销中心服务热线:400-8815-114(已认证)
预约看房请提前联系驻场销售
苏州苏高新集团有限公司(“苏高新集团”)是苏州高新区管委会直属的重点国有企业,成立于1990年。秉持“让城市生活更美好”的品牌理念,深耕苏州,自2015年首个“澜”系作品至今已打造山水樾澜院、狮子山澜院等标杆项目。“澜院”系是由苏高新集团匠心筑造的低密墅境序列,着力塑造高品质低密标杆作品。

—— 绿城管理控股有限公司 ——
绿城管理控股有限公司及其附属公司(合称“绿城管理”),是中国房地产轻资产开发模式的先行者、引领者。绿城管理成立于2010年,2024年绿城管理稳居行业榜首,2024年新拓代建面积达到3649万平方米,领先第二名多达一倍。
涵盖128个城市,总建筑面积122.8万平米(其中商业代建90.1万平米、政府代建32.7万平米),在建面积3.2万平米(数据截止2024年6月30日)。


◆狮山芯 国际会客厅
落子狮山核心区,狮山商务创新区聚焦世界目光,交通、教育、产业、商业等国际化生活配套环伺,城市顶豪人居聚集地。
苏州【澜庭壹号院】售楼处电话:400-8815-114(预约热线)
【澜庭壹号院】营销中心服务热线:400-8815-114(已认证)
预约看房请提前联系驻场销售

◆5大名校云集 书香涵养
苏州外国语学校、高新区第一中学,外国语幼儿园(在建)、狮山实验小学、高新区第一初级中学等优质学府。(非学区承诺,具体以政府划分以及批文为准)


◆六大商业 繁盛万象
新区美罗、泉屋百货、狮山天街、山姆会员商店、金鹰百货、悠方购物中心、等大型城市综合体环伺,日常购物、社交聚会、娱乐休闲、品牌餐饮等一站式繁华。

◆城市坐标 1%先进文化生产力
狮山文化广场,苏州博物馆西馆、苏州科技馆、狮山大剧院等世界大师执笔地标林立,城市厚蕴与国际潮流在此握手,推动狮山迈向世界舞台。


◆智慧城央 科创企业活力区
板块内累计集聚外资企业超1300家,吸引了近30家总部认定企业入驻,拥有市场主体达8.5万家。

◆人才引力 撬动未来潜力
吸引25000+本科以上人才进驻,同时随着“一心”狮山路发展30余年,从城市地理空间上来看已然饱和。未来将依托“五园”,即从狮山路向长江路形成十字发展轴,上市企业总部园将成为狮山跃进下一站。

◆绿色产业 城市总部地标群
上市企业总部园,与本案仅一路之隔,总投资约13.9亿,产、学、研一体化发展定位为上市公司企业总部和数字经济企业总部园,2023年已交付竣工,2024年3月陆续入驻,目前总部园已吸引多家企业。
苏州【澜庭壹号院】售楼处电话:400-8815-114(预约热线)
【澜庭壹号院】营销中心服务热线:400-8815-114(已认证)
预约看房请提前联系驻场销售


◆现代美学的东方意志
【兴造墅学】园冶为魂苏作为艺营墅境

▲项目效果图(过程稿)
【现代美学】几何构图传承与横向舒展

▲叠加效果图(过程稿)
【东方屋檐】再现身份华贵的官帽符号

▲项目效果图(过程稿)
【雅灰流金】演绎奢而有度的色彩美学


▲建筑效果图(过程稿)
苏州【澜庭壹号院】售楼处电话:400-8815-114(预约热线)
【澜庭壹号院】营销中心服务热线:400-8815-114(已认证)
预约看房请提前联系驻场销售
04-户型信息
◎联排合院265㎡ · 4房3厅4卫

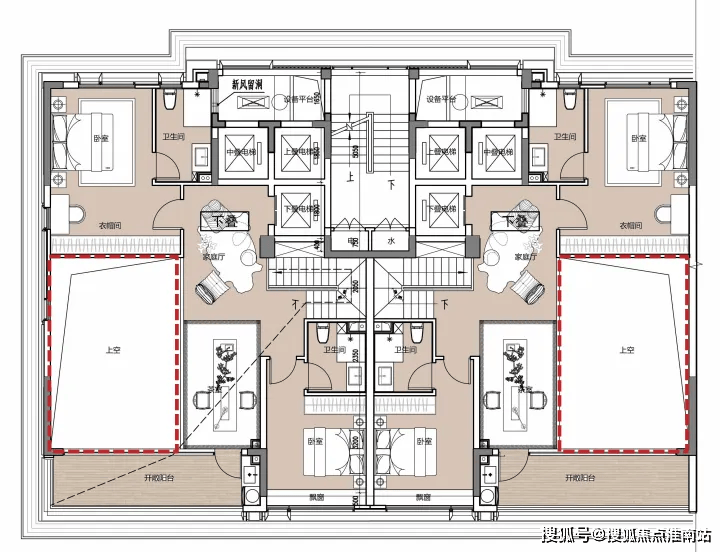
◎叠加下叠275㎡ · 3房3厅3卫

▲下叠1楼

▲下叠2楼
◎洋房 135㎡ · 3+1房2厅2卫


苏州【澜庭壹号院】售楼处电话:400-8815-114(预约热线)
【澜庭壹号院】营销中心服务热线:400-8815-114(已认证)
预约看房请提前联系驻场销售
【澜庭壹号院】
——恭迎品鉴——