联仲都悦汇售楼处电话:400-891-9910
闵行联仲都悦汇售楼处24小时热线电话:400-891-9910
上海闵行联仲都悦汇售楼处电话☎:400-891-9910【开发商售楼处预约看房热线】(一对一热情vip服务)
看房请提前致电预约,可享受内部渠道优惠!联系销售人员获取最新一房一价表,售楼处最新优惠底价!开发商销售人员将详细介绍每个户型的独特设计和优势,带您参观样板间,感受精装修的品质和温馨氛围。您还可以了解周边配套设施,包括高端购物中心、优质学校和便捷交通网络,让您的居住体验更加完美。
闵行 旗忠别墅区
低密法式别墅
「联仲·都悦汇」
主力面约262~306㎡联排别墅
第上三层+地下2层+大花园
总价约1398万起
目前“样板间”已开放
联仲都悦汇售楼处电话:400-891-9910
闵行联仲都悦汇售楼处24小时热线电话:400-891-9910
上海闵行联仲都悦汇售楼处电话☎:400-891-9910【开发商售楼处预约看房热线】(一对一热情vip服务)
【开发商】:上海联仲置业有限公司
【物业】:上海仲量联行物业管理公司
【容积率】:1.0
【绿化率】:35%
【车位比】:1:2.1
【物业费】:8元/㎡/月
【本次开盘】:14套
【物业类型】:商业联排别墅
【交付标准】:毛坯
【拿地时间】:2014年8月
【交房时间】:2023年6月
联仲都悦汇售楼处电话:400-891-9910
闵行联仲都悦汇售楼处24小时热线电话:400-891-9910
上海闵行联仲都悦汇售楼处电话☎:400-891-9910【开发商售楼处预约看房热线】(一对一热情vip服务)
在售户型:建面约310-410平米,地上三层地下一层
(地上:一层层高3.6米/二层层高3.4米/三层层高3.4米/地下层高5.4米)
总价:约1400-1800万️
单价:约5万/平米
小区整体商业:10万方(在建)南北双花园90-300平
水电:商水&商电,电1.3元/度,水6元/吨
产权车位:约30万左右

联仲都悦汇售楼处电话:400-891-9910
闵行联仲都悦汇售楼处24小时热线电话:400-891-9910
上海闵行联仲都悦汇售楼处电话☎:400-891-9910【开发商售楼处预约看房热线】(一对一热情vip服务)
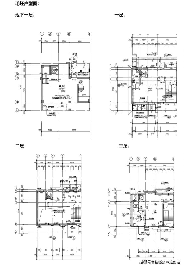
02.户型图及样板间照户
(特殊说明:户型朝向-上南下北)
约10.4米大面宽,面积达到55平
送电梯,北进门,南花园,超大地下室
客厅7米落地窗,采光明亮,尽显大气
约310平户型图▼

联仲都悦汇售楼处电话:400-891-9910
闵行联仲都悦汇售楼处24小时热线电话:400-891-9910
上海闵行联仲都悦汇售楼处电话☎:400-891-9910【开发商售楼处预约看房热线】(一对一热情vip服务)
约378~420平户型图▼

联仲都悦汇售楼处电话:400-891-9910
闵行联仲都悦汇售楼处24小时热线电话:400-891-9910
上海闵行联仲都悦汇售楼处电话☎:400-891-9910【开发商售楼处预约看房热线】(一对一热情vip服务)
约407~441平户型图▼
联仲都悦汇售楼处电话:400-891-9910
闵行联仲都悦汇售楼处24小时热线电话:400-891-9910
上海闵行联仲都悦汇售楼处电话☎:400-891-9910【开发商售楼处预约看房热线】(一对一热情vip服务)
样板间效果图如下:
联仲都悦汇售楼处电话:400-891-9910
闵行联仲都悦汇售楼处24小时热线电话:400-891-9910
上海闵行联仲都悦汇售楼处电话☎:400-891-9910【开发商售楼处预约看房热线】(一对一热情vip服务)
联仲都悦汇售楼处电话:400-891-9910
闵行联仲都悦汇售楼处24小时热线电话:400-891-9910
上海闵行联仲都悦汇售楼处电话☎:400-891-9910【开发商售楼处预约看房热线】(一对一热情vip服务)
联仲都悦汇售楼处电话:400-891-9910
闵行联仲都悦汇售楼处24小时热线电话:400-891-9910
上海闵行联仲都悦汇售楼处电话☎:400-891-9910【开发商售楼处预约看房热线】(一对一热情vip服务)
03.项目区位配套
联仲都悦汇售楼处电话:400-891-9910
闵行联仲都悦汇售楼处24小时热线电话:400-891-9910
上海闵行联仲都悦汇售楼处电话☎:400-891-9910【开发商售楼处预约看房热线】(一对一热情vip服务)
【联仲·都悦汇】位于闵行马桥旗忠别墅区,旗忠别墅区是上海老牌的富人区,与松江佘山、浦东东郊齐称为沪上三大国际别墅区。上海仅存少量的容积率0.18以下超低密度居住用地中,大多数在马桥旗忠别墅区。
板块以低容积率、生态自然环境和高端国际品牌配置,2010年被列为上海第二批大型居住社区之一。总建面约33万方城市综合体联仲都悦汇位于旗忠板块正核心,紧临网球中心,超10万方市政绿化所环绕。
【联仲都悦汇】同样是低密度别墅区里的一员,背靠绿城玫瑰园,容积率低至1.0。项目贯穿了3条自然水系,分为ABCD四个地块,其中ABC为商住办综合地块,自带商业办公。
联仲都悦汇售楼处电话:400-891-9910
闵行联仲都悦汇售楼处24小时热线电话:400-891-9910
上海闵行联仲都悦汇售楼处电话☎:400-891-9910【开发商售楼处预约看房热线】(一对一热情vip服务)
交通配套方面:项目距离嘉闵高架元江路出口3公里,毗邻G15、S32等快速主动脉,30分钟大虹桥,50分钟抵达浦东机场,快捷畅达全城。
联仲都悦汇售楼处电话:400-891-9910
闵行联仲都悦汇售楼处24小时热线电话:400-891-9910
上海闵行联仲都悦汇售楼处电话☎:400-891-9910【开发商售楼处预约看房热线】(一对一热情vip服务)
地铁:5号线华宁路站,剑川路站
公交:马莘专线:联工路站,闵行19路:银春路华宁路站
高速:嘉闵高架、沪金高速、虹梅南路高架 沪昆高速、申嘉湖高速、沪闵高架
高铁:距离上海虹桥枢纽站(高铁、机场)约20km
未来规划:嘉闵线延伸段
(以上数据来源于高德地图)

联仲都悦汇售楼处电话:400-891-9910
闵行联仲都悦汇售楼处24小时热线电话:400-891-9910
上海闵行联仲都悦汇售楼处电话☎:400-891-9910【开发商售楼处预约看房热线】(一对一热情vip服务)
商业配套方面:项目自带10万方商业,为旗忠唯一的综合性商业配套,其多元化的业态结构,结合旗忠独有的资源,必将带来旗忠全新生活方式。
联仲都悦汇售楼处电话:400-891-9910
闵行联仲都悦汇售楼处24小时热线电话:400-891-9910
上海闵行联仲都悦汇售楼处电话☎:400-891-9910【开发商售楼处预约看房热线】(一对一热情vip服务)
生态资源方面:项目周边有马桥森林公园、旗忠高尔夫球场、旗忠网球中心、韩湘水博园、养云安缦酒店等。
联仲都悦汇售楼处电话:400-891-9910
闵行联仲都悦汇售楼处24小时热线电话:400-891-9910
上海闵行联仲都悦汇售楼处电话☎:400-891-9910【开发商售楼处预约看房热线】(一对一热情vip服务)
教育资源方面:周边有复旦万科实验学校,德威英国国际学校、斯代文森国际高中、上海美高学校。幼儿园:元祥幼儿园、富杰幼儿园启英幼儿园,大学:上海交通大学、华东师范大学




联仲都悦汇售楼处电话:400-891-9910
闵行联仲都悦汇售楼处24小时热线电话:400-891-9910
上海闵行联仲都悦汇售楼处电话☎:400-891-9910【开发商售楼处预约看房热线】(一对一热情vip服务)
看房请提前致电预约,可享受内部渠道优惠!联系销售人员获取最新一房一价表,售楼处最新优惠底价!开发商销售人员将详细介绍每个户型的独特设计和优势,带您参观样板间,感受精装修的品质和温馨氛围。您还可以了解周边配套设施,包括高端购物中心、优质学校和便捷交通网络,让您的居住体验更加完美。
联仲都悦汇售楼处电话400-891-9910✔✔✔【开发商售楼中心热线】联仲都悦汇营销中心热线400-891-9910✔✔✔联仲都悦汇售楼处地址400-891-9910✔✔✔,楼盘项目全面介绍,本电话为开发商提供线 上预约售楼电话,楼盘项目全面介绍(包含楼盘简介,均价,房价,现房,期房,别墅,叠墅,大平层,价格,楼盘地址,户型图,交通规划,备案价,备案名,项目配套,样板间,开盘时间,认筹时间,楼盘详情,售楼处电话,最新消息,最新详情,周边配套,一房一价,最新进展等详情咨询)楼盘详情丨价格丨更多优惠丨机不可失丨欢迎致电丨诚邀品鉴!售楼处位置丨特价房丨工抵房丨剩余房源丨户型图丨最新消息丨免责声明:将文章内容综合来源于网络、只作分享,版权归原作者所有!!如有侵权,请联系我们,我们第一时间处理如有问题欢迎来电咨询,专业一对一热情服务,让您用专业眼光去买房。如果您想了解更多楼盘详情,欢迎提前预约拨打联仲都悦汇售楼处电话400-891-9910✔✔✔
购房前期准备
需求精准定位。
明确购房目的(婚房/学区/改善),优先匹配通勤半径、教育资源等核心需求。
计算总预算应涵盖首付(20%-50%)、税费(房价1%-3%)、装修费(1000-3000元/㎡)及月供(不超过家庭收入50%)。
市场调研方法。
通过住建部官网核查开发商资质(一级>二级>三级),优先选择国企/央企项目。
利用天眼查筛查开发商法律纠纷数量,若商品房预售合同纠纷超过5条需谨慎。
检索本地论坛「小区名+漏水/维权」等关键词排查潜在风险。
选房核心指标
地段评估维度。
增值要素:地铁站(500米内)、重点学区、大型商业体(3公里内)。
贬值要素:邻近高架/机场(噪音)、游乐场(人流混杂)、未落地规划概念区。
房屋硬性标准。
户型优选南北通透方正布局,开间与进深比1:1.5为佳,避开暗卫设计。
楼层选择遵循三分之二法则:总高30层选16-20层,总高20层选12-15层。
实测楼间距不得小于楼层总高1.2倍,冬至日光照需覆盖2小时以上。
质量鉴别要点。
雨天验收外墙/窗台渗水痕迹,夜间检测隔音效果。
强制要求查看毛坯现房,重点检查墙体空鼓率(单面墙≤3处)、水电管线布局。
合同与贷款规范
签约风险防控。
核对预售许可证对应楼栋号,防止跨栋冒用。
明确面积误差处理条款(±3%内据实结算,超3%可退房)及精装材料品牌清单。
贷款操作策略。
对比不同银行利率差异(最高差1%),优先选择支持延期还贷政策的大行。
公积金贷款需保持账户余额充足,提前还款需满1年且超过6期月供额。