(上海静安万科中兴傲舍售楼处)首页网站-2025万科中兴傲舍房价_楼盘评测丨地址丨详情丨万科中兴傲舍售楼处电话丨楼盘百科

淮南楼市观察

2025-09-27 08:40:57

购房群

买房如何避坑,加入购房群,看看他们怎么说

立即进群

上海静安万科中兴傲舍售楼处电话:400-9966-224✔✔【预约热线】万科中兴傲舍售楼处营销中心:400-9966-224万科中兴傲舍售楼处电话/地址☎:4009966224(开发商热线)如有问题欢迎来电咨询,专业一对一热情服务,让您用专业眼光去买房。

静安内环内翡翠系豪宅【万科·中興傲舍】16米挑空迎宾大堂屋顶露台法式小区园林加推建面约100-180-276-321-355㎡1-5房续销276-321少量房源可选 均价12.8万/㎡ 奢华精装交付 六月加推楼王面积335和355平

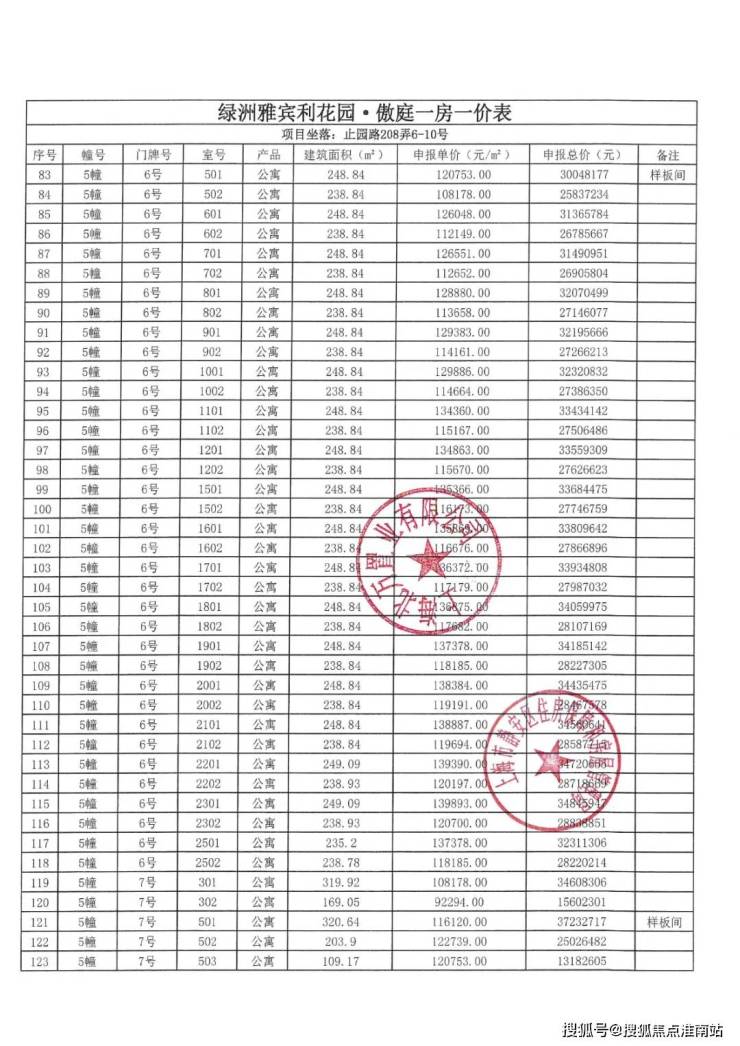
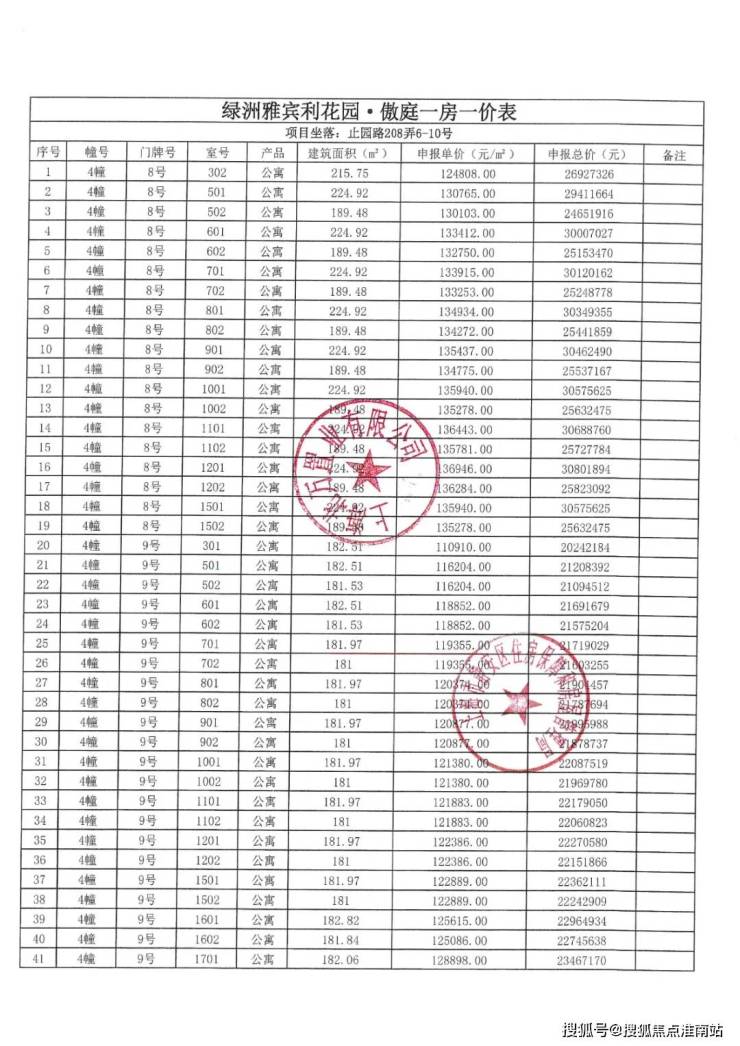
上期一房一价表如下:

作为建筑面积约355㎡的全景舱公园高定大宅”, 约355㎡高定样板间打破了标准化生产的逻辑,由全球第一家艾迪逊酒店缔造者GS(硬装概念)X MOZ SPACE摩兹设计(软装灵魂),以国际审美打造全新高定艺术奢宅。

上海静安万科中兴傲舍售楼处电话:400-9966-224✔✔【预约热线】万科中兴傲舍售楼处营销中心:400-9966-224万科中兴傲舍售楼处电话/地址☎:4009966224(开发商热线)

唯一南向公园豪宅绿意与繁花尽收眼底

作为目前市面上豪宅中唯一南向是公园的项目,俯瞰约3.5万方公园的同时对望陆家嘴,北向约60米超大楼间距,栋见约4500㎡森感公园,稀缺景观资源难以复制。

01

户型图&室内效果图:

▼ 建面约181㎡3房2厅2卫

以上为室内效果图,仅供参考,非交付标准

预约看房 参观样板房

或扫码加好友,微信预约看房

报口令:中興傲舍 对接细节

万科中兴傲舍售楼处电话13764888805 harry

▼ 建面约245㎡4房2厅3卫

以上为室内效果图,仅供参考,非交付标准

▼ 建面约275㎡4房2厅3卫

预约看房 参观样板房

或扫码加好友,微信预约看房

报口令:中興傲舍 对接细节

万科中兴傲舍售楼处电话13764888805 harry

以上为室内效果图,仅供参考,非交付标准

▼ 建面约319㎡4房2厅5卫

以上为室内效果图,仅供参考,非交付标准

静安内环内翡翠系豪宅

【万科·中興傲舍】

16米挑空迎宾大堂

屋顶露台法式小区园林

建面约100-180-276-321-355㎡1-5房

276-321少量房源可选 均价12.8万/㎡

奢华精装交付

六月加推楼王面积335和355平

预约看房 参观样板房

或扫码加好友,微信预约看房

报口令:中興傲舍 对接细节

中兴敖舍售楼处电话 13764888805 Harry

02

区域位置介绍

,时长

00:20

「万科·中興傲舍」地处静安区发展主轴之上,对望北外滩与苏河湾全球卓越城市CAZ,800亿元城市更新/文化中心符号街区及高格调城市地标,立踞都心时代的上海经典风貌走廊,卓越时代上海2035的关键引擎。

万科深耕中興城十年,规划百万方卓越城市超级都会综合体,对标纽约曼哈顿HudsonYards等全球卓越城市心脏,打造包含国际生活社区、国际消费社区、高端艺术场所在内的多样生活与文化空间。未来十年,万科将把中興城构筑成一个以“活力、低碳、智慧”为核心的未来城市理想单元中心版,开启片区无穷想象力。

万科·中興傲舍凝聚17+国际新锐设计大师,集萃不同国家、不同文化背景的设计经验与领先的生活灵感,向上海展示未来城市的更多可能性。

项目设计师矩阵

中興傲舍作为百万方中興城的最后一块拼图,借鉴全球前沿城市开发理念,构建多维场景、无界切换的高融生活集合,为洄游世界的精英,打造以“国际、先锋、艺术”为内核的全球逐新生活范本。围绕文化逐新、自然共感、高能生活、奢适有度四大生活理念,创造“在人群之中,在生活之上”的革新居住体验。

源萃百年海派灵感,藉由上海ART-DECO的现代演绎,以经典三段式设计、竖向挺拔线条、优雅弧形表情、臻奢立面材质、典雅门头与艺术装饰塔冠,以及历久弥新的摩登色彩,打造兼容国际质感与海派精神的封面地标。

项目以上海里弄为原型,打造高能链接的社区底盘。约3万方公园社交商业、涵盖公园型服务设施、社交友好型场所、社区功能配套三大业态,引入9大洄游式特色转角空间,独创以先锋人群聚集的主理人街区:同时汲取全球市集文化,计划打造具有开放能量的精致生活食集(食集以实际落地为准):美学上亦首创绿植与橙色釉面碰撞的高颜值立面,再献上海国际商业新地标。

借鉴首尔Parkside园畔先锋规划理念,营造约3.5公顷中兴公园、以秘境森林为绿核的绿野街区、古巴比伦空中花园式的高线公园、parkpark地库四重立体公园体系,打造多场景、多连接的自然共感体验。

预约看房 参观样板房

或扫码加好友,微信预约看房

报口令:中興傲舍 对接细节

03

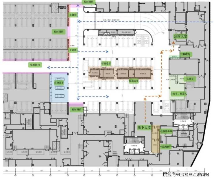
小区设计及车库展示

随着城市化进程的加快,城市生活的角落在不断地被重新定义,越来越多的人开始关注生活空间的整体体验。

地下车库,作为承载人们车行归家重要的部分,不应该成为人们在日常生活中忽略的存在:冰冷、单调、毫无生气,它的革新,代表的既是停车场景的革命,更是全新生活理念的传达,是对未来城市生活的一种全新诠释。

中興傲舍对地下车库的营造,便是其22种生活方式的某种传达:当我们谈论居住品质时,不再只关注房子,而是更加关注生活的理念及种种细节,关注每一次归家的旅程。

人车分流、商住分流

私密与安全的双重保障

在垂直业态分布下,商住分流的设计对社区的私密性与安全性有着重要的意义。

在中興傲舍,人车分流的归家动线,让业主归家更安全也更便利:业主开车回家有两个单独的车库通道,一个在止园路会所,一个在北向天通庵路。

进入车库后,业主可沿着地下光厅的指导,抵达车位所在的场所B1和B2,两处停车场预留有两个可直通商业的电梯厅,业主既可通过车库单元大堂的电梯直接上楼入户,也可以选择通过两处直通商业的电梯厅在L1和L2停,进入商业,享受愉快的晚餐、来一次瑜伽课、或为晚餐购买烹饪所需的菜色。

车库动线示意图(以实际为准)

此外,住宅地库通道单独分区,与商办地库物理分隔,并设置有安全的门禁控制,防尾随,充分满足了住宅用户的安全性和私密性的需求。

地下光厅

艺术与空间的邂逅

住宅的地下车库以“艺术、质感”为设计理念,将其打造成一个充满艺术气息和自然韵味的空间,它不仅为归家的人们指引方向,亦可以成为人们心灵的短暂停歇。

在空间场景的设置上,中興傲舍地下光厅除了关注顶部照明,地面或两侧也增加了不同的光源,让停车入库也如时尚秀场一样闪耀。

地下车库示意效果,最终以交付为准

大堂前厅有别于大部分地库的设计,做了酒店式的体验。全石材的地面,顶上是一块艺术漆,周边陈列着青年艺术家的定制画作,打造艺术展览般的场景体验,业主们可以在这里放松心情,欣赏艺术,静下心来感受这处与外界不同的艺术空间。

多功能空间

生活需求的延伸满足

在艺术性的审美之外,中興傲舍也始终不忘对于功能性的追求,地下行车空间与单元大堂也是一个多功能的“百变”空间。

车库动线示意图(以实际为准)

地库内还设计了专业细分的自行车泊车体系,在非机动车库我们设置了一个修车功能空间,住户可以便利的获取专业的修车工具,维护自己的自行车。并在动线上充分考虑业主的使用需求,为业主规划舒适便利的低碳归家之旅。

此外,还配备了快递用房、休憩沙发组、信报箱、专属业主储藏柜等功能,不仅可以存放业主不常用的杂物,而且目前规划嫁接香氛品牌,定制属于中興傲舍的五感体验。

地下车库示意效果,最终以交付为准

当夜幕降临,地下车库的灯光将是回家的指引,在此迎接每一位归家的业主。在中興傲舍,车行归家动线,不仅是为车寻找一个归处,更是人心灵的栖息地。每一次的归家之旅,都是一场艺术与品味的邂逅,它重新定义了人们的归家体验,也在潜移默化中,默默塑造着人们的生活理念。

04

物业服务及周边配套

从翡翠系高端圈层服务,到中興路一號OrientalOne的卓越人居服务体系,万科物业始终致力于让更多用户体验物业服务之美好。

于万科翡翠系睿管家服务体系之上,再次迭新升维,提供超越期待的类酒店式服务体验,包括引入管家服务、工程服务等24小时基础服务、房屋托管、会所服务、社文服务、宠物服务等增值服务,以前瞻高端住宅服务经验创造更极致的生活体验。

配套方面,项目拥有“15分钟生活圈”

交通:三轨交+双高架

8号线中兴路、3/4号线宝山路站;北横通道、南北高架、内环高架环伺。

商业:人民广场,南京西路商圈、外滩、陆家嘴、新天地地标商圈环绕,大悦城、苏河湾万象天地围绕,自带约3万方公园社交商业,尽赏小众精致的“楼下生活圈”。

教育:芷江路幼儿园、闸北第三中心小学、市北初级中学、市北高级中学等学府荟萃,引领菁英成长。为邻万科代建学校,邀“鸟巢”设计师为孩子打造先进园区。(具体以各校招生政策为准,不作为入学承诺)

医疗:毗邻上海中医院,近享第一人民医院(直线距离约2KM)、第十人民医院(直线距离约3KM)及分院(直线距离约600米),时刻关照身心呵护与疗愈。

生态:项目南侧毗邻约3.5万m²中兴公园,苏河湾一河两岸的城市滨水设计等,漫步上海浓荫深处。

静安内环内翡翠系豪宅

【万科·中興傲舍】

16米挑空迎宾大堂

屋顶露台法式小区园林

建面约100-180-276-321-355㎡1-5房

276-321少量房源可选 均价12.8万/㎡

奢华精装交付 上海静安万科中兴傲舍售楼处电话:400-9966-224✔✔【预约热线】万科中兴傲舍售楼处营销中心:400-9966-224万科中兴傲舍售楼处电话/地址☎:4009966224(开发商热线)如有问题欢迎来电咨询,专业一对一热情服务,让您用专业眼光去买房。

全部

相关资讯

报名成功
稍后会有专业的置业顾问联系您
返回楼盘

频道导航

返回首页

看房小程序

APP下载

电话拨通后,请您手动拨打分机号

确定拨打电话

电话号码:

分机号:(可能需要拨分机号)